Hartfield Road, Eastbourne

GBP 620000 For Sale

Property Details

Bedrooms

9

Bathrooms

4

Property Type

Semi-Detached

Description

Property Details: • Type: Semi-Detached • Tenure: N/A • Floor Area: N/A

Key Features: • Semi Detached House • 8/9 Bedrooms • 2 Reception Rooms • Further 3 Rooms - Suitable for Potential Annexe Style Extension • Open Plan Kitchen/Breakfast Room • 4 Bathrooms • Utility Room • Private Rear Garden • Garage & Driveway

Location: • Nearest Station: N/A • Distance to Station: N/A

Agent Information: • Address: 15 Cornfield Road Eastbourne BN21 4QD

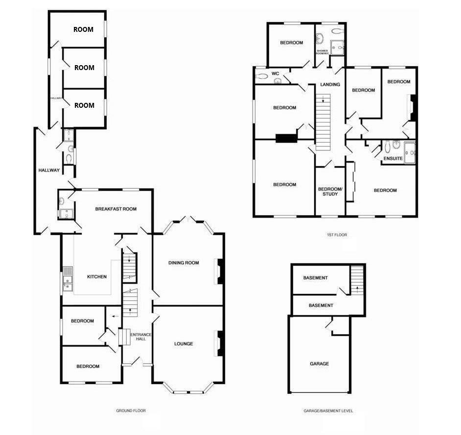
Full Description: Located in Upperton just a short walk from the town centre shops and mainline railway station, this substantial Period home is arranged with eightine bedrooms and two receptions with a garage and driveway also included. There is a fitted kitchen and adjoining breakfast room in addition to four bath/shower rooms and walled gardens arranged to the rear. There is an attached addition which provides further scope for annexe extension, subject to consents, and the generously proportioned accomodation, provides excellent family living and/or HMO and also has home and income potential. Schools serving all age groups can be found nearby and the pictureseque seafront is also within walking distance. Being sold CHAIN FREE.Entrance - Covered entrance having original period front door to - Entrance Hallway - Tiled floor. Two radiators. Understairs basement. Stairs down to garage.Sitting Room - Double glazed bay window to front. Original fireplace having ornate iron hood and grate and tiled hearth having inset tiling.Period style fireplace having inset gas fire. Ceiling rose, Ceiling cornicing. Television point. Radiator. Casement doors to rear garden.Dining Room - Period style fireplace having inset gas fire. Ceiling rose, Ceiling cornicing. Television point. Radiator. Casement doors to rear garden.Kitchen - Range of units comprising single drainer stainless steel double sink unit and mixer tap with part tiled walls and surrounding work surfaces having cupboards and drawers under. Inset four ring gas hob having extractor cookerhood above. Built in 'eye level' oven. Space for 'American style' fridge/freezer. Space and plumbing for dishwasher. Range of wall mounted units. Extractor. Radiator. Double glazed window to side. Open plan to -Breakfast Room - Double glazed windows to rear. Two radiators. Door to annexe.Shower Room - Suite comprising tiled shower cubicle and wall mounted wash hand basin. Tiled floor.Bedroom 8 - Double glazed window to front. Radiator.Bedroom 9 - Double glazed window to side. Radiator.Stairs From Ground To First Floor Landing - Bedroom 1 - Double glazed windows to front. Range of fitted wardrobes and cupboards. Radiator.En-Suite Shower Room/Wc - Suite comprising double sized shower cubicle having wall mounted shower over. Pedestal wash hand basin. Low level WC. Heated ladder radiator. Tiled walls.Bedroom 2 - Double glazed window to front.Bedroom 3 - Double glazed windows to front and side. Radiator. Wood effect flooring.Bedroom 4 - Double glazed window to rear. Period style fireplace with inset ornate tiling. Radiator.Bedroom 5 - Double glazed window to rear. Radiator.Bedroom 6 - Double glazed window to rear. Radiator.Bedroom 7 - Double glazed window to side. Built in double wardrobe and shelving. Radiator.Shower Room/Wc - Suite comprising tiled shower cubicle. Pedestal wash hand basin. Low level WC. Tiled walls. Radiator. Double glazed window to rear.Separate Wc - Low level WC. Wall mounted wash hand basin. Double glazed window to side.Side Entrance - Double glazed front door to -Entrance Hallway - Two radiators.Utility Room - Space and plumbing for automatic washing machine. Stainless steel single drainer sink unit. Door giving access to rear garden.Room 1 - Double glazed window to side. Radiator.Room 2 - Double glazed window to side. Radiator.Room 3 - Double glazed window to side. Radiator.Shower Room/Wc - Suite comprising shower cubicle. Low level WC. Tiled walls. Radiator. Double glazed window to side.Outside - There is a walled rear garden which is arranged to patio and lawn. To the front of the house is a driveway which provides off street parking which leads to the -Integral Garage - Up and over door. Power and light.Council Tax Band = E - Epc = D - BrochuresHartfield Road, Eastbourne

Location

Address

Hartfield Road, Eastbourne

City

Eastbourne

Features and Finishes

Semi Detached House, 8/9 Bedrooms, 2 Reception Rooms, Further 3 Rooms - Suitable for Potential Annexe Style Extension, Open Plan Kitchen/Breakfast Room, 4 Bathrooms, Utility Room, Private Rear Garden, Garage & Driveway

Legal Notice

Our comprehensive database is populated by our meticulous research and analysis of public data. MirrorRealEstate strives for accuracy and we make every effort to verify the information. However, MirrorRealEstate is not liable for the use or misuse of the site's information. The information displayed on MirrorRealEstate.com is for reference only.

Real Estate Broker
Town Property/Town Flats/Town Rentals, Eastbourne
Brokerage
Town Property/Town Flats/Town Rentals, Eastbourne
Top Tags
Likes

0

Views

18

This website uses cookies to ensure you get the best experience. Learn more