Harwich Road, Wix, CO11
Property Details
Land
Description
Property Details: • Type: Land • Tenure: N/A • Floor Area: N/A
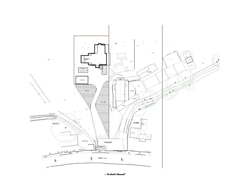
Key Features: • A Site measuring circa 2.5 acres (STLS) • Planning permission to construct a single detached dwelling • Planning ref: 23/01328/FUL • Picturesque village location
Location: • Nearest Station: Wrabness Station • Distance to Station: 2.1 miles
Agent Information: • Address: 10 Springfield Lyons Approach, Springfield, Chelmsford, CM2 5LB
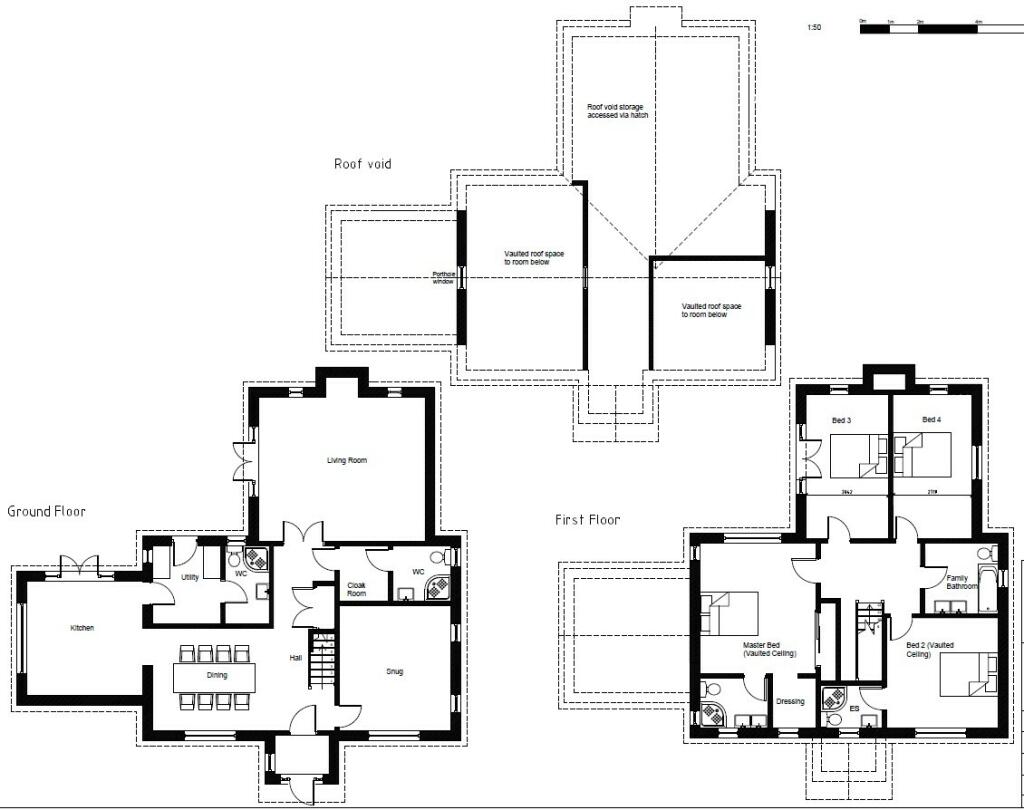
Full Description: A Site of circa 2.5 acres (STLS) with consented planning permission to construct one single detached dwelling.DescriptionAn opportunity to purchase a site of approximately 2.5 acres (STLS) to build a new single detached four bedroom dwelling of circa 2,185 square foot (STS) and alterations of existing access to highway. Planning ref: 23/01328/FUL.A plot of land located next to Abbey Bottom Farm with approved planning permission to construct a detached four bedroom dwelling off the Harwich Road.Overage Clause The property is sold with an overage clause which reserves 25% of any uplift in value attributed to any change of use or planning permission for a period of 20 years from the date of sale. The full wording will be contained within the Legal packLocationWix is a village and civil parish in the Tendring district of north-east Essex, England. It lies in a small valley about 2 miles (3 km) south of the Stour Estuary. The valley drains east towards Harwich. Formerly an important crossroads on the route to Harwich, it has now been bypassed by the A120 road. There is one pub, The Waggon at Wix, which on Saturday evenings has live bands. There is also a village shop in Colchester Road next to Anglian Timber.Terms of OfferThe site is being sold on an unconditional basis at a guide price of £375,000.Beresfords would seek to be instructed as the selling agent on all new homes being sold.BrochuresParticulars
Location
Address
Harwich Road, Wix, CO11
City
Wix
Features and Finishes
A Site measuring circa 2.5 acres (STLS), Planning permission to construct a single detached dwelling, Planning ref: 23/01328/FUL, Picturesque village location
Legal Notice
Our comprehensive database is populated by our meticulous research and analysis of public data. MirrorRealEstate strives for accuracy and we make every effort to verify the information. However, MirrorRealEstate is not liable for the use or misuse of the site's information. The information displayed on MirrorRealEstate.com is for reference only.