Haslingden Old Road, Oswaldtwistle, Accrington
Property Details
Land
Description
Property Details: • Type: Land • Tenure: FREEHOLD • Floor Area: N/A
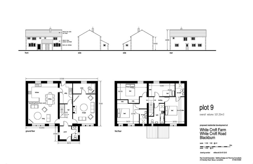
Key Features: • Fantastic Development Property • Planning Permission Granted • Additional land available subject to further negotiation • Nine Dwellings • Excellent Location • Bursting with Potential • Close to Local Amenities • Tenure Freehold • Council Tax Band E • EPC Rating TBC
Location: • Nearest Station: Church & Ostwaldwistle Station • Distance to Station: 1.5844288642459734 miles
Agent Information: • Address: 7 Blackburn Road Accrington Lancashire BB5 1HF
Full Description: A FANTASTIC DEVELOPMENT OPPORTUNITY WITH PLANNING PERMISSION GRANTED<br /><br />Commanding a prime location on Whitecroft Road, just off Haslingden Old Road, in the charming area of Oswaldtwistle, Accrington, this exceptional development property presents a remarkable opportunity for investors and developers alike. With planning permission already granted, the site is poised for the creation of nine stunning dwellings, with additional land available subject to further negotiation.<br /><br />The proposed plans include the conversion of the existing stone-built barns, which will be transformed into beautiful family homes, alongside the demolition and reconstruction of the additional dwellings. This project promises to deliver substantial residences that blend modern living with the character of the surrounding countryside.<br /><br />Situated in a prime semi-rural location, the property offers the perfect balance of tranquillity and convenience. Residents will enjoy easy access to the nearby towns of Oswaldtwistle, Blackburn, and Haslingden, ensuring that essential amenities and services are within reach. Furthermore, the M65 motorway network is just a short distance away, providing excellent transport links for commuting and travel.<br /><br />This is a unique chance to invest in a property that not only offers significant potential for development but also the opportunity to create a thriving community in a desirable location. For further information and additional details, please do not hesitate to contact us or visit the Hyndburn planning portal. This is a development opportunity not to be missed.<br /><br />For the latest upcoming properties, make sure you are following our Instagram @keenans.ea and Facebook @keenansestateagents<br /><br /><b>Unit 1</b> - Existing Farmhouse<br /><br /><b>Unit 2</b> - PROPOSED - 1 Bed Semi-Detached with Garage. 76m2<br /><br /><b>Unit 3</b> - PROPOSED - 3 Bed Semi-Detached with 1 Bed self-contained annexe. 177m2<br /><br /><b>Unit 4</b> - PROPOSED - 3 Bed Semi-Detached. 135m2<br /><br /><b>Unit 5</b> - PROPOSED - 4 Bed Semi-Detached. 194m2<br /><br /><b>Unit 6</b> - PROPOSED - 4 Bed Semi-Detached. 194m2<br /><br /><b>Unit 7</b> - PROPOSED - 3 Bed Detached Bungalow. 129m2<br /><br /><b>Unit 8</b> - PROPOSED - 4 Bed Detached. 189m2<br /><br /><b>Unit 9</b> - PROPOSED - 4 Bed Detached. 189m2<br /><br />
Location
Address
Haslingden Old Road, Oswaldtwistle, Accrington
City
Oswaldtwistle
Features and Finishes
Fantastic Development Property, Planning Permission Granted, Additional land available subject to further negotiation, Nine Dwellings, Excellent Location, Bursting with Potential, Close to Local Amenities, Tenure Freehold, Council Tax Band E, EPC Rating TBC
Legal Notice
Our comprehensive database is populated by our meticulous research and analysis of public data. MirrorRealEstate strives for accuracy and we make every effort to verify the information. However, MirrorRealEstate is not liable for the use or misuse of the site's information. The information displayed on MirrorRealEstate.com is for reference only.