Hatfield Road, St. Albans
Property Details
4
2
Detached
Description
Property Details: • Type: Detached • Tenure: N/A • Floor Area: N/A
Key Features: • Redevelopment Project • Detached House • Four Bedrooms • Three Reception Rooms • Off Street Parking • Chain Free • Walk To Beaumont • Potential To Extend (stpp)
Location: • Nearest Station: N/A • Distance to Station: N/A
Agent Information: • Address: 59 The Quadrant Marshalswick St. Albans AL4 9RD
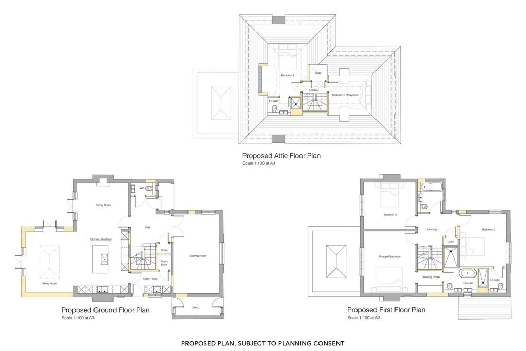
Full Description: This is a fine chain free four-bedroom Edwardian-period family home with retained character that needs updating and redevelopment (subject to any necessary consents and planning). Currently showing with an adjoining double garage, the owner will remove this before completion as it is intended to construct a new detached home in an adjoining plot. Please refer to the proposed boundaries within our marketing material. The remaining un-extended home of some 1,794 sq. ft could be reconfigured as shown with four bedrooms, two bathrooms, three receptions, and a large kitchen/breakfast room and there could well be potential to enhance the accommodation even further within the large loft and to the rear, subject again to any required permissions. The property is within walking distance of Beaumont School. St Albans is a historic city located in Hertfordshire, England. It is known for its rich history, dating back to Roman times when it was known as Verulamium. The city has several notable landmarks and attractions, including the magnificent St Albans Cathedral, one of the country's oldest and most impressive cathedrals. The charming city centre features a mix of medieval and Georgian architecture, with cobbled streets, traditional pubs, and independent shops. St Albans also boasts beautiful green spaces like Verulamium Park and Clarence Park, where visitors can enjoy leisurely walks or picnics. The city has a vibrant cultural scene, with various art galleries, theatres, and music venues. St Albans hosts annual events and festivals, including the St Albans Festival and the Christmas Market, which attract visitors from near and far. Overall, St Albans is a picturesque and historic city that offers a blend of heritage, culture, and natural beauty for visitors to explore and enjoy.BrochuresHatfield Road, St. Albans
Location
Address
Hatfield Road, St. Albans
City
Hatfield Road
Features and Finishes
Redevelopment Project, Detached House, Four Bedrooms, Three Reception Rooms, Off Street Parking, Chain Free, Walk To Beaumont, Potential To Extend (stpp)
Legal Notice
Our comprehensive database is populated by our meticulous research and analysis of public data. MirrorRealEstate strives for accuracy and we make every effort to verify the information. However, MirrorRealEstate is not liable for the use or misuse of the site's information. The information displayed on MirrorRealEstate.com is for reference only.