Henton, Nr Wells, BA5

GBP 1475000 For Sale

Property Details

Bedrooms

6

Bathrooms

3

Property Type

Farm House

Description

Property Details: • Type: Farm House • Tenure: Freehold • Floor Area: N/A

Key Features: • Beautifully renovated farmhouse • Village location just 2.5 miles from the historic city of Wells • Offered with NO ONWARD CHAIN • Six bedrooms (two ensuite) • Spacious kitchen/dining room with tri-fold doors • Stylish kitchen with sleek, contemporary worktops, integrated appliances and central island • Two reception rooms, cloakroom and family bathroom • Set on a plot of 0.73 acres including gardens, barn and detached workshop • Gated courtyard with ample parking and hardstanding with planning permission granted to erect a double carport (if required) • Detached barn with planning application (pending) to convert into separate three bedroom dwelling

Location: • Nearest Station: N/A • Distance to Station: N/A

Agent Information: • Address: 19 Broad Street, Wells, BA5 2DJ

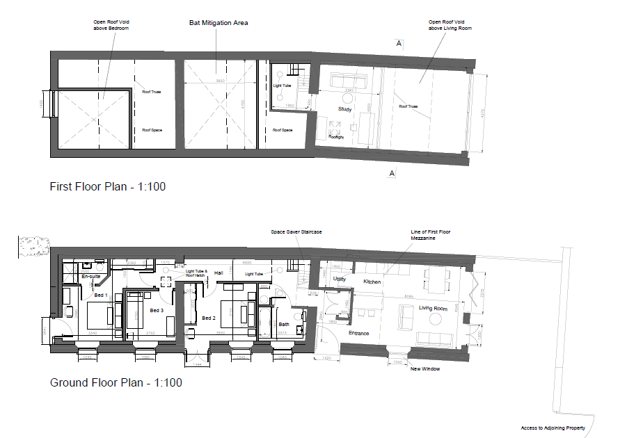
Full Description: DESCRIPTIONA beautifully renovated six bedroom farmhouse set on a plot of 0.73 acres within the popular village of Henton and having views over open fields to the front and the Mendip hills to the rear. This attractive farmhouse has undergone a full scheme of sympathetic renovation, striking the perfect balance of modern convenience and character features. The property benefits from new roof, windows, doors, electrics, heating, plumbing, kitchen and bathrooms with high specification fixtures and fittings throughout. Double gates open to a large gravelled drive with ample parking, a large block-built workshop and a hardstanding with Planning permission granted to erect a double carport. Enclosed gardens sit to both the front and the rear of the property. Adjacent is single storey barn with planning application (pending) to convert into a separate three bedroom dwelling - this versatile building offers the option of multigenerational living, holiday accommodation or potential business space. Offered with NO ONWARD CHAIN.Upon entering is a porch leading through to the stunning kitchen dining room.  This spacious dual aspect room benefits from engineered oak floor and naturally divides to offer a well-equipped kitchen at one end and a large dining space at the other.  The kitchen features an array of cabinets with pale grey Shaker style doors and drawers topped with sleek contemporary worktops, with an attractive mottled grey/brown leathered finish. A large central island offers further storage, wine cooler, an induction hob with contemporary extractor above and breakfast bar with space for four to five stools.  Within the kitchen is a double Belfast sink, Neff double 'Hide 'n' Slide ovens, integrated fridge freezer and integrated NEFF dishwasher. The dining area can comfortably accommodate a table to seat twelve people and has a contemporary anthracite radiator and tri-fold doors leading out to the patio, drive and gardens. Adjacent is the hallway, with wood floors and two large cupboards, ideal for coats and shoes along with 'day to day' storage, oak staircase leading to the upper floors and a cloakroom with traditional WC, vanity basin and traditional style towel radiator.  At the front of the property is the dual aspect sitting room with engineered oak floor, contemporary anthracite radiator and French doors leading out to a gravel patio area and front garden beyond.  An attractive brick and stone fireplace is a lovely focal point with working chimney above. Leading off the hall is a second reception room, again with oak floor and anthracite radiator and featuring a dual aspect with window seat, exposed stone wall, exposed beam and attractive natural stone fireplace with original oak beam above.  There is a flu in place, should the buyer wish to install a woodburning stove or similar. To the rear of the property, with a door to the drive, is the utility room which houses the boiler and features sleek grey cabinets, sink, painted beam and space and plumbing for both a washing machine and tumble dryer.On the first floor is a spacious landing leading to four of the six bedrooms and the family bathroom.  The principal bedroom features a vaulted ceiling, carpeted floor, large dormer window offering spectacular views towards the Mendip Hills, wall lights and a low window with deep cill and views to the front over the garden and neighbouring fields. The ensuite bathroom is beautifully appointed with roll top bath, traditional style WC with cistern, large walk-in shower with waterfall and hand held sprays, double vanity basins with cabinetry finished in a tasteful grey/blue, illuminated mirror, traditional style towel radiator and dormer window, once again with wonderful far reaching views.  A second ensuite bedroom benefits from a dual aspect, vaulted ceiling and wall lights.  The ensuite is open to the bedroom has a high ceiling with white painted beams contemporary double vanity with drawers beneath, corner shower enclosure, WC and traditional towel rail.  This spacious room could also accommodate further cabinets to incorporate a dressing area, if desired.  A third bedroom, with tall anthracite radiator, is double in size and has a window to the front with views over the garden and countryside beyond. Bedroom four is again double in size and has an anthracite radiator, carpeted floor and side aspect.Stairs rise to the second floor with two further bedrooms and a cloakroom with WC, contemporary vanity basin, illuminated mirror and towel radiator.  Both bedrooms are double in size have vaulted ceilings with dual aspect Velux windows. OUTSIDEApproaching Manor Farm is a gravel driveway with parking for five to six cars. There is a Right of Way over the driveway in favour of two neighbouring dwellings. To the front of the house is a garden, enclosed by natural stone walls and laid to lawn with borders of planting. To the rear of the farmhouse double metal gates open to an enclosed gravelled courtyard offering further parking.  The rear garden is a good size and is mainly laid to lawn with mature trees and shrubs. To the rear of the courtyard is a hardstanding with planning permission in place to erect and double cart port.  Adjacent is a block built barn/workshop with pedestrian door and double doors to the garden.  Accessed from the dining area is a large patio laid with flagstones which were originally laid in the farmhouse.  This generous patio, benefits from outdoor lighting and offers plenty of space for outside furniture and entertaining. With the tri-fold doors open to the dining room it makes a lovely indoor/outdoor area.  Within the patio is an original circular well with lighting and metal grid cover.A large single storey stone-built barn sits across the drive and a planning application (pending) has been submitted to convert into a separate three bedroom dwelling. LOCATIONThe village of Henton lies conveniently situated between the cathedral city of Wells and the picturesque and popular village of Wedmore. Wells is the smallest city in England and lies in beautiful countryside between the Somerset Levels and the Mendip Hills - an Area of Outstanding Natural Beauty. Wells offers a wide range of amenities including a golf club, sports and leisure centre, cinema, restaurants, pubs, cafe's, antique shops, supermarkets, a local market, and museum. The medieval Cathedral, Bishops Palace and moat are at the centre of the city. Local schooling includes a variety of primary and secondary schools including Wells Blue School, Wells Cathedral School, Kings of Wessex School and Millfield School. The popular village of Wedmore lies to the West of Henton. There are many historic buildings including a medieval church, and a range of independent shops, pubs, restaurants and a tea rooms.TENUREFreeholdHEATINGLPG gas central heatingSERVICESMains drainage, water and electricity are all connectedVIEWINGStrictly by appointment with Cooper and Tanner. Tel: LOCAL AUTHORITYSomerset CouncilCOUNCIL TAXBand 'E'EPC RATINGRating 'D'DIRECTIONSFrom Wells take the B3139 (Wells Road) towards Wedmore. Continue through the villages of Wookey and Worth to Henton. Upon entering Henton continue for approx. 150 metres and you will find Manor Farm on your right hand side.BrochuresBrochure 1

Location

Address

Henton, Nr Wells, BA5

City

Wookey

Features and Finishes

Beautifully renovated farmhouse, Village location just 2.5 miles from the historic city of Wells, Offered with NO ONWARD CHAIN, Six bedrooms (two ensuite), Spacious kitchen/dining room with tri-fold doors, Stylish kitchen with sleek, contemporary worktops, integrated appliances and central island, Two reception rooms, cloakroom and family bathroom, Set on a plot of 0.73 acres including gardens, barn and detached workshop, Gated courtyard with ample parking and hardstanding with planning permission granted to erect a double carport (if required), Detached barn with planning application (pending) to convert into separate three bedroom dwelling

Legal Notice

Our comprehensive database is populated by our meticulous research and analysis of public data. MirrorRealEstate strives for accuracy and we make every effort to verify the information. However, MirrorRealEstate is not liable for the use or misuse of the site's information. The information displayed on MirrorRealEstate.com is for reference only.

Real Estate Broker
Cooper & Tanner, Wells
Brokerage
Cooper & Tanner, Wells
Top Tags
Likes

0

Views

15

This website uses cookies to ensure you get the best experience. Learn more