Heol Tywith, Nantyffyllon, Maesteg

GBP 349995 For Sale

Property Details

Property Type

Land

Description

Property Details: • Type: Land • Tenure: N/A • Floor Area: N/A

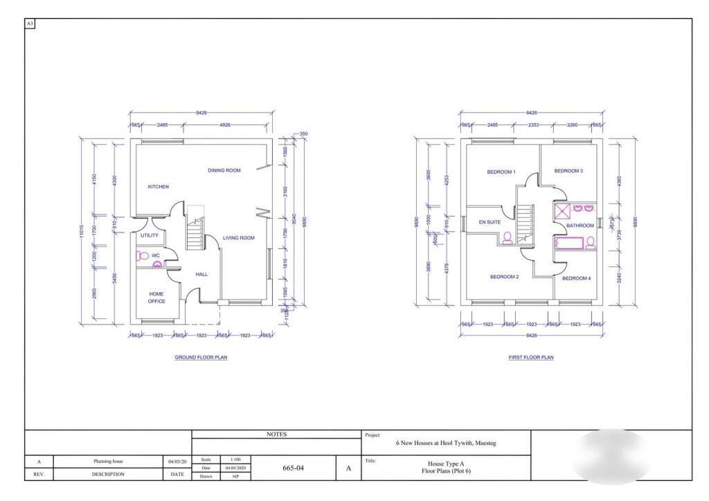
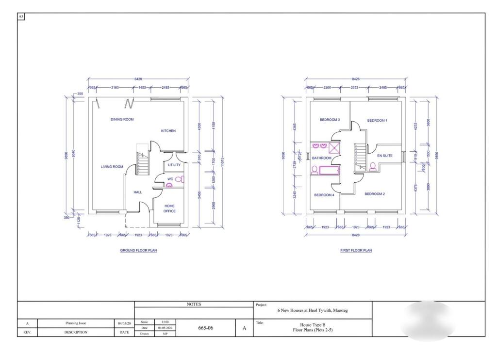
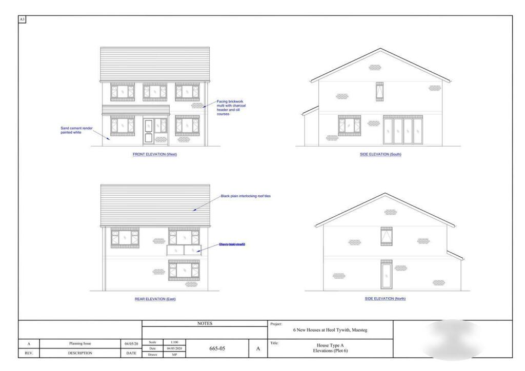
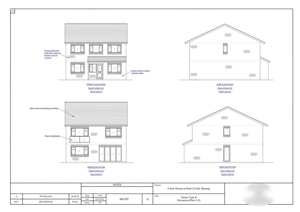
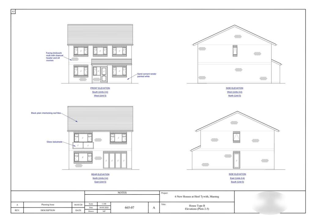
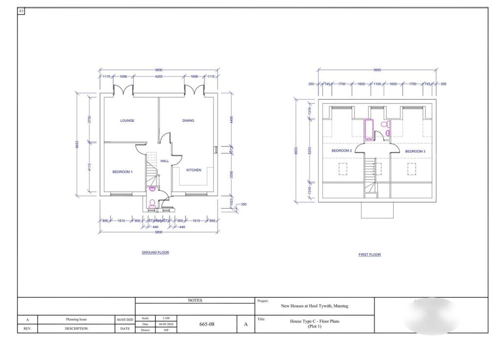
Key Features: • Building Plot of Approximately 0.5 of an acre • Popular Location • Easy Access for Commuting along M4 Corridor • Planning Consent Approved • Four Detached Houses (Four Bedrooms) • Two Detached Dormer Bungalows (Three Bedrooms)

Location: • Nearest Station: Maesteg Station • Distance to Station: 1.0 miles

Agent Information: • Address: 29 Llynfi Road, Maesteg, CF34 9DS

Full Description: Welcome to Heol Tywith, Nantyffyllon, Maesteg - a prime location for a development site! This expansive land of approximately 0.5 acre offers a fantastic opportunity for those looking to create something truly special. With its picturesque surroundings, this plot is a blank canvas waiting for your creative touch. Don't miss out on the chance to turn this land into a thriving development that could be the envy of the town. Located on the eastern side of the Llynfi Valley approximately 1 mile north of Maesteg Town Centre. Within easy access of walking/cycling routes and the Spirit of Llynfi Woodland. Nantyffyllon is located approximately 7 miles from junction 36 of the M4, ideal for commuting along the M4 corridor. What3words location: ///ended.reform.timesPlanning approval has been granted for the construction of four detached houses, each with four bedrooms and two dormer style bungalows with three bedrooms. Each property will have a garage and the properties will be accessed via a private driveway.Contact us today to explore the endless possibilities that this property has to offer.1 - 2 - 3 - 4 - Plot Layout - Property A - Property A Floorplan - Property B - Property B Floorplan - Property C - Property C Floorplan - Garage (All Properties) - BrochuresHeol Tywith, Nantyffyllon, MaestegBrochure

Location

Address

Heol Tywith, Nantyffyllon, Maesteg

City

Maesteg

Features and Finishes

Building Plot of Approximately 0.5 of an acre, Popular Location, Easy Access for Commuting along M4 Corridor, Planning Consent Approved, Four Detached Houses (Four Bedrooms), Two Detached Dormer Bungalows (Three Bedrooms)

Legal Notice

Our comprehensive database is populated by our meticulous research and analysis of public data. MirrorRealEstate strives for accuracy and we make every effort to verify the information. However, MirrorRealEstate is not liable for the use or misuse of the site's information. The information displayed on MirrorRealEstate.com is for reference only.

Real Estate Broker
Ferriers Estate Agents, Maesteg
Brokerage
Ferriers Estate Agents, Maesteg
Top Tags
Popular Location
Likes

0

Views

67

This website uses cookies to ensure you get the best experience. Learn more