High Grange Farm, Hett
Property Details
Land
Description
Property Details: • Type: Land • Tenure: N/A • Floor Area: N/A
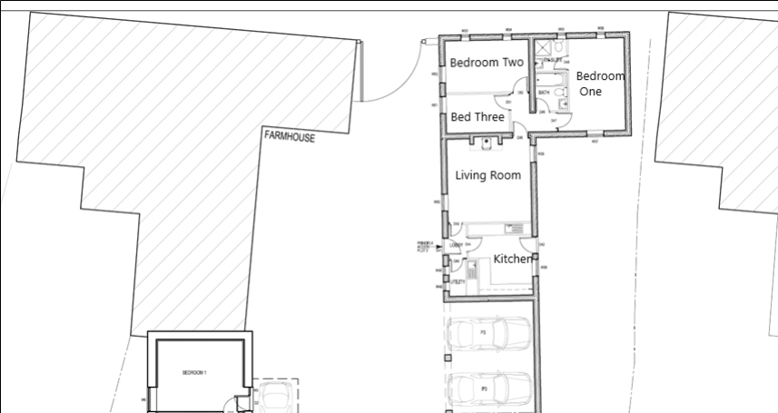
Key Features: • Exciting Development Opportunity • Situated Within The Attractive Village of Hett • Planning For A Detached Three Bedroom Bungalow With Garden & Parking
Location: • Nearest Station: Durham Station • Distance to Station: 9.2 miles
Agent Information: • Address: 13 Galgate, Barnard Castle, DL12 8EQ
Full Description: Addisons Chartered Surveyors are delighted to bring to the market this exciting development opportunity in the attractive village of Hett. The development site is situated within the village of Hett, nestled in an existing residential street. Hett is a picturesque village surrounded by open countryside located approximately 5 miles south of Durham.The development is sited to the south of the village pond frequently visited by Ducks and Geese. Hett also benefits from a communal green, football pitch and village hall and is well placed for community purposes, being within a short drive of the A167 highway and the A1 motorway providing good road links to other regional areas. PLANNINGThe development offers theopportunity to a prospective buyer to create a detached three-bedroom bungalowwith a small garden area and off-street parking. The development benefits from fullplanning permission the planning portal reference is 4/11/00463/FPA. The listedbuilding consent can be viewed at 4/11/00464/LB. Planning has commenced and isknown as Plot 3.ACCESSAccess to the site is off theadopted highway onto a shared yard area.BOUNDARIESThe boundaries of each plot will bemarked on site for identification purposes; however, the purchaser must satisfythemselves as to the exact extent of the plot.SERVICESIt is understood that mainselectricity, gas and water are available close by for connection of supply,however, the purchaser must satisfy themselves as to the cost and availabilityof this supply prior to purchase.VIEWINGStrictly via appointment through the selling agents on .BROCHURECN/CT- 11.01.24
Location
Address
High Grange Farm, Hett
City
Abbots Ripton
Features and Finishes
Exciting Development Opportunity, Situated Within The Attractive Village of Hett, Planning For A Detached Three Bedroom Bungalow With Garden & Parking
Legal Notice
Our comprehensive database is populated by our meticulous research and analysis of public data. MirrorRealEstate strives for accuracy and we make every effort to verify the information. However, MirrorRealEstate is not liable for the use or misuse of the site's information. The information displayed on MirrorRealEstate.com is for reference only.