High Street, Kingswood, Bristol, Gloucestershire, BS15

GBP 525000 For Sale

Property Details

Property Type

Land

Description

Property Details: • Type: Land • Tenure: N/A • Floor Area: N/A

Key Features:

Location: • Nearest Station: Lawrence Hill Station • Distance to Station: 2.9 miles

Agent Information: • Address: 74 Regent Street, Kingswood, Bristol, Avon, BS15 8JA

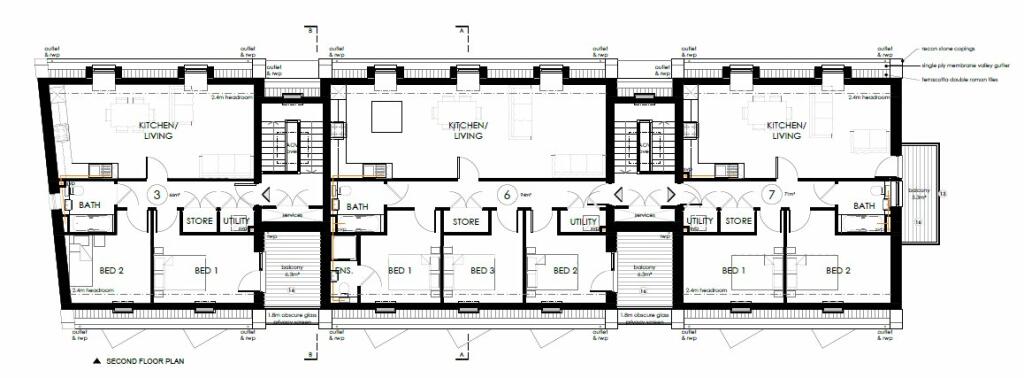
Full Description: *** SITE WITH FULL PLANNING FOR SEVEN FLATS AND ONE COMMERCIAL UNIT *** SUBJECT TO CHANGING PLANNING AND LICENSING POTENTIAL FOR A NUMBER OF HMO PROPERTIES **Planning was obtained from South Gloucestershire Council reference P21/07539/F on 26th April 2023 for the demolition of existing building and construction of one commercial unit (Class E) and seven flats (Class C3).The site is approximately 0.16 acres and fronts High Street, it is currently used as a car sales forecourt.Please note that Countrywide New Homes will be retained for the sale of any new built dwellings with commission payable at 1.5% + VAT. Note “Countrywide“ refers to Countrywide Residential Development Solutions is a trading name of Countrywide Estate Agents a company registered in England & Wales, Registered No. 00789476.Registered Office: Greenwood House, 1st Floor, 91-99 New London Road, Chelmsford, Essex, CM2 0PP.BS15 covers Kingswood and Hanham which crosses over between Bristol City Council and South Gloucestershire. The area has a mix of rural and urban landscapes. The area has a number of local businesses, including several independent stores and a range of eateries, from pubs to restaurants. There are multiple schools within the area and has easy access into Bristol city centre with several bus routes connecting to the city centre.The area is largely residential, with a mix of houses, apartments, and flats, to cater to all types of buyers and tenants. For recreation, there are a number of parks and green spaces, as well as the local Kingswood Bowling Club and the charity-run Kingswood Railway.

Location

Address

High Street, Kingswood, Bristol, Gloucestershire, BS15

City

Gloucestershire

Legal Notice

Our comprehensive database is populated by our meticulous research and analysis of public data. MirrorRealEstate strives for accuracy and we make every effort to verify the information. However, MirrorRealEstate is not liable for the use or misuse of the site's information. The information displayed on MirrorRealEstate.com is for reference only.

Real Estate Broker
Taylors Estate Agents, Kingswood
Brokerage
Taylors Estate Agents, Kingswood
Top Tags
High Street Kingswood Bristol Gloucestershire
Likes

0

Views

65

This website uses cookies to ensure you get the best experience. Learn more