High Street, Lewes

GBP 400000 For Sale

Property Details

Property Type

Land

Description

Property Details: • Type: Land • Tenure: N/A • Floor Area: N/A

Key Features:

Location: • Nearest Station: Lewes Station • Distance to Station: 0.2 miles

Agent Information: • Address: 56 High Street, Lewes, East Sussex, BN7 1XE

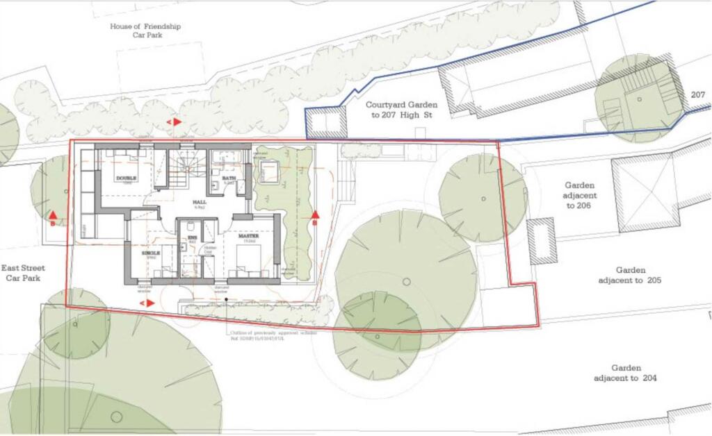
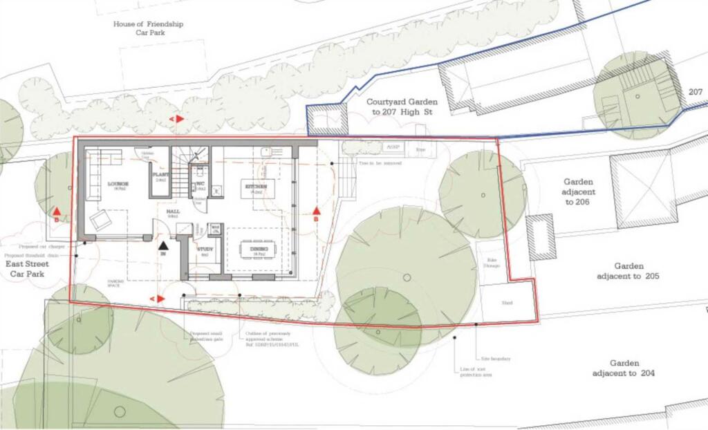
Full Description: A building plot in a central location to the rear of a High Street property, with full planning permission for a 2-storey detached house. Proposed accommodation: 3 bedrooms (1 with ensuite shower room), bathroom, sitting room, study, kitchen/dining room, cloakroom, parking space and garden what3words /// splits.sweetened.bearingsNoticePlease note we have not tested any apparatus, fixtures, fittings, or services. Interested parties must undertake their own investigation into the working order of these items. All measurements are approximate and photographs provided for guidance only.BrochuresWeb Details

Location

Address

High Street, Lewes

City

High Street

Legal Notice

Our comprehensive database is populated by our meticulous research and analysis of public data. MirrorRealEstate strives for accuracy and we make every effort to verify the information. However, MirrorRealEstate is not liable for the use or misuse of the site's information. The information displayed on MirrorRealEstate.com is for reference only.

Real Estate Broker
Charles Wycherley Independent Estate Agents, Lewes
Brokerage
Charles Wycherley Independent Estate Agents, Lewes
Top Tags
bathroom sitting room study cloakroom
Likes

0

Views

54

This website uses cookies to ensure you get the best experience. Learn more