High Street, Margate

GBP 825000 For Sale

Property Details

Bedrooms

15

Property Type

Flat

Description

Property Details: • Type: Flat • Tenure: N/A • Floor Area: N/A

Key Features: • Development opportunity • Direct views of Margate Sands • Walking distance to the Historic Old Town • Planning permission for 6 apartments

Location: • Nearest Station: N/A • Distance to Station: N/A

Agent Information: • Address: 37 Vernon Terrace, Brighton, BN1 3JH

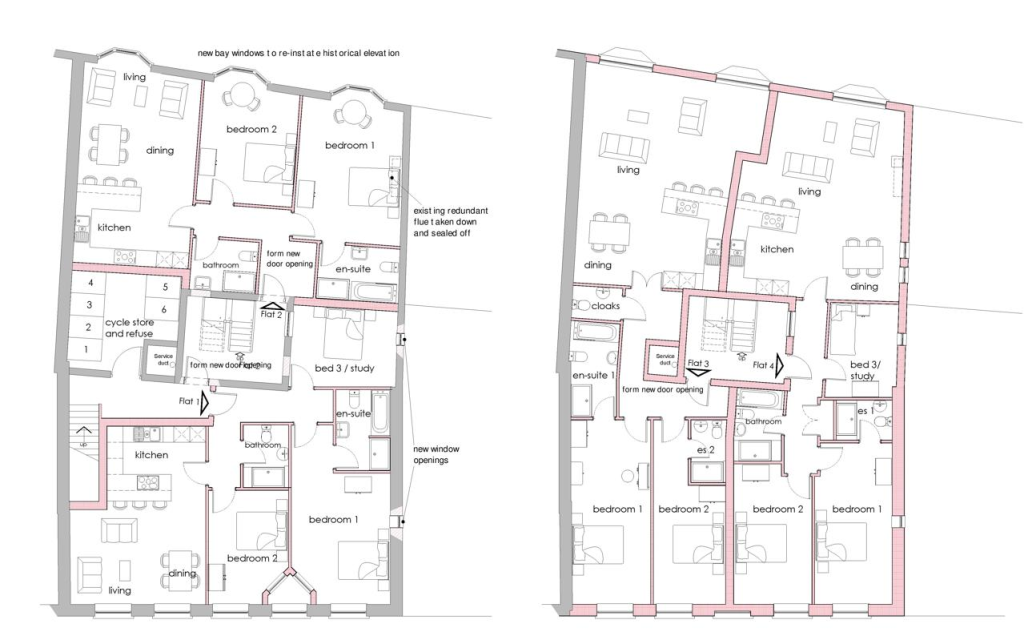
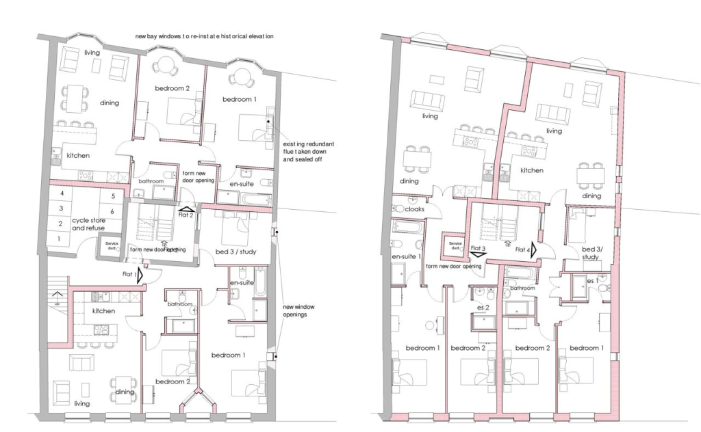
Full Description: A unique development opportunity to build 6 apartments boasting direct sea views over Margate seafrontA unique development opportunity to build 6 apartments boasting direct sea views over Margate seafrontSituation - Positioned on Margate seafront overlooking Margate Sands is this exceptional opportunity to build six bespoke apartments. The development is situated in central Margate, adjacent to the historic Old Town Margate with a selection of vintage/retro shops, local bars and restaurants. The Turner Contemporary Art Gallery and attractive seafront, with a mixture of bars, restaurants and cafes which are all easily accessible from the High Street Margate development. Margate mainline railway station is situated about half a mile away, with links along the coast and into London.Description - 38-40 High Street is a period two storey building just off the seafront in Margate. Planning consent (F/TH/20/0566) has been approved to convert the first floor and add two further storeys, to provide for 6 self contained apartments. The first floor conversion consists of a 3 bedroom apartment to the front, with an open plan living room and en-suite bathroom to the main bedroom. To the rear of the first floor is a 2 bedroom apartment with open plan living room and en-suite bathroom to the main bedroom.On the second floor planning is approved for a 2 and a 3 bedroom apartment, both with en-suite bathrooms and open plan living rooms.The third floor provides a 2 and a 3 bedroom apartment, both with en-suite bathrooms, open plan living rooms and private balconies.All units will be accessed via a private entrance to the front of the building, with stair case leading up to all apartments.The development is being sold under a development long lease.Planning Reference No F/TH/20/0566FULL PLANNING DRAWINGS AND A COPY OF CONSENT AVAILABLE ON THANET DISTRICT COUNCIL WEBSITE OR CALL US FOR DETAILS.BrochuresHigh Street, MargateBrochure

Location

Address

High Street, Margate

City

Margate

Features and Finishes

Development opportunity, Direct views of Margate Sands, Walking distance to the Historic Old Town, Planning permission for 6 apartments

Legal Notice

Our comprehensive database is populated by our meticulous research and analysis of public data. MirrorRealEstate strives for accuracy and we make every effort to verify the information. However, MirrorRealEstate is not liable for the use or misuse of the site's information. The information displayed on MirrorRealEstate.com is for reference only.

Real Estate Broker
Austin Gray, Investment and Development Department
Brokerage
Austin Gray, Investment and Development Department
Top Tags
Likes

0

Views

54

This website uses cookies to ensure you get the best experience. Learn more