High Street, Poole, Dorset, BH15
Property Details
Property Type
2,685 sq ft
Description
Property Details: • Type: 2,685 sq ft • Tenure: N/A • Floor Area: N/A
Key Features: • Updated Frontage • Allocated Parking • Open-Plan Accommodation • Central On High Street • Available to Rent or Buy
Location: • Nearest Station: Poole Station • Distance to Station: 0.3 miles
Agent Information: • Address: The Yard, Loch Road, Poole, Dorset, BH14 9EX
Full Description: DESCRIPTION
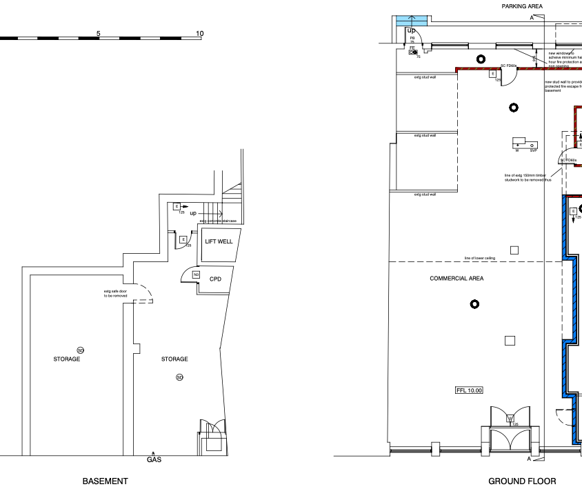
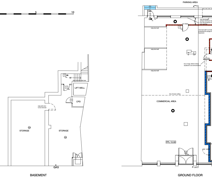
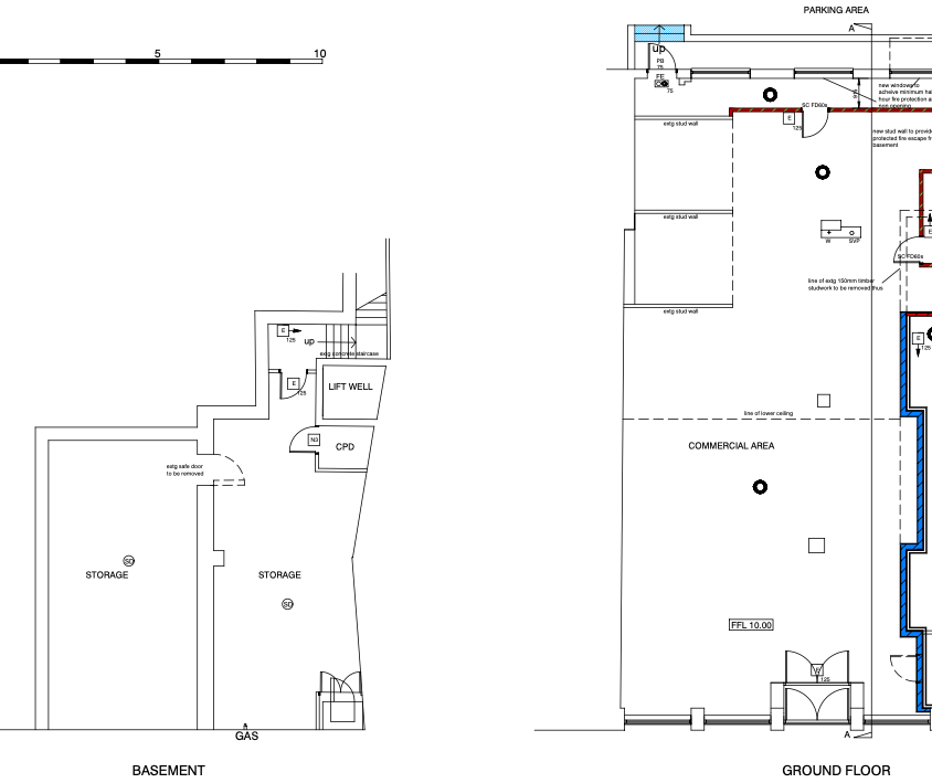
The former bank premises are configured to provide open plan retail/office accommodation at ground floor level. Stairs provide access to the basement which is again largely set out as open-plan
All mains services are connected to the property. WC's are yet to be installed and their location has a degree of flexibility depending on requirements.
Externally the unit is offered with two allocated parking spaces.
Ground Floor 167.7 SqM (1,805) SqFt Basement 81.8 SqM (880) SqFt
RENT
£37,000 Per Annum exclusive of VAT, insurance, business rates and service charge where applicable.
PRICE
£450,000
LOCATION
The property is ideally situated centrally on Poole High Street. It is surrounded by well-known retailers such as The Entertainer, Mountain Warehouse, Robert Dyas Taco Bell, Bon Marche, Iceland, Poundland, Santander, Lloyds Bank, CEX, and numerous other quality independent shops. Additionally, several public car parks are conveniently located in the vicinity.
Poole Train Station is approximately 0.3 miles away and the location is served by a large number of bus routes.
TENURE
The premises are available to rent by way of new full repairing and insuring lease for a term to be agreed or alternatively Freehold or 999 Year Lease.
PLANNING
We understand that the unit has planning consent for Class E - Commercial.
In accordance with our usual practice, however, all interested parties are encouraged to contact Poole Borough Council, planning department ) with respect to authorised use of the property and their proposed use.
LEASE COSTS
Watts Holt can prepare a new tenancy agreement for a term of up to three years at a cost of £350 plus VAT to the incoming tenant, or alternatively a tenancy agreement for a term of up to six years can be prepared in house at a cost of £550 plus VAT to the incoming tenant.
FINANCE ACT 1989
Unless otherwise stated, all prices and rents are exclusive of Value Added Tax. Lessees must satisfy themselves as to the incidence of VAT in respect of any transaction.
BUSINESS RATES
To be separately assessed in current configuration
IMPORTANT NOTE
At no time has a structural survey been undertaken and appliances have not been tested. These particulars are believed to be correct, but their accuracy is not guaranteed and they do not constitute an offer or form part of any contract.
MONEY LAUNDERING REGULATIONS
Under Money Laundering Regulations, we are obliged to verify the identity of a proposed tenant/buyer prior to instructing solicitors. This is to help combat fraud and money laundering and the requirements are contained in statute.
Location
Address
High Street, Poole, Dorset, BH15
City
Poole
Features and Finishes
Updated Frontage, Allocated Parking, Open-Plan Accommodation, Central On High Street, Available to Rent or Buy
Legal Notice
Our comprehensive database is populated by our meticulous research and analysis of public data. MirrorRealEstate strives for accuracy and we make every effort to verify the information. However, MirrorRealEstate is not liable for the use or misuse of the site's information. The information displayed on MirrorRealEstate.com is for reference only.
 
                                 
                                 
                                 
                                 
                                 
                                        
                                         
                                        
                                         
                                        
                                         
                                        
                                         
                                        
                                         
                                        
                                         
                                        
                                        