High Street, Steyning

GBP 500000 For Sale

Property Details

Property Type

Commercial Property

Description

Property Details: • Type: Commercial Property • Tenure: N/A • Floor Area: N/A

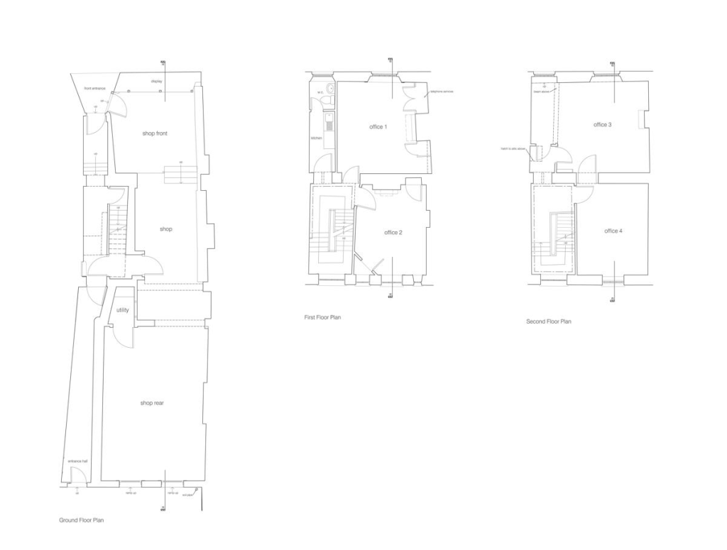
Key Features: • Mixed commercial investment • Freehold • Situated on Steyning High Street • Retail unit producing £16,750 per annum • Offices over the first and second floor • Potential to convert the first and second floors into self-contained apartments (subject to necessary consents).

Location: • Nearest Station: Lancing Station • Distance to Station: 4.3 miles

Agent Information: • Address: 37 Vernon Terrace, Brighton, BN1 3JH

Full Description: Freehold Mixed Commercial Investment arranged as a self contained ground floor retail unit, with offices over the first and second floor (currently vacant).Freehold Mixed Commercial Investment arranged as a self contained ground floor retail unit, with offices over the first and second floor (currently vacant).Description - A Freehold Grade II listed period building, situated on Steyning High Street. This mid terrace 4 storey building consists of a self contained retail unit on the ground floor, which is currently let at £16,750 per annum excl. Over the first and second floors are 4 offices, with a shared kitchen and wc. There is potential to convert the first and second floors into self-contained apartments (subject to necessary consents).Situation - Located on the High Street in the historic village of Steyning, this popular location offers an array of independent retail traders, restaurants and coffee shops. There are also larger commercial users close by, such as The Co-Op. The High Street is situated within the Steyning Conservation Area.Existing Rent - 80 High Street, the ground floor retail unit is let on a 10-year effective FRI lease expiring on the 15th of August 2027 (Rent Review August 2022 - uninspected). Current rent £16,750pa excl.Accommodation - Retail unit - NIA 87.2 sq m (938.6 sq.ft)Offices - NIA 71.4 sq m (768.5 sq.ft)Total Floor Area - 158.6 sq.m. (1,707.1 sq.ft)Epc - Retail Unit -TBCOffices - DTenure - FreeholdRateable Value - Retail unit - £11,750Offices - £5,400BrochuresHigh Street, SteyningBrochure

Location

Address

High Street, Steyning

City

Steyning

Features and Finishes

Mixed commercial investment, Freehold, Situated on Steyning High Street, Retail unit producing £16,750 per annum, Offices over the first and second floor, Potential to convert the first and second floors into self-contained apartments (subject to necessary consents).

Legal Notice

Our comprehensive database is populated by our meticulous research and analysis of public data. MirrorRealEstate strives for accuracy and we make every effort to verify the information. However, MirrorRealEstate is not liable for the use or misuse of the site's information. The information displayed on MirrorRealEstate.com is for reference only.

Real Estate Broker
Austin Gray, Investment and Development Department
Brokerage
Austin Gray, Investment and Development Department
Top Tags
Likes

0

Views

92

This website uses cookies to ensure you get the best experience. Learn more