Highfield Road, Hall Green

GBP 410000 For Sale

Property Details

Bedrooms

3

Bathrooms

2

Property Type

Detached Bungalow

Description

Property Details: • Type: Detached Bungalow • Tenure: N/A • Floor Area: N/A

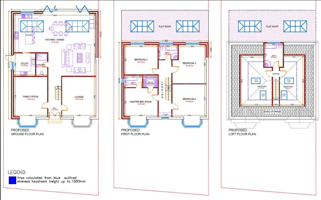
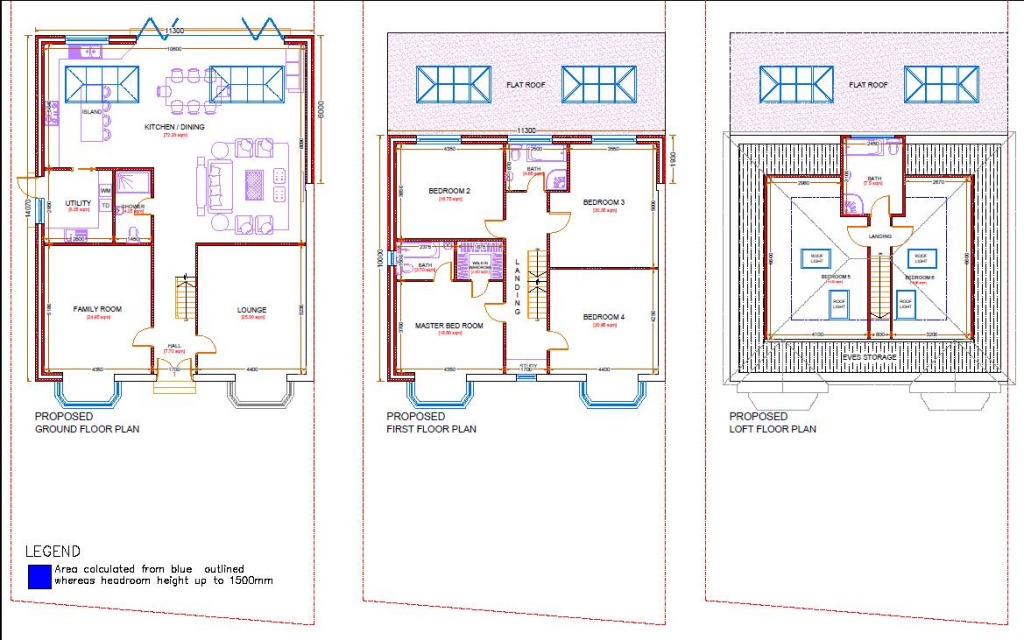
Key Features: • Detached Bungalow • 3 Bedrooms • Garage • Loft Conversion • Off Road Parking For Multiple Vehicles • Well Presented • Development Potential (stpp) • Ideal Location • Large Rear Garden • DRAWINGS FOR Single Storey Rear Extension With Double Storey Side Extension & Loft Conversion

Location: • Nearest Station: N/A • Distance to Station: N/A

Agent Information: • Address: 176 Highfield Road, Hall Green, Birmingham, B28 0HT

Full Description: KLARICO Estate Agents are delighted to present this 3 bedroom detached bungalow located within a sought after street in Hall Green, Birmingham. INITIAL DRAWINGS CREATED FOR A Single Storey Rear Extension With Double Storey Side Extension & Loft Conversion.KLARICO Estate Agents are delighted to present this 3 bedroom detached bungalow located within a sought after street in Hall Green, Birmingham. Provides off road parking for multiple vehicles and provides good size through out.INITIAL DRAWINGS CREATED FOR A PROPOSED SINGLE STOREY REAR EXTENSION WITH DOUBLE STOREY SIDE EXTENSION & LOFT CONVERSION. Huge potential subject to the necessary planning permission. A must view with the potential of developing a stunning detached family home within a prominent location.The ground floor provides 2 separate reception rooms along with a kitchen/diner, shower room and access to a utility area. The ground floor features a bedrooms with the remaining two bedrooms provides on the first floor along with a bathroom. This property has been presented to a good standard but provides huge scope to be developed into a stunning family home (stpp). Within the local proximity can be found a number of good schools and nurseries along with easy access to public transport links including rail and bus.Reception Room - 4.78m x 3.91m (15'8" x 12'9") - Double glazed bay window to front, wood flooring, ceiling light, wall mounted radiatorLounge - 4.78m x 3.91m (15'8" x 12'9") - Double glazed window to front, wood flooring, ceiling light, wall mounted radiatorKitchen/Diner - 5.03m x 3.94m (16'6" x 12'11") - Double glazed window to side and rear, wood flooring, ceiling light, drainer sink with mixer tap, laminate wood worktop, storage cupboards, dining areaUtility Room - 4.50m x 1.50m (14'9" x 4'11") - Double glazed windows and door to rear, tiled flooring, ceiling lightShower Room - 2.40m x 1.90m (7'10" x 6'2") - Walk-in shower, pedestal sink with mixer tap, toilet, ceiling lightGarage - 5.00m x 2.60m (16'4" x 8'6") - Spacious garage, ceiling light, up and over doorBedroom Three - 3.48m x 3.45m (11'5" x 11'3") - Double glazed window, wood flooring, ceiling light, wall mounted radiatorBedroom Two - 4.75m x 3.17m (15'7" x 10'4") - Double glazed window, wood flooring, ceiling light, wall mounted radiatorBedroom One - 4.72m x 3.28m (15'5" x 10'9") - Double glazed window, wood flooring, ceiling light, wall mounted radiatorBathroom - 2.80m x 1.80m (9'2" x 5'10") - Privacy double glazed window to rear, bath, toilet, pedestal sink with mixer tap, shower cubicle, ceiling lightRear Garden - Patio, laid lawn, fence panels to boundariesBrochuresHighfield Road, Hall Green

Location

Address

Highfield Road, Hall Green

City

West Bretton

Features and Finishes

Detached Bungalow, 3 Bedrooms, Garage, Loft Conversion, Off Road Parking For Multiple Vehicles, Well Presented, Development Potential (stpp), Ideal Location, Large Rear Garden, DRAWINGS FOR Single Storey Rear Extension With Double Storey Side Extension & Loft Conversion

Legal Notice

Our comprehensive database is populated by our meticulous research and analysis of public data. MirrorRealEstate strives for accuracy and we make every effort to verify the information. However, MirrorRealEstate is not liable for the use or misuse of the site's information. The information displayed on MirrorRealEstate.com is for reference only.

Real Estate Broker
Manny Klarico, Hall Green
Brokerage
Manny Klarico, Hall Green
Top Tags
Large Rear Garden Well Presented
Likes

0

Views

16

This website uses cookies to ensure you get the best experience. Learn more