Holmdale Road, Filton, Bristol, Gloucestershire

GBP 385000 For Sale

Property Details

Bedrooms

3

Bathrooms

1

Property Type

Semi-Detached

Description

Property Details: • Type: Semi-Detached • Tenure: N/A • Floor Area: N/A

Key Features: • Holmdale Road • Three well-presented bedrooms • Comprehensively refurbished throughout • Open-plan lounge diner • Beautifully manicured South facing garden • Impressive detached garage/annex • Planning approved for rear extension and double storey side-extension • 85 sq. m • EPC - TBC

Location: • Nearest Station: N/A • Distance to Station: N/A

Agent Information: • Address: 8 Gloucester Road North, Bristol, BS7 0SF

Full Description: Along a charming road in the heart of Filton, this handsome three-bedroom house has been renovated and styled, making it a welcoming home with plenty of personality.

Overview

As you step inside, you'll immediately be struck by the tasteful décor, with on-trend wallpaper setting the tone for what is to follow. The lounge and diner have been opened up to create a flowing space bursting with light. The lounge boasts an impressive bay window and a log burning fire. The kitchen is decorated with a crisp palette and is well-equipped featuring contemporary fixtures and fittings.

Upstairs there are three immaculately presented bedrooms. The rear bedrooms boast enviable sunset views. The sleek family bathroom has been beautifully renovated by the owner.

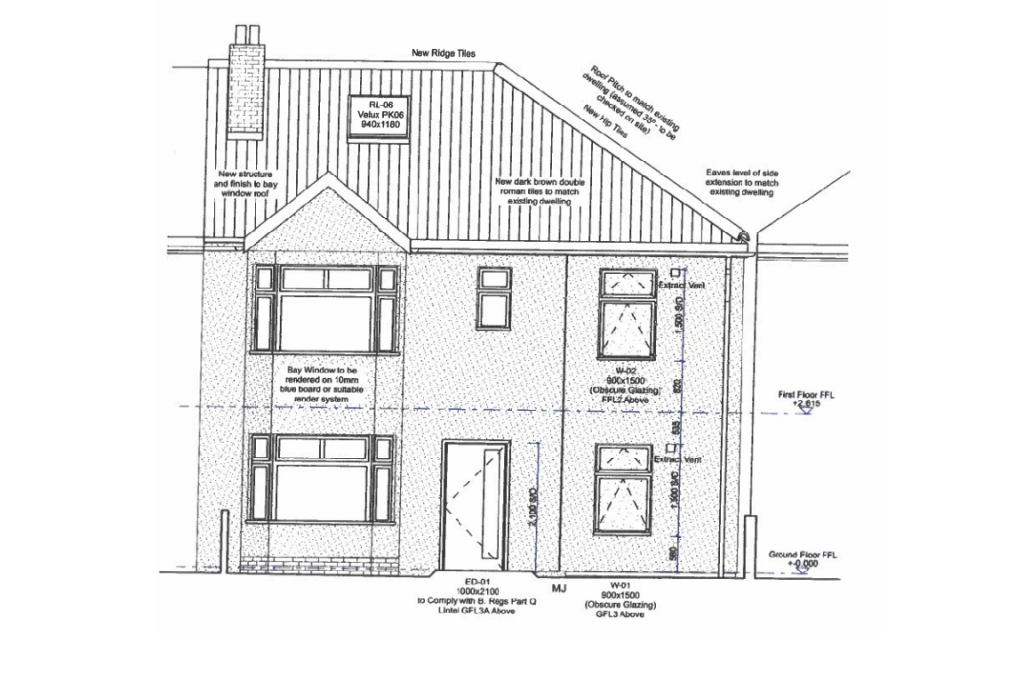
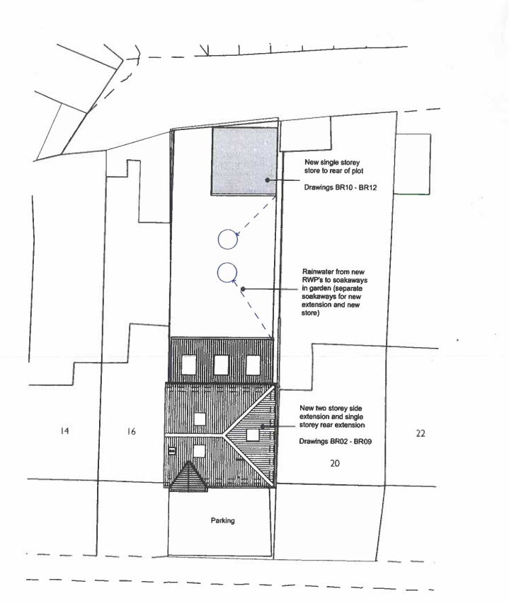
A planning application has been approved for both a rear and double story side extension, offering a great opportunity for the right buyer.

Outside

Of particular note is the impressive South facing garden. Accessed via french doors from the lounge/diner you are greeted by a serene patio area which enjoys sun all throughout the day. This then extends onto a well-kept, expansive lawn area surrounded by an abundance of mature trees and greenery. This tranquil outdoor space is perfect for relaxation, play and gardening enthusiasts. At the foot of the garden sits the detached garage/annex. The outbuilding could suit a whole variety of purposes as it is complete with a w/c, lighting and power.

Location

Holmdale Road is a leafy and quiet residential road in Filton. The property is perfectly located close to Cribbs causeway with its vast range of shops and restaurants whilst remaining in close proximity to major employers such as Southmead Hospital, Airbus and The MoD. The new YTL arena which is scheduled to be built on the Brabazon hangars at the former Filton airfield is also a short walk away. The property is also perfectly located close to the green open spaces of Elm Park which is hugely popular with families in the area and boasts an impressive recreational park and swimming pool. Local residents can also enjoy Filton community garden with its array of greenery and peaceful seating area.

We think...

This already terrific family homes has the necessary plans in place to make it something spectacular.

Material information (provided by owner)

Freehold and Council Tax Band B.Sitting/Dining Room7.06m x 3.06mKitchen3.2m x 1.93mMaster Bedroom3.85m x 3.06mBedroom 23.2m x 2.64mBedroom 32.27m x 2.27mGarage4.77m x 4.53mBrochuresBrochure 1

Location

Address

Holmdale Road, Filton, Bristol, Gloucestershire

City

Filton

Features and Finishes

Holmdale Road, Three well-presented bedrooms, Comprehensively refurbished throughout, Open-plan lounge diner, Beautifully manicured South facing garden, Impressive detached garage/annex, Planning approved for rear extension and double storey side-extension, 85 sq. m, EPC - TBC

Legal Notice

Our comprehensive database is populated by our meticulous research and analysis of public data. MirrorRealEstate strives for accuracy and we make every effort to verify the information. However, MirrorRealEstate is not liable for the use or misuse of the site's information. The information displayed on MirrorRealEstate.com is for reference only.

Real Estate Broker
Ocean, Filton
Brokerage
Ocean, Filton
Top Tags
Likes

0

Views

20

This website uses cookies to ensure you get the best experience. Learn more