Holton Road, Barry

GBP 225000 For Sale

Property Details

Property Type

Residential Development

Description

Property Details: • Type: Residential Development • Tenure: N/A • Floor Area: N/A

Key Features: • VACANT LAND • STPP POSSIBLE BUILD OF APARTMENTS • STPP POSSIBLE BUILD OF RETAIL UNITS • GET IN TOUCH TO KNOW MORE

Location: • Nearest Station: Barry Docks Station • Distance to Station: 0.4 miles

Agent Information: • Address: 117-120 Bute Street, Cardiff, CF10 5AE

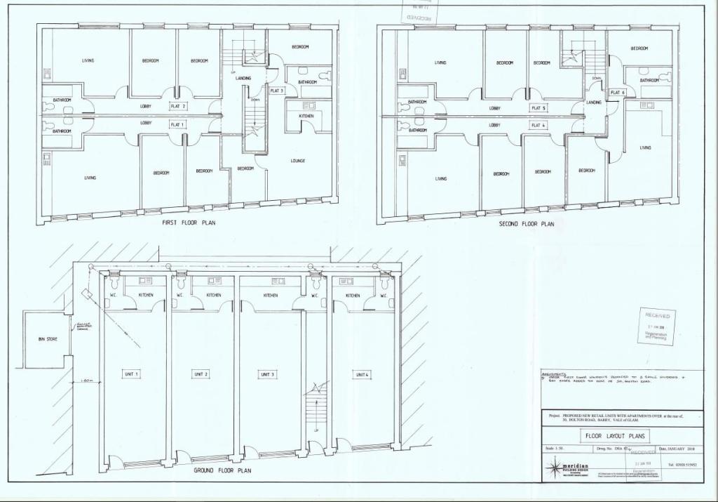
Full Description: Vacant land at the rear of a property on Holton Road.Previous planning was submitted for 6 apartments above and four retail units below.Possible potential here for a large build and to introduce some new apartments into the area subject to the correct planning and agreements.Get in touch to know more.BrochuresHolton Road, BarryBrochure

Location

Address

Holton Road, Barry

City

Barry

Features and Finishes

VACANT LAND, STPP POSSIBLE BUILD OF APARTMENTS, STPP POSSIBLE BUILD OF RETAIL UNITS, GET IN TOUCH TO KNOW MORE

Legal Notice

Our comprehensive database is populated by our meticulous research and analysis of public data. MirrorRealEstate strives for accuracy and we make every effort to verify the information. However, MirrorRealEstate is not liable for the use or misuse of the site's information. The information displayed on MirrorRealEstate.com is for reference only.

Real Estate Broker
Key Executive Sales, Cardiff
Brokerage
Key Executive Sales, Cardiff
Top Tags
Likes

0

Views

66

This website uses cookies to ensure you get the best experience. Learn more