Horseman Side, Brentwood, CM14

GBP 550000 For Sale

Property Details

Property Type

Land

Description

Property Details: • Type: Land • Tenure: N/A • Floor Area: N/A

Key Features: • Land of circa 0.5 acres (STS) • Full planning permission for a new detached dwelling • Planning Ref: 24/00509/FUL. • Easy access to the M25, A12 • Fantastic position with rural views

Location: • Nearest Station: Harold Wood Station • Distance to Station: 3.2 miles

Agent Information: • Address: 10 Springfield Lyons Approach, Springfield, Chelmsford, CM2 5LB

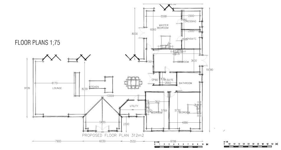
Full Description: A site of circa 0.5 acres (STLS) with consented planning permission to construct one single detached dwelling.DescriptionAn exciting opportunity to purchase a site with planning consent for the demolition of annexe and barn, and removal of tennis court to construct a detached bungalow with associated access, parking and landscaping. measuring approximately 3,200 square feetLocationThe plot stands in an attractive stretch of countryside, in the commuter belt, to the northwest of Brentwood. The nearby centres of Brentwood and Shenfield are within easy reach, and both offer a range of shopping, educational and recreational facilities. The mainline railway station at Shenfield provides a direct service to either Stratford or to Liverpool Street and is on the Elizabeth Line. By road, the A12 is just under 5 miles away which interconnects at this junction with the M25. South Weald Country Park is nearby and provides excellent opportunities for walking, fishing and horse riding. There are several golf clubs within easy reach, notably Bentley and Thorndon Park. The area is well served with a range of private and state educational facilities including Brentwood School, St. Peters C of E primary school at South Weald, and at Chelmsford, King Edward Grammar School, Chelmsford County High School For Girls and New Hall School. Brentwood: 4.3 miles (rail service to Liverpool Street), M25 (Junction 28): 4.4 miles, Shenfield (Elizabeth line): 5.7 miles (rail service to Liverpool Street from 28 minutes), M11: 13 miles.Planning The site was granted planning permission for demolition of existing buildings and erection of single dwelling with associated access, parking, and landscaping, The design is for a substantial barn style home of 3,358sq ft with, 4 bedrooms, 3 bathrooms and utility. Full planning information is available online via Brentwood Council, planning ref: 24/00509/FUL.Terms of OfferThe site is being sold on an unconditional basis with a guide price of £550,000. Extra land may be available via separate negotiation.Beresfords would seek to be instructed as the agent on all new homes being sold.Please contact Beresfords Land Department for further information or to arrange a viewingBrochuresParticulars

Location

Address

Horseman Side, Brentwood, CM14

City

Brentwood

Features and Finishes

Land of circa 0.5 acres (STS), Full planning permission for a new detached dwelling, Planning Ref: 24/00509/FUL., Easy access to the M25, A12, Fantastic position with rural views

Legal Notice

Our comprehensive database is populated by our meticulous research and analysis of public data. MirrorRealEstate strives for accuracy and we make every effort to verify the information. However, MirrorRealEstate is not liable for the use or misuse of the site's information. The information displayed on MirrorRealEstate.com is for reference only.

Real Estate Broker
Beresfords, Land & New Homes
Brokerage
Beresfords, Land & New Homes
Top Tags
A12
Likes

0

Views

50

This website uses cookies to ensure you get the best experience. Learn more