How Mill, Brampton

GBP 399000 For Sale

Property Details

Property Type

Ask agent

Description

Property Details: • Type: Ask agent • Tenure: N/A • Floor Area: N/A

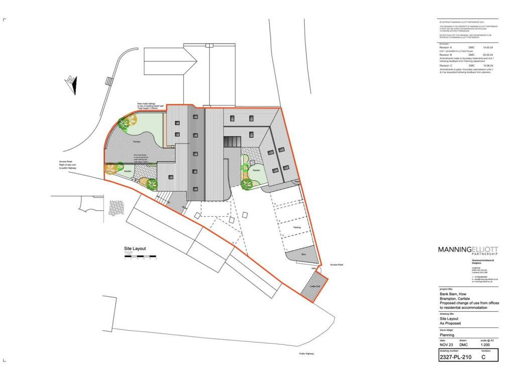
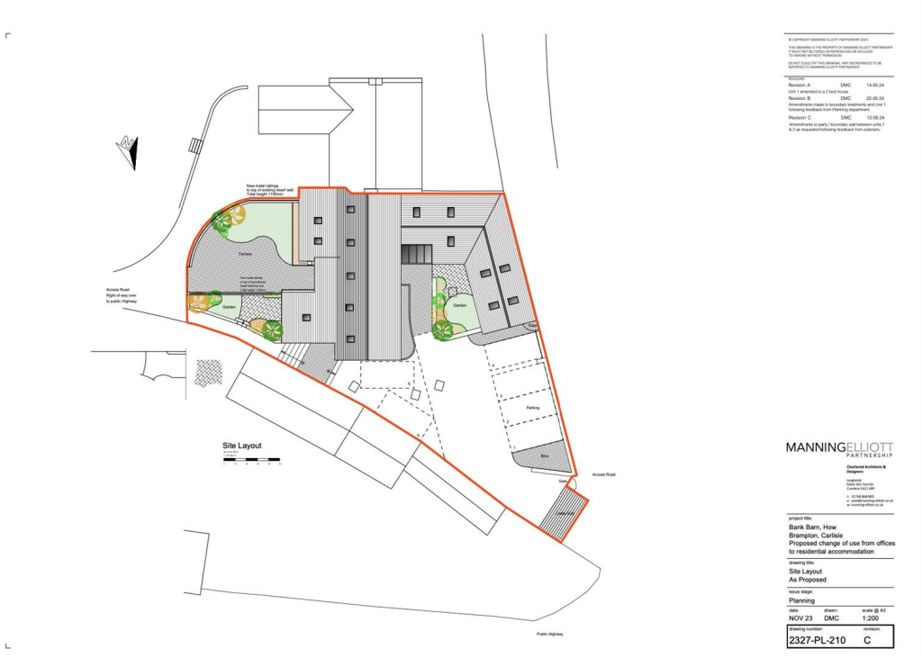
Key Features: • COMMERCIAL OFFICE SPACE • POTENTIAL TO CONVERT INTO 3 RESIDENTIAL HOMES • Desirable village location • Original features and exposed stone • Space for gardens and parking • Close to Carlisle and Brampton • Planning Ref - 24/0134

Location: • Nearest Station: Wetheral Station • Distance to Station: 2.6 miles

Agent Information: • Address: Unit 3 Mason Court Gillan Way, Penrith 40 Business Park, Penrith, CA11 9GR

Full Description: COMMERCIAL/DEVELOPMENT OPPORTUNITY!Barn conversion to convert from a commercial building into 3 residential dwellings. Subject to a variation in Planning Permission the property could also be converted into a single, large, characterful and lovely sandstone dwelling.Rare opportunity! This substantial commercial office building has planning consent for conversion into 3 residential dwellings, It is an attractive sandstone bank barn conversion sitting in a desirable village location close to Carlisle and Brampton. Converted by the owners around 22 years ago and used for part domestic and part business use (it had planning permission for the part domestic use). Subsequently the building has been further extended to the front and most recently the full building has been used commercially as office space. Converted to a high standard with a modern interior which includes character features such as a stone arch, lots of sandstone walls, arrow slit windows, and some original wooden beams.This is an ideal opportunity should a buyer be looking for a commercial building or for a developer who is looking to convert the building into the three residential parts.Plans are attached to the listing which show the layouts for the following…Two storey 1320 sqft 3 bedroom, 3 bathroom homeTwo storey 920 sqft 2 bedroom, 2 bathroom homeSingle storey 802 sqft 2 bedroom homeExternally the large parking areacould be used to create gardens and parking spaces for each of the properties.Planning Details - Planning consent has been fully granted for the Change of Use Of Commercial Office To 3no. Residential Units subject to Nutrient Neutrality - Cumberland Council Application Ref - 24/0134. See further details below.It is currently leased as an office and the lease ends on 31 December 2024. It will have vacant possession from 01 January 2025.Subject to a variation in Planning Permission the property could also be converted into a single, large, characterful and lovely sandstone dwelling.Services - Services- Mains Water, Gas and ElectricityGas Central Heating - There are two gas boilers which run the underfloor heating. The reason for two boilers was because of the initial use as part domestic and part office (one boiler for each).The kitchen boiler was replaced around 2011 and the first-floor boiler around 4 years ago.Good Broad Band supply.This property has both pedestrian and vehicular access from the patio at the back of the property onto the main road that runs through the village.Bank Barn - Conditions For Planning Permission - BANK BARN - CONDITIONS FOR PLANNING PERMISSION TO SATISFY NUTRIENT NEUTRALITY REQUIREMENTS IF THE PROPERTY WAS CONVERTED TO 3NO. DWELLINGSA summary of the main conditions:1.Prior to the commencement of the development of Bank Barn the following are required:a.The replacement of the septic tank at two adjoining properties in a local village with an operational biological package treatment plant (PTP, with an efficiency of 1.6 TP/litre).b.Planting of 13 Cox apple trees on the drainage field.c.The site for this work has been specified as a condition of the planning permission.Comment: the current owners of Bank Barn assume that subject to negotiation items (2) and (3) below would be the responsibility of the owners of the two properties.2.The maintenance and management of the PTP, drainage fields, and 13 apple trees shall be reviewed after 2030 until the River Eden Special Area of Conservation (SAC) is in a favourable condition or for 80 years whichever is the sooner. Maintenance reports shall be submitted to the local planning authority every 10 years within this period. The 13 apple trees shall be inspected every 2 years by a suitably qualified tree surveyor with any identified in poor health replaced.3.If the PTP needs to be replaced within the specified time they should be replaced with a plant of the same or lesser P load discharge.Location - The village of How Mill is approximately two and a half miles from the nearby villages of Warwick Bridge and Corby Hill both of which offers a wide variety of amenities including a garage, butchers and local doctor's surgery. It is also within the catchment area for the recommended William Howard secondary school in Brampton and Hayton Primary School. The city of Carlisle and market town of Brampton are just a short distance away with access to the A69, M6, Hadrians Wall UNESCO World Heritage site, Lake District National Park, Newcastle and Scotland.Epc & Council Tax - EPC - CCouncil Tax - To be confirmedPlease be aware that due to a limited number of EPC providers in Cumbria, there may be delays in obtaining Energy Performance Certificates (EPCs) for some properties. We anticipate receiving them within 7-14 days of the property's listing. If there are any further delays, we will update the property brochure with the expected availability of the EPC. Thank you for your understanding.Disclaimer - These particulars, whilst believed to be accurate are set out as a general guideline and do not constitute any part of an offer or contract. Intending Purchasers should not rely on them as statements of representation of fact but must satisfy themselves by inspection or otherwise as to their accuracy. The services, systems, and appliances shown may not have been tested and has no guarantee as to their operability or efficiency can be given. All floor plans are created as a guide to the lay out of the property and should not be considered as a true depiction of any property and constitutes no part of a legal contract.Energy Performance CertificatesEE Rating

Location

Address

How Mill, Brampton

City

How Mill

Features and Finishes

COMMERCIAL OFFICE SPACE, POTENTIAL TO CONVERT INTO 3 RESIDENTIAL HOMES, Desirable village location, Original features and exposed stone, Space for gardens and parking, Close to Carlisle and Brampton, Planning Ref - 24/0134

Legal Notice

Our comprehensive database is populated by our meticulous research and analysis of public data. MirrorRealEstate strives for accuracy and we make every effort to verify the information. However, MirrorRealEstate is not liable for the use or misuse of the site's information. The information displayed on MirrorRealEstate.com is for reference only.

Real Estate Broker
David Britton Estates Commercial, Penrith
Brokerage
David Britton Estates Commercial, Penrith
Top Tags
Likes

0

Views

70

This website uses cookies to ensure you get the best experience. Learn more