How Mill, Carlisle

GBP 125000 For Sale

Property Details

Bedrooms

3

Bathrooms

2

Property Type

Detached Bungalow

Description

Property Details: • Type: Detached Bungalow • Tenure: N/A • Floor Area: N/A

Key Features: • 1.1 acre Building Plot • Planning permission for 3 bedroom dwelling • 1.8 acre paddock to the side by separate negotiation • Close to Carlisle and Brampton

Location: • Nearest Station: N/A • Distance to Station: N/A

Agent Information: • Address: Unit 3 Mason Court Gillan Way Penrith 40 Business Park Penrith Cumbria CA11 9GR

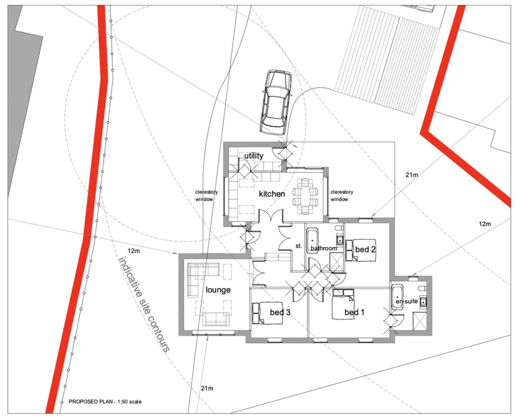
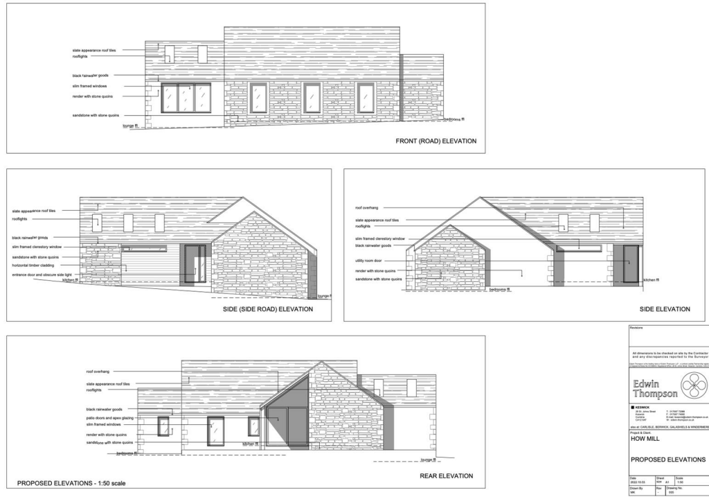
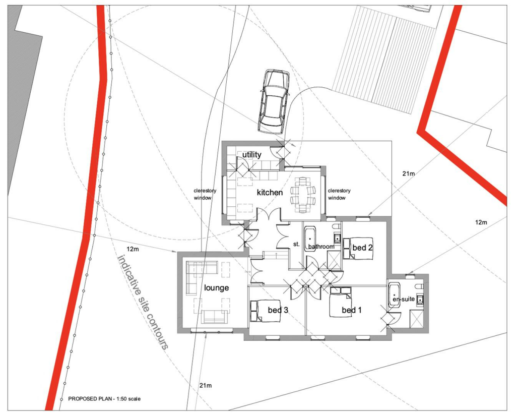
Full Description: * 1.1 ACRE BUILDING PLOT WITH PLANNING PERMISSION FOR 3 BEDROOM DWELLING WITH 1.8 ACRE PADDOCK AVAILABLE BY SEPARATE NEGOTIATION*Sitting in the heart of the desirable village of How Mill, this plot of land is a site of around 1.1 acre with an adjoining 1.8 acre field to the east available via separate negotiation. It offers the new owner the chance to purchase a building plot with approved planning consent for a Three bedroom single story dwelling. Internally comprising of a large dining kitchen, lounge, three double bedrooms and two bathrooms. Externally there is ample space for a two vehicle parking area and gardens all around. The adjoining field is suitable as a Pony Paddock or for landscaping.Ideal for those looking to create wonderful family home, sitting on a good-sized plot in a desirable location, with excellent transport links to Carlisle and Brampton.Location - The village of How Mill is approximately two and a half miles from the nearby villages of Warwick Bridge and Corby Hill both of which offers a wide variety of amenities including a garage, butcher’s and local doctor's surgery. It is also within the catchment area for the recommended William Howard secondary school in Brampton and Hayton Primary School. The city of Carlisle and market town of Brampton are just a short distance away with access to the A69, M6, Hadrian’s Wall UNESCO World Heritage site, Lake District National Park, Newcastle and Scotland.Planning Information - More information on the approved planning application can be found at Cumberland Council Website with the Planning Reference - 23/0854.To satisfy Nutrient Neutrality and Orchard Management Plan, the buyer would be required to plant and maintain 5 Apple Trees in the adjoining field to the East, where the foul drainage soakaway will be.Services - It is the responsibility of the new owner to install services to the site. Mains water, drainage and electricity are understood to be available close by.Covenant - The 1.8 acre field to the east is subject to a no build covenant.Disclaimer - These particulars, whilst believed to be accurate are set out as a general guideline and do not constitute any part of an offer or contract. Intending Purchasers should not rely on them as statements of representation of fact, but must satisfy themselves by inspection or otherwise as to their accuracy. The services, systems, and appliances shown may not have been tested and has no guarantee as to their operability or efficiency can be given. All floor plans are created as a guide to the lay out of the property and should not be considered as a true depiction of any property and constitutes no part of a legal contract.BrochuresHow Mill, Carlisle

Location

Address

How Mill, Carlisle

City

Carlisle

Features and Finishes

1.1 acre Building Plot, Planning permission for 3 bedroom dwelling, 1.8 acre paddock to the side by separate negotiation, Close to Carlisle and Brampton

Legal Notice

Our comprehensive database is populated by our meticulous research and analysis of public data. MirrorRealEstate strives for accuracy and we make every effort to verify the information. However, MirrorRealEstate is not liable for the use or misuse of the site's information. The information displayed on MirrorRealEstate.com is for reference only.

Real Estate Broker
David Britton Estates, Penrith
Brokerage
David Britton Estates, Penrith
Top Tags
Likes

0

Views

90

This website uses cookies to ensure you get the best experience. Learn more