Howland Garth, ST. ALBANS
Property Details
3
2
Terraced
Description
Property Details: • Type: Terraced • Tenure: N/A • Floor Area: N/A
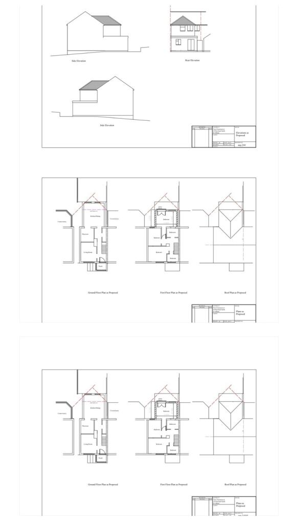
Key Features: • Ground floor shower room • Spacious kitchen • Two reception rooms • Off-street parking • Family bathroom • Granted planning permission for 2nd story • Three double bedrooms • Two reception rooms
Location: • Nearest Station: N/A • Distance to Station: N/A
Agent Information: • Address: 38 Chequer Street, St Albans, Hertfordshire, AL1 3YH
Full Description: SUMMARYThoughtfully extended 3 double bedroom family home. Great location situated towards the end of the cul de sac looking out on to the opposing greens. The property benefits from a living room, second reception room, spacious kitchen which looks out on to the garden, separated by bi fold doors.DESCRIPTIONThe first floor features a porch, storage cupboard, a spacious hallway with doors that lead into both the living room & kitchen. The living room leads into the second reception room which then carries on into the kitchen. All three rooms are separated by glass bi folding doors which offers generous light. The kitchen has side access & doors leading into the garden. The second floor features a spacious landing with doors leading into each room. The large master bedroom looks out on to the greens opposing the property. The second bedroom is a good sized double & the third bedroom is large enough for a small double bed. Both rooms look out on to the garden.Externally the property is complemented by a generously sized rear garden with a patio area, laid to lawn grass and there is also a good-sized shed to the rear which has both electric and water. Whilst to the front of the house there is a driveway providing off street parking for two to three cars.Additionally, the loft has been part boarded & is where the boiler is located. The property has been re wired & re plumbed. It has also had a new boiler, kitchen, downstairs shower room & bathroom fitted within the last nine years.Howland Garth is situated to the south of St Albans City Centre. The property provides excellent access to the motorway networks, amenities, and local schooling, with the vibrant city centre just a short drive away.Entrance Hall 16' 7" x 5' 6" ( 5.05m x 1.68m )under stairs storageCloakroom 8' 5" x 2' 6" ( 2.57m x 0.76m )Shower RoomLounge 11' 8" x 10' 7" ( 3.56m x 3.23m )Bifold doors onto dinerDining Room 8' 9" x 8' 3" ( 2.67m x 2.51m )Bifold onto Kitchen/living roomStudy 8' 6" x 4' 6" ( 2.59m x 1.37m )Kitchen 14' 3" x 13' 2" ( 4.34m x 4.01m )Extended 5x5, outlook onto garden. 2 SkylightsLanding 6' 9" x 5' 6" ( 2.06m x 1.68m )Access to all - part boarded loft (and boiler)Bedroom One 12' 3" x 11' 5" ( 3.73m x 3.48m )Spacious double, looking out on to greenBedroom Two 13' 2" x 8' 4" ( 4.01m x 2.54m )Bedroom Three 9' 4" x 7' 8" ( 2.84m x 2.34m )Small double looks out to front, overlooking greenBathroom 7' 5" x 5' 4" ( 2.26m x 1.63m )3 piece suite1. MONEY LAUNDERING REGULATIONS - Intending purchasers will be asked to produce identification documentation at a later stage and we would ask for your co-operation in order that there will be no delay in agreeing the sale. 2: These particulars do not constitute part or all of an offer or contract. 3: The measurements indicated are supplied for guidance only and as such must be considered incorrect. 4: Potential buyers are advised to recheck the measurements before committing to any expense. 5: Connells has not tested any apparatus, equipment, fixtures, fittings or services and it is the buyers interests to check the working condition of any appliances. 6: Connells has not sought to verify the legal title of the property and the buyers must obtain verification from their solicitor.BrochuresPDF Property ParticularsFull Details
Location
Address
Howland Garth, ST. ALBANS
City
Howland Garth
Features and Finishes
Ground floor shower room, Spacious kitchen, Two reception rooms, Off-street parking, Family bathroom, Granted planning permission for 2nd story, Three double bedrooms, Two reception rooms
Legal Notice
Our comprehensive database is populated by our meticulous research and analysis of public data. MirrorRealEstate strives for accuracy and we make every effort to verify the information. However, MirrorRealEstate is not liable for the use or misuse of the site's information. The information displayed on MirrorRealEstate.com is for reference only.