Inabadai, Otsu City, Shiga Prefecture

JPY 65000000 For Sale

Property Details

Property Type

House

Description

Construction Year: 1985

Prefecture: shiga

Views: 4478

Likes: 47

First Seen: Sun, 19 Nov 2023 00:00:00 GMT

Building Area: N/A m²

Land Area: N/A m²

Property Type: House

Station: Oiwake

Station Distance: 675m

Parking: Not Available

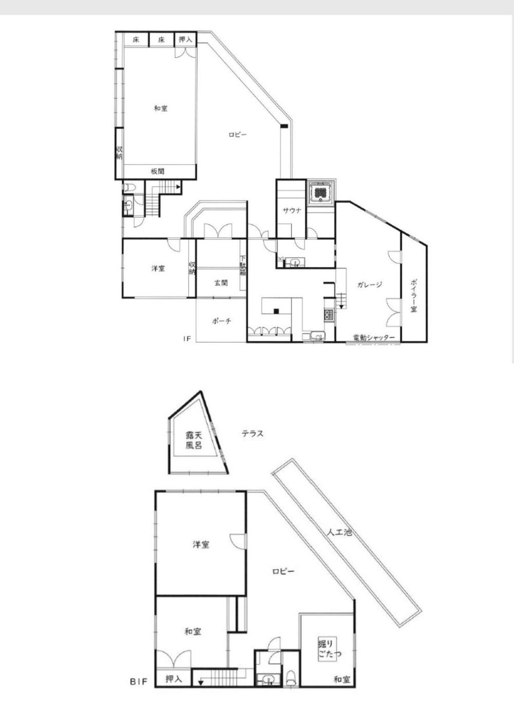
[Inabadai mansion equipped with an indoor sauna, special observation bath, and rock bath]

Person in charge: Sasaki, Equipment: Public water supply, main sewage, city gas, Building permission reason: Lot for sale with development permission, etc. Parking lot: Garage

This 38-year-old Inaba-Dai house boasts a sauna, a custom-designed view bath, and a rock bath. It is connected to public water, public sewer, and city gas. The parking is a garage.

Nestled in the heart of Inabadai, Otsu City, Shiga Prefecture, this property offers a tranquil retreat surrounded by the natural beauty of Lake Biwa and the majestic Mount Hiei. The area boasts a rich history, with ancient temples and shrines dotting the landscape, inviting you to explore the cultural heritage of Japan.

Location

Address

Inabadai, Otsu City, Shiga Prefecture

City

shiga

Legal Notice

Our comprehensive database is populated by our meticulous research and analysis of public data. MirrorRealEstate strives for accuracy and we make every effort to verify the information. However, MirrorRealEstate is not liable for the use or misuse of the site's information. The information displayed on MirrorRealEstate.com is for reference only.

Real Estate Broker
Akiya Mart
Brokerage
Akiya Mart
Top Tags
and rock bath public sewer and city gas Otsu City
Likes

0

Views

54

This website uses cookies to ensure you get the best experience. Learn more