Inkerman Terrace, Whitehaven

GBP 90000 For Sale

Property Details

Property Type

Plot

Description

Property Details: • Type: Plot • Tenure: N/A • Floor Area: N/A

Key Features: • Land, Inkerman Terrace • Planning Permission Granted: June 2024 • 4 Bedroom Detached Dwelling • Detached Garage • Plot Size: 0.19 Hectares • Easy access to A595

Location: • Nearest Station: Corkickle Station • Distance to Station: 0.2 miles

Agent Information: • Address: 46/47 King Street Whitehaven CA28 7JH

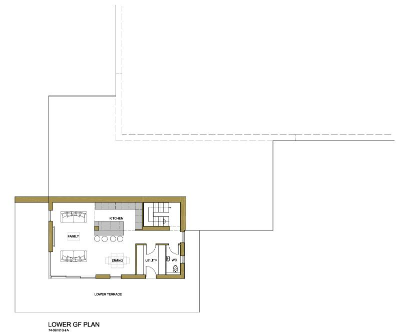
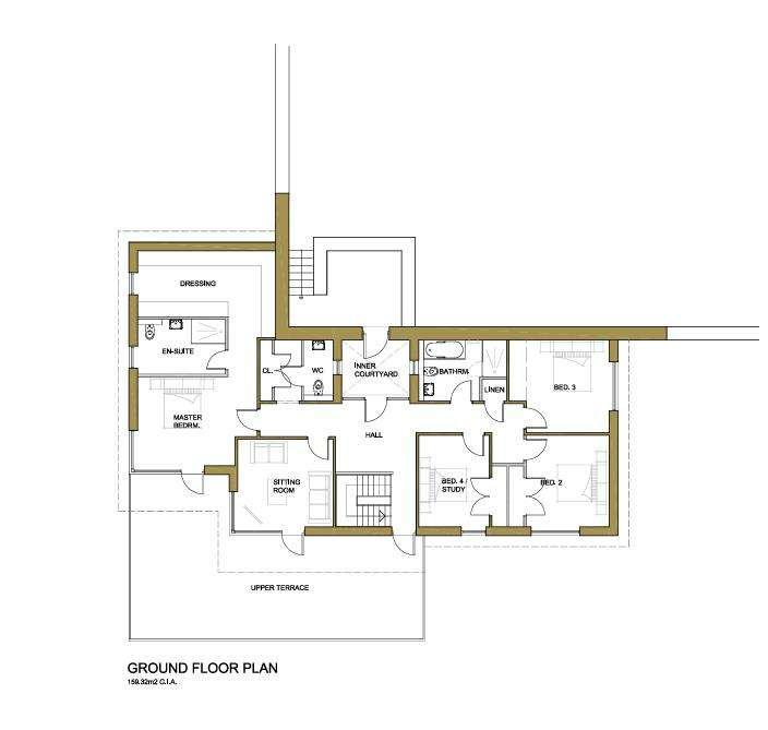
Full Description: Can't quite find the perfect home on the market for your family, have you considered a self build? This fantastic plot located on Inkerman terrace currently has planning permission granted (From June 2024) for a 4 Bedroom Detached Dwelling with additional Detached Garage. The plot itself is measured at 0.19 hectares (0.47 acres)Handily located for easy access to the A595 and links to local employment centres. For more information, or to discuss any aspects of the existing planning, please do not hesitate to give us a call - .Proposed Site Plan - Proposed Floor Plan - Ground Floor - Proposed Floor Plan -- First Floor - Directions - The plot is located on Inkerman Terrace, Whitehaven. Travelling from Morrisons towards Hensingham, the plot can be found on the Right hand side, located by a Grisdales For Sale Board.Notes To Brochure - Please note that all measurements have been taken using a laser tape measure which may be subject to a small margin of error. None of the appliances, heating system or fittings included within the sale have been tested or can be assumed to be in full working order. Purchasers are strongly advised to satisfy themselves by way of survey and their own enquiries. The brochure does not constitute a contract, part of a contract or warranty.The Consumer Protection Regulations 2008 - Please contact us before viewing the property. If there is any point of particular importance to you we will be pleased to provide additional information or to make further enquiries. We will also confirm that the property remains available. This is particularly important if you are contemplating travelling some distance to view the property.Moving With Grisdales - Moving is an exciting time but only if everything proceeds smoothly. Whether you are selling, letting, buying or renting, we understand that moving home can be a very stressful and daunting prospect. That's why, at Grisdales, we work together as a team, giving dedicated support and advice every step of the way to help your move run as smoothly and efficiently as possible.Free Market Appraisal - If you are thinking of moving, we offer a completely free market valuation and appraisal of your existing home. We will advise you upon an asking price which accurately positions your property in the current market place, maximising viewings and your sale prospects.Lettings And Management - If you are interested in property as an investment, we can help you every step of the way from Buy to Let advice to effective property letting and management.Surveys And Valuations - We want your purchase to live up to those dreams, hopes and expectations. You need to know that your new home will not only be a sound investment, but also one which you will enjoy without the worry of the unknown. Grisdales offer a wide range of survey and valuation reports to meet different needs all backed by the qualification, experience and knowledge of a Chartered Surveyor.Mortgage Advice - Grisdales works with The Right Advice Cumbria (Bulman Pollard) part of The Right Mortgage Ltd, one of the UK's fastest-growing Networks, offering expert professional advice to find the right mortgage for you. We have access to thousands of mortgages from across the whole market in the UK.Our advice will be specifically tailored to your needs and circumstances which could be for your first home, moving home, re-mortgaging or investing in property. To find out more about how we can assist you, just call your nearest Grisdales office.Your home or property may be repossessed if you do not keep up repayments on your mortgage. Some forms of Buy to Let Mortgages are not regulated by the Financial Conduct Authority. You may be charged a fee for mortgage advice. The actual amount you pay will depend upon your circumstances.BrochuresInkerman Terrace, Whitehaven

Location

Address

Inkerman Terrace, Whitehaven

City

Inkerman Terrace

Features and Finishes

Land, Inkerman Terrace, Planning Permission Granted: June 2024, 4 Bedroom Detached Dwelling, Detached Garage, Plot Size: 0.19 Hectares, Easy access to A595

Legal Notice

Our comprehensive database is populated by our meticulous research and analysis of public data. MirrorRealEstate strives for accuracy and we make every effort to verify the information. However, MirrorRealEstate is not liable for the use or misuse of the site's information. The information displayed on MirrorRealEstate.com is for reference only.

Real Estate Broker
Grisdales Estate Agents, Whitehaven
Brokerage
Grisdales Estate Agents, Whitehaven
Top Tags
Detached Garage Easy access to A595
Likes

0

Views

50

This website uses cookies to ensure you get the best experience. Learn more