Investment Or Self Build Opportunity On Douglas Road, Oldbury
Property Details
Land
Description
Property Details: • Type: Land • Tenure: FREEHOLD • Floor Area: N/A
Key Features: • QUOTE JC0304 • PLANNING PERMISSION THE DETACHED HOME • NO CIL LIABILITY • READY MADE SELF BUILD OR INVESTMENT OPPORTUNITY
Location: • Nearest Station: Langley Green Station • Distance to Station: 0.6233403079896747 miles
Agent Information: • Address: 114 St. Martin's Lane London WC2N 4BE
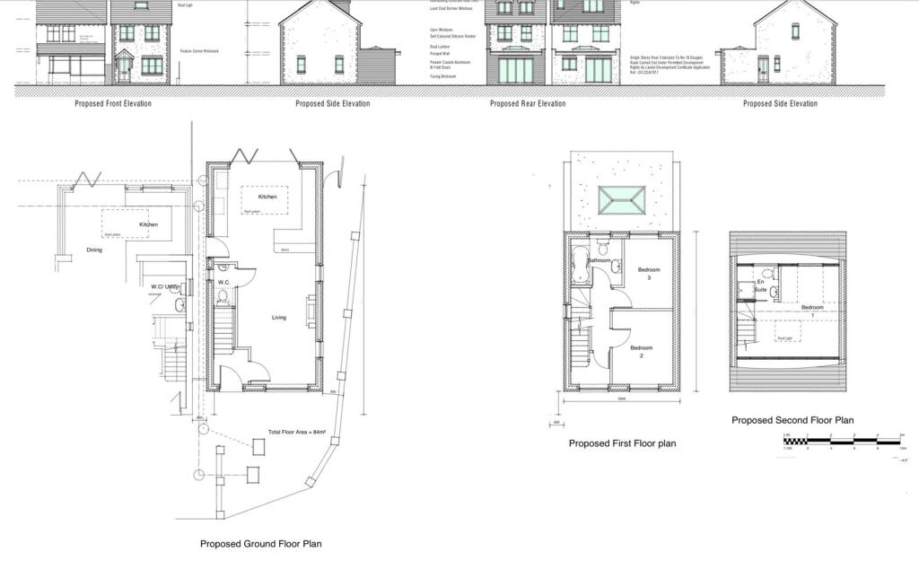
Full Description: <p><strong>SELF BUILD OR INVESTMENT OPPORTUNITY ON DOUGLAS ROAD” FREEHOLD </strong>with the benefit of <strong>GRANTED PLANNING</strong> for <strong>3 BED 2 BATHROOM DETACHED WITH DETACHED REAR GARAGES</strong>, available with <strong>NO UPWARD CHAIN</strong> been sold as vacant possession upon completion.</p><p><span style="text-decoration:underline"><strong>Planning</strong></span> </p><p>DC/25/70232 - Proposed 1 No. 3 bed dwelling with detached double garage to rear with new access/parking (Revision to refused planning permission DC/23/67966). Granted on appeal Wed 07 May 2025</p><p>We are advised that main utilities are available in the road, purchasers must satisfy their own diligence. Further we are advised that there is no CIL contribution for the new build.</p><p>Whilst every effort has been made to confirm the validity of measurements and details listed above buyers are advised to physically inspect or else otherwise satisfy themselves as to their accuracy.</p><p>Tenure - References to the tenure of a property are based on information supplied by the seller. We are advised that the main property is Freehold. </p><p>Money Laundering Regulations - In order to comply with Money Laundering Regulations, from June 2017, all prospective purchasers are required to provide the following - 1. Satisfactory photographic identification. 2. Proof of address/residency. 3. Verification of the source of purchase funds. The agent will obtain electronic biometric verification via a third-party provider in order to comply with Money Laundering Regulations, this will bear a cost to the purchaser to the sum of £30 per person. </p>
Location
Address
Investment Or Self Build Opportunity On Douglas Road, Oldbury
City
Investment Or Self Build Opportunity On Douglas Road
Features and Finishes
QUOTE JC0304, PLANNING PERMISSION THE DETACHED HOME, NO CIL LIABILITY, READY MADE SELF BUILD OR INVESTMENT OPPORTUNITY
Legal Notice
Our comprehensive database is populated by our meticulous research and analysis of public data. MirrorRealEstate strives for accuracy and we make every effort to verify the information. However, MirrorRealEstate is not liable for the use or misuse of the site's information. The information displayed on MirrorRealEstate.com is for reference only.