Ishio, Hikamicho, Tanba City, Hyogo Prefecture

JPY 3500000 For Sale

Property Details

Property Type

House

Description

Construction Year: 1932

Prefecture: hyogo

Views: 105

Likes: 4

First Seen: Fri, 20 Dec 2024 01:00:31 GMT

Building Area: 326.74 m²

Land Area: 337.79 m²

Property Type: House

Station: Ishio

Station Distance: 806m

Parking: Not Available

Private road charge: None Please come and see for yourself the atmosphere of the town.

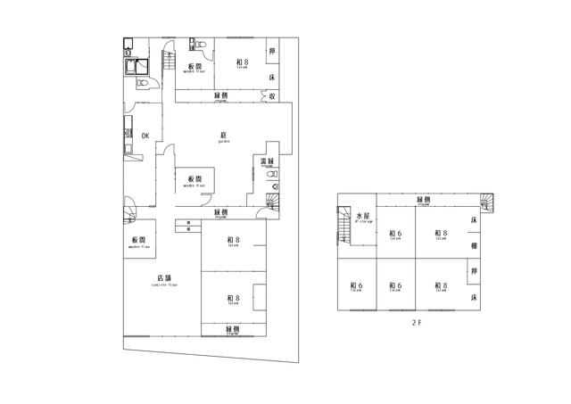
This 91-year-old, 2-story, wooden house has 8 bedrooms and is a 6-minute walk from Ishio Station on the JR Fukuchiyama Line. The house does not have any private road burden. Come and experience the atmosphere of the town for yourself.

Nestled in the picturesque Tanba City, Hyogo Prefecture, this property offers a tranquil retreat amidst the natural beauty of Ishio. Surrounded by lush greenery and rolling hills, the area boasts a rich history and cultural heritage. Explore the nearby Hikami Shrine, renowned for its stunning architecture and vibrant festivals. Immerse yourself in the local traditions and flavors at the charming cafes and restaurants that line the quaint streets. With its serene atmosphere and convenient access to urban amenities, Ishio provides the perfect balance of tranquility and convenience.

Location

Address

Ishio, Hikamicho, Tanba City, Hyogo Prefecture

City

hyogo

Legal Notice

Our comprehensive database is populated by our meticulous research and analysis of public data. MirrorRealEstate strives for accuracy and we make every effort to verify the information. However, MirrorRealEstate is not liable for the use or misuse of the site's information. The information displayed on MirrorRealEstate.com is for reference only.

Real Estate Broker
Akiya Mart
Brokerage
Akiya Mart
Top Tags
91-year-old 2-story wooden house 8 bedrooms
Likes

0

Views

70

This website uses cookies to ensure you get the best experience. Learn more