Iwasaki, Kama City, Fukuoka Prefecture

GBP 12000000 For Sale

Property Details

Property Type

House

Description

Construction Year: 1932

Prefecture: fukuoka

Views: 4589

Likes: 60

First Seen: Wed, 31 Jan 2024 00:00:00 GMT

Building Area: 280.11 m²

Land Area: 1432.69 m²

Property Type: House

Station: Shimogamo raw

Station Distance: 2327m

Parking: Not Available

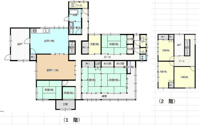
Japanese-style used detached house in Iwasaki, Kama City.It has a large garage and can park quite a few cars.Spacious 9SLDK.Would you like to live in an old folk house of your dreams?Since we have a large number of rooms, why not consider using it as a welfare facility?

Main lighting surface: South-east facing, attached building Garage/storage (steel frame or thatched one-story building, 116.28 m2) building, tilted.

This 90-year-old wooden house is located in Iwasaki, Kama City, Fukuoka Prefecture. It features 9 bedrooms, 1 living room, 1 dining room, and 1 kitchen. The house has a large garage that can accommodate several cars. The house is unoccupied and faces southeast. There is also a warehouse with a steel frame and a thatched roof that has a slight tilt. The house is a 38-minute walk from Iwasaki Station on the JR Gotoji Line.

Nestled in the heart of Kama City, Fukuoka Prefecture, Iwasaki offers a tranquil retreat surrounded by breathtaking natural beauty. Immerse yourself in the vibrant culture and rich history of this charming town, where ancient traditions blend seamlessly with modern amenities. From exploring the scenic hiking trails of Mount Sefuri to indulging in the delectable local cuisine, Iwasaki promises an unforgettable living experience in the heart of Japan's captivating countryside.

Location

Address

Iwasaki, Kama City, Fukuoka Prefecture

City

fukuoka

Legal Notice

Our comprehensive database is populated by our meticulous research and analysis of public data. MirrorRealEstate strives for accuracy and we make every effort to verify the information. However, MirrorRealEstate is not liable for the use or misuse of the site's information. The information displayed on MirrorRealEstate.com is for reference only.

Real Estate Broker
Akiya Mart
Brokerage
Akiya Mart
Top Tags
Iwasaki Kama City Fukuoka Prefecture 9 bedrooms
Likes

0

Views

39

This website uses cookies to ensure you get the best experience. Learn more