Kawashimacho, Sabae City, Fukui Prefecture

GBP 4300000 For Sale

Property Details

Property Type

House

Description

Construction Year: 1926

Prefecture: fukui

Views: 2257

Likes: 50

First Seen: Wed, 14 Jun 2023 00:00:00 GMT

Building Area: 158.67 m²

Land Area: 865.94 m²

Property Type: House

Station: Sabae

Station Distance: 3464m

Parking: Not Available

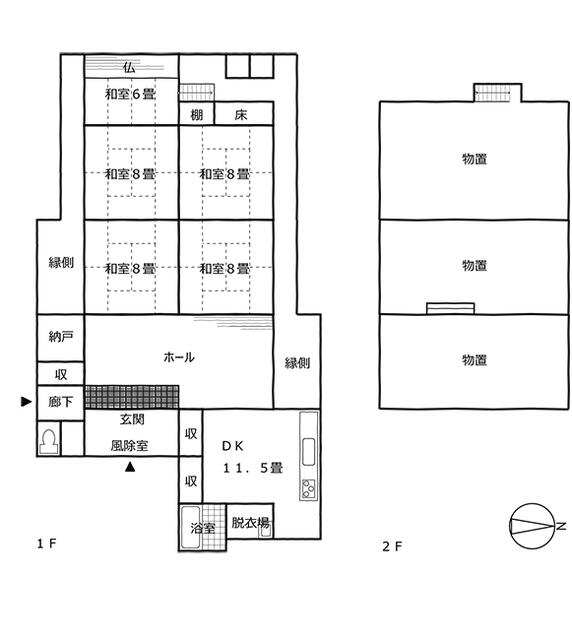
This 97-year-old traditional Japanese house stands on a large 992m2 lot. Also on the premises is a 45.2m2 storehouse, built in 1926, with a two-story earthen tile roof. It is a high-quality traditional Japanese house with thick pillars and beams still intact.

This 97-year-old traditional Japanese house stands on a large 990m2 lot. The second floor is not included in the floor area, but it has a large attic storage space. The property also includes a 45.2m2 storehouse, built in 1926, with a two-story earthen tile roof. This is a high-quality traditional Japanese house with thick pillars and beams still intact. It is also possible to build a parking lot.

Facing south, in a quiet residential area, over 33 sq. m garden

Main lighting surface: South facing

This 97-year-old house sits on a large lot and includes a 14.99-tatami mat storehouse built in the same year. The house features thick pillars and beams, indicating its high quality. The second floor has a spacious attic for storage. The property faces south and is located in a quiet residential area with a garden of over 10 tatami mats. There is also the possibility of creating a parking lot on the property.

Nestled in the heart of Fukui Prefecture, Kawashima Town is a tranquil haven surrounded by picturesque landscapes. Its proximity to Sabae City offers access to modern amenities while preserving the charm of traditional Japanese living. The town boasts a rich history and cultural heritage, with numerous temples and shrines showcasing its architectural beauty. Immerse yourself in the serene atmosphere of Kawashima Town, where nature and tradition intertwine to create an unforgettable living experience.

Location

Address

Kawashimacho, Sabae City, Fukui Prefecture

City

fukui

Legal Notice

Our comprehensive database is populated by our meticulous research and analysis of public data. MirrorRealEstate strives for accuracy and we make every effort to verify the information. However, MirrorRealEstate is not liable for the use or misuse of the site's information. The information displayed on MirrorRealEstate.com is for reference only.

Real Estate Broker
Akiya Mart
Brokerage
Akiya Mart
Top Tags
large 992m2 lot 45.2m2 storehouse built in 1926 south facing
Likes

0

Views

124

This website uses cookies to ensure you get the best experience. Learn more