Kilnwood Lane, South Chailey, Lewes, East Sussex

GBP 350000 For Sale

Property Details

Property Type

Plot

Description

Property Details: • Type: Plot • Tenure: N/A • Floor Area: N/A

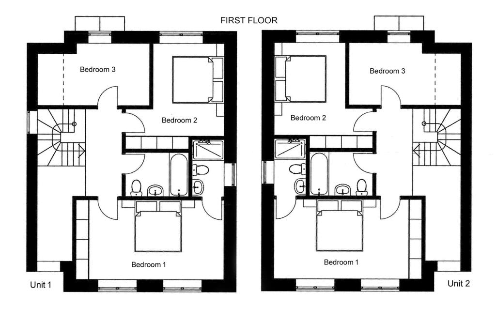
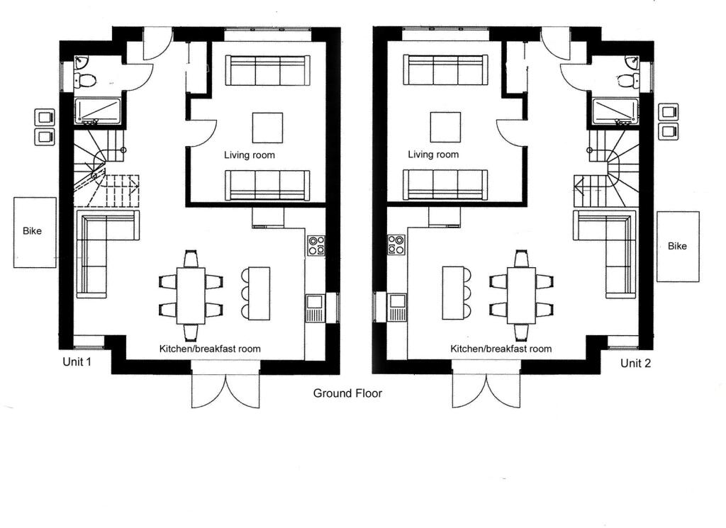
Key Features: • The development site has detailed planning for two 115 sq.m. (1238 sq.ft.)(GEA) houses, each comprising: • Hall, Cloakroom, Kitchen/breakfast room, Living room. • Landings, Principal bedroom with en-suite shower room, 2 further bedrooms, Family bathroom. • Garden, Parking, Bike store.

Location: • Nearest Station: Plumpton Station • Distance to Station: 1.9 miles

Agent Information: • Address: Humberts, The Old Bakery, Lewes Road, Forest Row, East Sussex, RH18 5HA

Full Description: An excellent development site which has planning consent for two 3-bedroom family homes on two floors, set in a very convenient location in South Chailey. The development site has detailed planning for two 115 sq.m. (1238 sq.ft.)(GEA) houses, each comprising: Hall, Cloakroom, Kitchen/breakfast room, Living room.Landings, Principal bedroom with en-suite shower room, 2 further bedrooms, Family bathroom.Garden, Parking, Bike store.PlanningDetailed Planning was granted by Lewes District Council on 11 November 2024. Application number LW/24/0510. The application is for the erection of two three-bedroom dwellings with associated access and landscaping. Mains water, electricity and drainage are close by. The owners’ architect, Ecotecture have full planning information as well as it being found on the council portal. The purchasers will be liable for CIL contribution.DirectionsFrom Forest Row head south on the A22. At Wych Cross turn onto A275. At North Chailey at the mini roundabouts turn right and then left and stay on the A275. Proceed through Chailey and then into South Chailey. After passing Mill Lane on the right, Kilnwood Lane is the third on the left. The site will be found on the left just after the 15 MPH sign.Local Amenities and Surrounding AreaFor a good range of local amenities there is the nearby village of Newick. An extensive range of shopping and recreational facilities are available in Lewes, Uckfield and Haywards Heath. There are railway stations at Haywards Heath and Lewes.Tenure and Local AuthoritiesFreehold.Lewes District Council: . East Sussex County Council: .BrochuresWeb DetailsParticulars

Location

Address

Kilnwood Lane, South Chailey, Lewes, East Sussex

City

Chailey

Features and Finishes

The development site has detailed planning for two 115 sq.m. (1238 sq.ft.)(GEA) houses, each comprising:, Hall, Cloakroom, Kitchen/breakfast room, Living room., Landings, Principal bedroom with en-suite shower room, 2 further bedrooms, Family bathroom., Garden, Parking, Bike store.

Legal Notice

Our comprehensive database is populated by our meticulous research and analysis of public data. MirrorRealEstate strives for accuracy and we make every effort to verify the information. However, MirrorRealEstate is not liable for the use or misuse of the site's information. The information displayed on MirrorRealEstate.com is for reference only.

Real Estate Broker
Humberts, Forest Row
Brokerage
Humberts, Forest Row
Top Tags
Kilnwood Lane South Chailey Lewes East Sussex
Likes

0

Views

68

This website uses cookies to ensure you get the best experience. Learn more