King Street, Markyate, AL3

GBP 525000 For Sale

Property Details

Property Type

Land

Description

Property Details: • Type: Land • Tenure: N/A • Floor Area: N/A

Key Features: • Each new build property will feature the following • Entrance Hall. Lounge • Kitchen/Dining Room • Utility • W.C. • Three Bedrooms • Three Bathrooms • Garden • Two Parking Spaces

Location: • Nearest Station: Luton Parkway Station • Distance to Station: 3.8 miles

Agent Information: • Address: 36 High Street, Harpenden, AL5 2SX

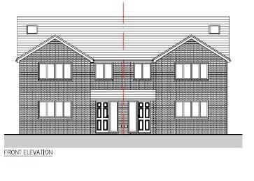
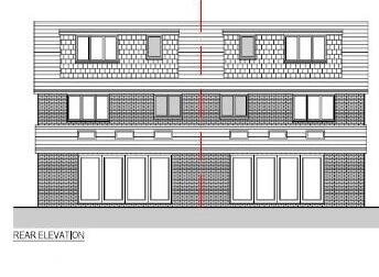
Full Description: Planning permission* has been granted for a pair of brand new semi detached houses with accommodation of approximately 1,600 sq ft over three floors. The site is located in the heart of the popular village of Markyate and backs onto playing fields.

The plans comprise the demolition of an existing dwelling on the South West side of George Street in Markyate and in its place the construction of a pair of semi detached family houses with gardens and two parking spaces per property. Further information can be found in the planning section of Dacorum Borough Council's website Ref. No: 23/02861/FUL

* planning permission has been granted but we are waiting on the decision notice from Dacorum B.C for the Chilterns Beechwoods SAC Mitagation StrategyOutsideThe plans include gardens for each of the property along with two parking spaces per property.SituationMarkyate is a popular Hertfordshire Village with a good range of local amenities including shops, restaurants and primary school. A more comprehensive range of amenities can be found in the nearby pretty town of Harpenden or the historic city of St Albans including fast rail services to St Pancras International and beyond.

Markyate is well located for the road commuter with access to the motorway network via Jct 9 of the M1 close by. Luton airport is within 8 miles from the site.

Viewings by appointment with Hamptons or our joint agent RTM Land Consultancy Ltd

The main image is an indicative CGI of the development once complete for guidance purposes and as with the floor plans/estimated floor areas should not be relied upon for accuracy.BrochuresBrochure

Location

Address

King Street, Markyate, AL3

City

Markyate

Features and Finishes

Each new build property will feature the following, Entrance Hall. Lounge, Kitchen/Dining Room, Utility, W.C., Three Bedrooms, Three Bathrooms, Garden, Two Parking Spaces

Legal Notice

Our comprehensive database is populated by our meticulous research and analysis of public data. MirrorRealEstate strives for accuracy and we make every effort to verify the information. However, MirrorRealEstate is not liable for the use or misuse of the site's information. The information displayed on MirrorRealEstate.com is for reference only.

Real Estate Broker
Hamptons, Harpenden
Brokerage
Hamptons, Harpenden
Top Tags
Likes

0

Views

100

This website uses cookies to ensure you get the best experience. Learn more