Kings Drive, Eastbourne
Property Details
3
2
Maisonette
Description
Property Details: • Type: Maisonette • Tenure: N/A • Floor Area: N/A
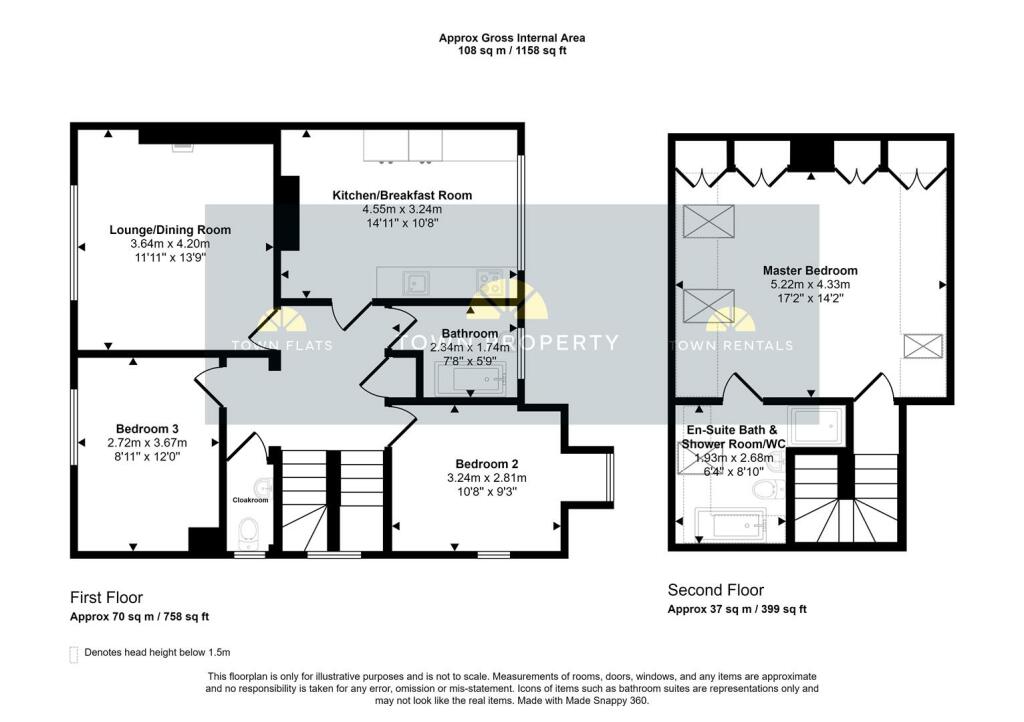
Key Features: • Beautifully Presented Split Level Maisonette With Private Rear Entrance Door • 3 Bedrooms • Lounge/Dining Room With Log Burner • Fitted Kitchen/Breakfast Room • En-Suite Bath & Shower/WC • Modern Luxury Bathroom/WC • Electric Heating • Double Glazing • Private Rear Garden With Summerhouse • Off Road Parking For 1 Vehicle
Location: • Nearest Station: N/A • Distance to Station: N/A
Agent Information: • Address: 15 Cornfield Road Eastbourne BN21 4QD
Full Description: ***GUIDE PRICE £310,000 - £320,000***A beautifully presented three bedroom split level apartment with private rear entrance door, sizable private lawned rear garden and glorious views over open fields. Situated on Kings Drive the maisonette has undergone significant improvement and benefits from a luxury refitted kitchen/breakfast room with integrated appliances, three double bedrooms, the master having a wonderful en-suite with bath & shower, a further bathroom and lounge/dining room with log burner. A particular feature of the property is the delightful private garden that has a summerhouse that’s currently used as a bar and a seating area that looks over open fields. To the front there is off road parking for one vehicle. Flats of this size are rarely available and with it being sold with a share of the freehold an internal inspection comes highly recommended.Entrance - Private entrance door to side with internal staircase with double glazed window and electric radiator leading to -Split Level Hallway - Entryphone handset. Airing cupboard housing hot water cylinder. Stairs to first floor.Lounge/Dining Room - Feature fireplace with log burner on a stone hearth. Coved ceiling. Television point. Electric radiator. Double glazed window to rear aspect with wonderful views over open fields.Fitted Kitchen/Breakfast Room - Wonderful range of high gloss wall & base units. Worktop with inset single drainer sink unit and mixer tap. Built-in electric hob with extractor cooker hood. Built-in electric oven and microwave. Integrated fridge/freezer, washing machine and dishwasher. Island with matching worktop and built-in wine cooler. Inset spotlights. Electric radiator. Built-in cupboard with fixed shelving. Double glazed window.Double Aspect Master Bedroom - Skylights to front & rear aspects. Wood effect flooring. Inset spotlights. Built-in eaves wardrobes. Door to -En-Suite Bath & Shower/Wc - Suite comprising bath with chrome mixer tap & hand held shower attachment. Shower cubicle. Vanity unit with inset wash hand basin, chrome mixer tap and cupboard below. Low level WC with concealed cistern. Part tiled walls. Tiled floor. Heated towel rail. Skylight.Bedroom 2 - Electric radiator. Fitted wardrobe. Picture rail. Double glazed window to rear aspect with wonderful views over open fields.Double Aspect Bedroom 3 - Electric radiator. Picture rail. Double glazed windows to front & side aspects.Modern Luxury Bathroom/Wc - White suite comprising panelled bath with chrome mixer tap, shower attachment & shower screen. Vanity unit with inset wash hand basin, chrome mixer tap and cupboards below. Chrome heated towel rail. Part tiled walls. Tiled floor. Frosted double glazed window.Cloakroom - Low level WC. Vanity unit with inset wash hand basin, chrome mixer tap and cupboards below. Part tiled walls. Frosted double glazed window.Outside - To the rear of the property are stunning rear gardens mainly laid to lawn with flower beds, mature trees and shrubs. There is also a summerhouse that is currently being used as a bar. A seating area behind the bar provides wonderful views of open fields.Parking - To the front of the property there is off road parking for one vehicle.Epc = E - Council Tax Band = B - BrochuresKings Drive, Eastbourne
Location
Address
Kings Drive, Eastbourne
City
Eastbourne
Features and Finishes
Beautifully Presented Split Level Maisonette With Private Rear Entrance Door, 3 Bedrooms, Lounge/Dining Room With Log Burner, Fitted Kitchen/Breakfast Room, En-Suite Bath & Shower/WC, Modern Luxury Bathroom/WC, Electric Heating, Double Glazing, Private Rear Garden With Summerhouse, Off Road Parking For 1 Vehicle
Legal Notice
Our comprehensive database is populated by our meticulous research and analysis of public data. MirrorRealEstate strives for accuracy and we make every effort to verify the information. However, MirrorRealEstate is not liable for the use or misuse of the site's information. The information displayed on MirrorRealEstate.com is for reference only.