Lacey Crescent, Parkstone, Poole, Dorset, BH15

GBP 350000 For Sale

Property Details

Bedrooms

2

Bathrooms

1

Property Type

Bungalow

Description

Property Details: • Type: Bungalow • Tenure: Freehold • Floor Area: N/A

Key Features: • LUXURY HIGH SPECIFICATION BATH/SHOWER ROOMS • HIGH QUALITY KITCHEN WITH INTEGRATED FRIDGE/FREEZER, DISHWASHER, INDUCTION HOB & OVEN • QUIET CUL DE SAC • 10 YEAR WARRANTY • LVT FLOORING IN HALLWAYS AND LIVING SPACES - CARPET IN BEDROOMS • OFF PLAN RESERVATION AVAILABLE NOW • GAS CENTRAL HEATING

Location: • Nearest Station: N/A • Distance to Station: N/A

Agent Information: • Address: 2 Station Road, Lower Parkstone, Poole, BH14 8UB

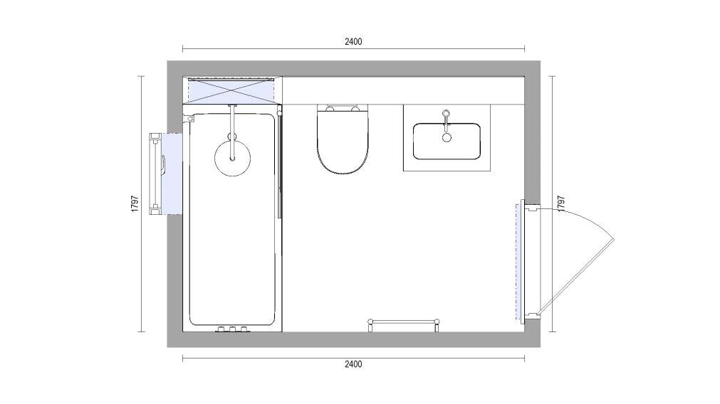
Full Description: FOUR BRAND NEW BUNGALOWS - Due for completion November/December 2025. Each of these lovely detached homes will have two bedrooms and a high specification of interior finish - off plan reservation is possible now. FOR ROOM MEASUREMENTS PLEASE REFER TO OUR FLOORPLAN THE DEVELOPMENT - These two bedroom bungalows will be ready for occupation November/December 2025 and there are to be four new homes built in a new small cul-de-sac location, each built with a high quality kitchen and bathroom plus a garden and parking space. A 10 year warranty comes with each bungalow, high insulation levels that you would expect in a new home plus gas central heating. Low maintenance garden and parking spaceOFF PLAN RESERVATION POSSIBLE TENURE - FreeholdVIEWINGS - We show homes Monday to Saturday. Many sellers go to great lengths to prepare for viewings. Please check out the mapping section of the listing to ensure the property is where you want it to be and the floorplan to ensure it has the accommodation you need. We appreciate situations can change so if for any reason you need to cancel a viewing please try and give 24 hours’ notice where possible.

Location

Address

Lacey Crescent, Parkstone, Poole, Dorset, BH15

City

Poole

Features and Finishes

LUXURY HIGH SPECIFICATION BATH/SHOWER ROOMS, HIGH QUALITY KITCHEN WITH INTEGRATED FRIDGE/FREEZER, DISHWASHER, INDUCTION HOB & OVEN, QUIET CUL DE SAC, 10 YEAR WARRANTY, LVT FLOORING IN HALLWAYS AND LIVING SPACES - CARPET IN BEDROOMS, OFF PLAN RESERVATION AVAILABLE NOW, GAS CENTRAL HEATING

Legal Notice

Our comprehensive database is populated by our meticulous research and analysis of public data. MirrorRealEstate strives for accuracy and we make every effort to verify the information. However, MirrorRealEstate is not liable for the use or misuse of the site's information. The information displayed on MirrorRealEstate.com is for reference only.

Real Estate Broker
Frost&Co, Poole
Brokerage
Frost&Co, Poole
Top Tags
Likes

0

Views

17

This website uses cookies to ensure you get the best experience. Learn more