Lamb Farm Barns, London Road, Sutton Coldfield, B75 5SD
Property Details
2
1
Barn Conversion
Description
Property Details: • Type: Barn Conversion • Tenure: N/A • Floor Area: N/A
Key Features: • "GO GREEN" NEW BUILD BARN CONVERSIONS • SET IN THE BEAUTIFUL VILLAGE OF SEMI RURAL CANWELL • AIR SOURCE HEAT PUMPS • OFF ROAD PARKING • OPEN PLAN LIVING/DINING/KITCHEN AREA • REALLY MUST BE VIEWED TO APPRECIATE • 10 YEAR WARRANTY
Location: • Nearest Station: N/A • Distance to Station: N/A
Agent Information: • Address: First Floor, 5 High Street, Aldridge, WS9 8LX
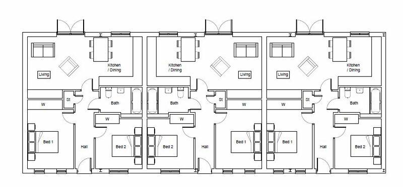
Full Description: Set in a semi rural location these beautifully presented new build barn conversions have been built with "Go Green" in mind. These properties are on a small development of three and must be viewed to be appreciated.Within easy reach of shops and amenities at Four Oaks as well as Tamworth these charming homes boasts open plan living, including a kitchen with integrated appliances. There are two generous bedrooms to the ground floor with a contemporary bathroom suite.With allocated parking and landscaped gardens, early inspection is advised to appreciate the standard of accommodation on offer.BrochuresFull Details
Location
Address
Lamb Farm Barns, London Road, Sutton Coldfield, B75 5SD
City
London
Features and Finishes
"GO GREEN" NEW BUILD BARN CONVERSIONS, SET IN THE BEAUTIFUL VILLAGE OF SEMI RURAL CANWELL, AIR SOURCE HEAT PUMPS, OFF ROAD PARKING, OPEN PLAN LIVING/DINING/KITCHEN AREA, REALLY MUST BE VIEWED TO APPRECIATE, 10 YEAR WARRANTY
Legal Notice
Our comprehensive database is populated by our meticulous research and analysis of public data. MirrorRealEstate strives for accuracy and we make every effort to verify the information. However, MirrorRealEstate is not liable for the use or misuse of the site's information. The information displayed on MirrorRealEstate.com is for reference only.