Land Adjacent To 461 King Henrys Drive, New Addington, Surrey
Property Details
Ask agent
Description
Property Details: • Type: Ask agent • Tenure: N/A • Floor Area: N/A
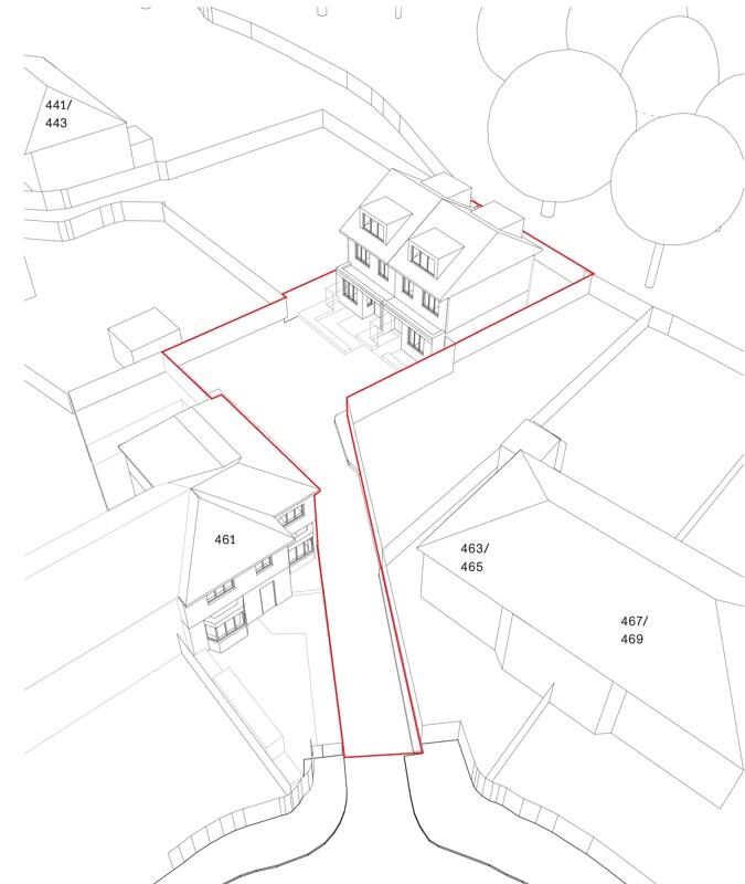
Key Features: • Vacant, freehold development site for sale • Located in New Addington • Green suburban area close to Bromley & Croydon • Consent to build two new 4 bedroom houses • Consent includes 4 off street parking spaces • Guide price - £300,000 F/H
Location: • Nearest Station: New Addington Tram Stop • Distance to Station: 237.4 miles
Agent Information: • Address: 9 St. Marks Road Bromley Kent BR2 9HG
Full Description: An opportunity to purchase a vacant, freehold development site which benefits from full planning permission for the erection of two semi-detached 4-bedroom houses with rear gardens and off-street car parking. The houses have been designed with a similar character to the surrounding area, with modern internal layouts which will no doubt be well-received by the end user market upon completion. Opportunities to build new houses in Greater London are increasingly rare, and new freehold houses with private gardens are particularly sought-after amongst residential buyers particularly those with families.
Location
Address
Land Adjacent To 461 King Henrys Drive, New Addington, Surrey
City
None
Features and Finishes
Vacant, freehold development site for sale, Located in New Addington, Green suburban area close to Bromley & Croydon, Consent to build two new 4 bedroom houses, Consent includes 4 off street parking spaces, Guide price - £300,000 F/H
Legal Notice
Our comprehensive database is populated by our meticulous research and analysis of public data. MirrorRealEstate strives for accuracy and we make every effort to verify the information. However, MirrorRealEstate is not liable for the use or misuse of the site's information. The information displayed on MirrorRealEstate.com is for reference only.