Land at 7 Wyndham Road, Cardiff, CF11 9EJ
Property Details
2
1
Semi-Detached
Description
Property Details: • Type: Semi-Detached • Tenure: N/A • Floor Area: N/A
Key Features:
Location: • Nearest Station: N/A • Distance to Station: N/A
Agent Information: • Address: Desg, 11-13 Penhill Road, Pontcanna, Cardiff, CF11 9PQ
Full Description: FOR SALE BY PUBLIC AUCTION: The auction will take place online on 4th February 2025 at 05:00 PM with registration through our website.
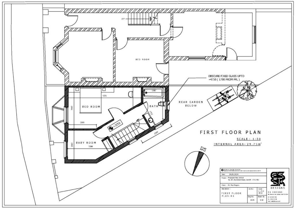
Rare building plot in this very popular area of Cardiff with planning permission granted for a bay-fronted two bedroom house (23/02505/FUL)
Description Rare building plot in this very popular area of Cardiff with planning permission granted for a bay-fronted two bedroom house (23/02505/FUL).
The land itself is a level cleared plot with hoarding to the front of the property. Some of the main approved drawings attached and the full plans and details are available from the Cardiff council planning portal - reference 23/02505/FUL & linked to 24/01370/VAR.
Wyndham road is a popular residential crescent on the edge of Pontcanna and Canton and is close to both Cowbridge road East and the various amenities of Pontcanna.
Informed Freehold please refer to legal pack for verification of tenure
Additional Fees Buyer’s Premium – 1.2% with a minimum of 1,200.00 (inc of VAT) payable on exchange of contracts. Please refer to the legal pack for any further disbursements to be paid by the purchaser on completion.
Each property sold is subject to a Reserve Price. The Reserve Price, which is agreed between the seller and the auctioneer just prior to the auction, will be within + or - 10% of the Guide Price. The Guide Price is issued solely as a guide so that a buyer can consider whether or not to pursue their interest. Both the Guide Price and the Reserve Price can be subject to change up to and including the day of the auction.
Further Information Auctioneers Office, Seel and Co
Viewing The land is open for external inspection. Please do not enter the land without a representative of Seel and Co. Neither the seller nor the auctioneers will be responsible for any accident howsoever caused.BrochuresLegal DocumentsOnline Bidding
Location
Address
Land at 7 Wyndham Road, Cardiff, CF11 9EJ
City
Cardiff
Features and Finishes
None
Legal Notice
Our comprehensive database is populated by our meticulous research and analysis of public data. MirrorRealEstate strives for accuracy and we make every effort to verify the information. However, MirrorRealEstate is not liable for the use or misuse of the site's information. The information displayed on MirrorRealEstate.com is for reference only.