Land & Buildings, Wooley Lane, Baxenden, BB5 2EA

GBP 350000 For Sale

Property Details

Property Type

Land

Description

Property Details: • Type: Land • Tenure: N/A • Floor Area: N/A

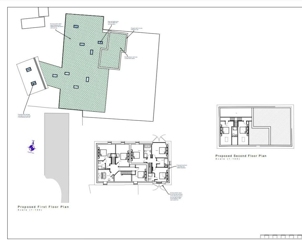
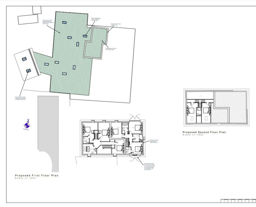
Key Features: • PLANNING PASSED FOR FOUR RESIDENTIAL PROPERTIES • CLOSE TO BAXENDEN GOLF CLUB • A PAIR OF 4 BEDROOM PROPERTIES AND A PAIR OF 3 BEDROOM PROPERTIES • PLANNING CAN BE VIEWED ON HYNDBURN COUNCIL WEBSITE REF 11/23/0523 • STUNNING RURAL LOCATION

Location: • Nearest Station: Accrington Station • Distance to Station: 1.8 miles

Agent Information: • Address: 435 - 437 Walmersley Road, Bury, BL9 5EU

Full Description: An ideal development opportunity for a developer or builder. The site is in a semi rural location in Baxenden with outstanding countryside views. The plans comprise two four bedroom homes and two three bedroom homes. Full details on the planning can be found on the Hyndburn council website under ref 11/23/0523. The site measures just over 0.5 acres. Although the site is situated in a semi rural location close to Baxenden golf club, it has good access to the A56 which links to both the M66 and M65 motorways. Viewings are recommended to appreciate the size of the plot and the location.Additional Information - Tenure - FreeholdServices - We have been informed that there is mains electricity and water leading up to the site. There is no mains gas and no mains drainage.BrochuresLand & Buildings, Wooley Lane, Baxenden, BB5 2EABrochure

Location

Address

Land & Buildings, Wooley Lane, Baxenden, BB5 2EA

City

Halenbeck-Rohlsdorf

Features and Finishes

PLANNING PASSED FOR FOUR RESIDENTIAL PROPERTIES, CLOSE TO BAXENDEN GOLF CLUB, A PAIR OF 4 BEDROOM PROPERTIES AND A PAIR OF 3 BEDROOM PROPERTIES, PLANNING CAN BE VIEWED ON HYNDBURN COUNCIL WEBSITE REF 11/23/0523, STUNNING RURAL LOCATION

Legal Notice

Our comprehensive database is populated by our meticulous research and analysis of public data. MirrorRealEstate strives for accuracy and we make every effort to verify the information. However, MirrorRealEstate is not liable for the use or misuse of the site's information. The information displayed on MirrorRealEstate.com is for reference only.

Real Estate Broker
Pearson Ferrier, Bury
Brokerage
Pearson Ferrier, Bury
Top Tags
Likes

0

Views

57

This website uses cookies to ensure you get the best experience. Learn more