Land, Foley Gardens, Stoke Prior, Bromsgrove, B60 4LD
Property Details
5
3
Land
Description
Property Details: • Type: Land • Tenure: N/A • Floor Area: N/A
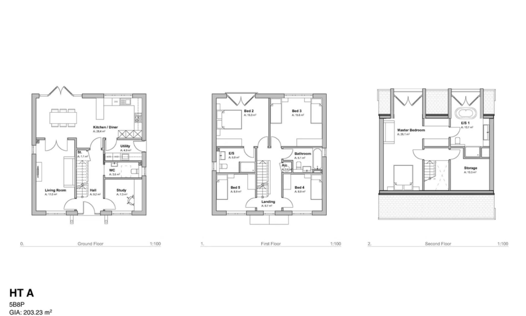
Key Features: • Two Detached, Five Bedroom Properties • Full Planning Permission GRANTED • Approx. 203 sqm Each • Semi-Rural Location • Views Over Fields • Ideal for Developers or Self-Build Projects
Location: • Nearest Station: N/A • Distance to Station: N/A
Agent Information: • Address: 14 Old Birmingham Road Lickey End Bromsgrove B60 1DE
Full Description: Development Opportunity with Granted Planning Permission - An exciting chance to acquire a prime plot of land with full planning permission approved for the construction of two detached, five-bedroom homes (approx. 203 sqm each). Situated in the desirable semi-rural village of Stoke Prior, Bromsgrove, this opportunity offers excellent potential in a sought-after location, ideal for developers or self-build projects.Application no: 22/01023/FULHouse HTA - The property will benefit from off-street parking for several vehicles.Upon entering, the hallway will feature convenient under-stairs storage and a guest WC. To the left, a door will open into a spacious lounge, which in turn leads through double doors into a generously sized kitchen/diner. French doors from the kitchen/diner will open onto the rear garden, creating an ideal space for indoor-outdoor living. Adjoining the kitchen will be a practical utility room with external doorway to the rear garden. Also located on the ground floor is an additional reception room, perfect for use as a home office, playroom, or gym.Stairs from the hallway will rise to the first-floor landing, providing access to four double bedrooms. Bedroom two will benefit from its own en-suite shower room, while the remaining bedrooms will be served by a modern family bathroom.A further staircase leads to the second floor, where the impressive master suite will be situated. This spacious room will feature a Juliette balcony, fitted wardrobe space, a dedicated storage area (with potential to be used as a dressing room), and a luxurious en-suite bathroom complete with a bathtub and a second Juliette balcony.The property will also enjoy a private rear garden, offering a great space for relaxing or entertaining.House HTAA - The property will benefit from off-street parking for several vehicles.Upon entering, the hallway will feature convenient under-stairs storage and a guest WC. To the left, a door will open into a spacious lounge, which in turn leads through double doors into a generously sized kitchen/diner. French doors from the kitchen/diner will open onto the rear garden, creating an ideal space for indoor-outdoor living. Adjoining the kitchen will be a practical utility room with external doorway to the rear garden. Also located on the ground floor is an additional reception room, perfect for use as a home office, playroom, or gym.Stairs from the hallway will rise to the first-floor landing, providing access to four double bedrooms. Bedroom two will benefit from its own en-suite shower room, while the remaining bedrooms will be served by a modern family bathroom.A further staircase leads to the second floor, where the master suite will be located. This impressive space will include a dressing area with fitted wardrobes and an en-suite shower room.The property will also enjoy a private rear garden, offering a great space for relaxing or entertaining.EPC Rating: F
Location
Address
Land, Foley Gardens, Stoke Prior, Bromsgrove, B60 4LD
City
Bromsgrove
Features and Finishes
Two Detached, Five Bedroom Properties, Full Planning Permission GRANTED, Approx. 203 sqm Each, Semi-Rural Location, Views Over Fields, Ideal for Developers or Self-Build Projects
Legal Notice
Our comprehensive database is populated by our meticulous research and analysis of public data. MirrorRealEstate strives for accuracy and we make every effort to verify the information. However, MirrorRealEstate is not liable for the use or misuse of the site's information. The information displayed on MirrorRealEstate.com is for reference only.