Land, Llantrisant, Pontyclun
Property Details
Land
Description
Property Details: • Type: Land • Tenure: N/A • Floor Area: N/A
Key Features:
Location: • Nearest Station: Pontyclun Station • Distance to Station: 1.4 miles
Agent Information: • Address: 176 Cowbridge Road East Canton Cardiff CF11 9NE
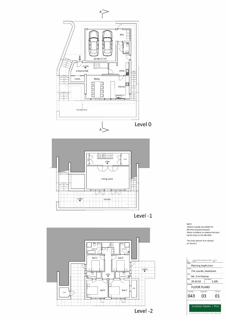
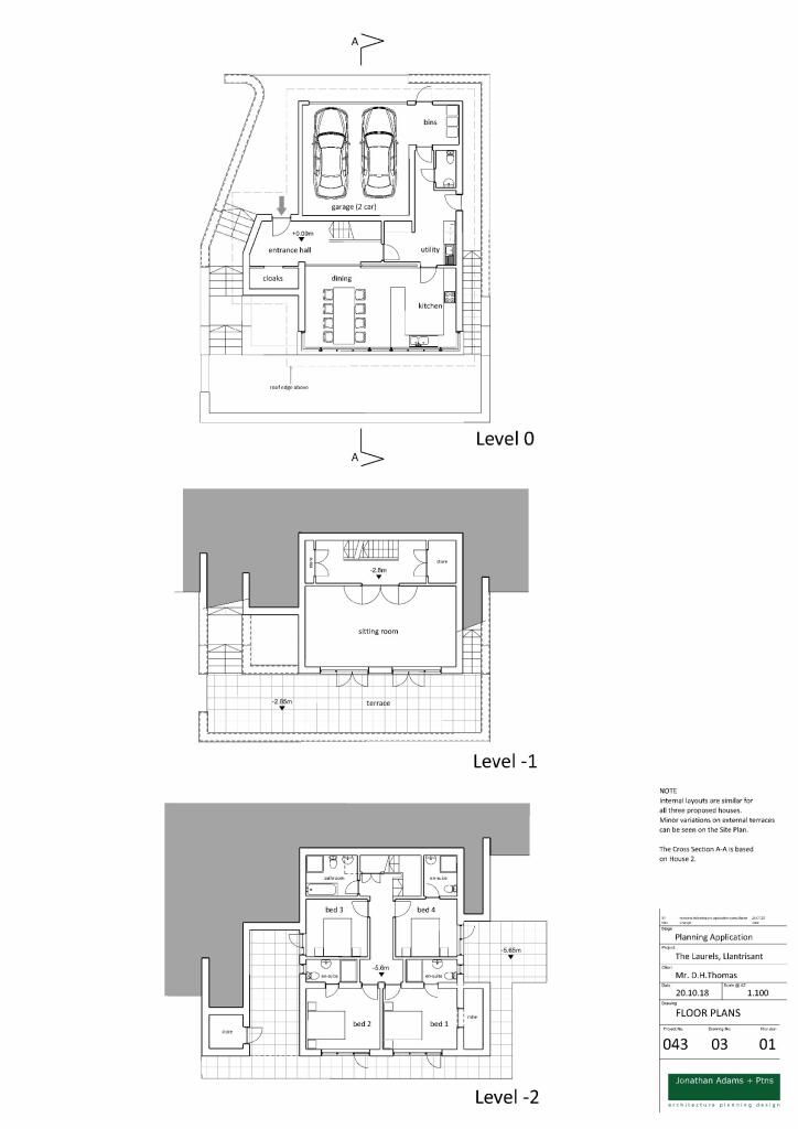
Full Description: We have a site with planning permission to build three quality detached homes on the South side of the 1.5 acre grounds of the "The Laurels" The three plots are located will be accessed by their own private driveway and a change of elevation between the main house (The Laurels) and the proposed dwellings allows each to enjoy their own privacy and views.Planning Permission - Planning permission was granted on 2nd March 2023 on appeal reference CAS-01865-H4Q2K8 in relation to application reference 20/1105/01 dated 12th October 2020 for three detached four bedroom houses. A full copy of the decision together with conditions, plans, layout etc. is available on request from our offices. An artist impression of the development, particularly in relation to The Laurels, is included in these details of sale. The development is liable to make a payment to Rhondda Cynon Taff County Borough Council by way of the Community Infrastructure Levy (CIL). Full details including stage payments and possible exemptions are available from our offices with the planning documents.Wayleaves And Easements - The property is sold with and subject to all rights of ways and access wayleaves, water, support, light, drainage and other easements.Covenants Etc - Covenants quasi easements, restriction orders as they may exist when mentioned in these sales particulars or otherwise. We also note that there are no footpaths with the development site.Plans/ Areas/ Schedules - Any plans have been prepared to the foremost accuracy of the land registry plans. Any plans within these particulars are published for administrative purposes only and the accuracy of such particulars is not guaranteed.Local Authority - Rhondda Cynon Taf County Borough Council.BrochuresBrochure
Location
Address
Land, Llantrisant, Pontyclun
City
Pont-y-clun
Features and Finishes
None
Legal Notice
Our comprehensive database is populated by our meticulous research and analysis of public data. MirrorRealEstate strives for accuracy and we make every effort to verify the information. However, MirrorRealEstate is not liable for the use or misuse of the site's information. The information displayed on MirrorRealEstate.com is for reference only.