Land Off Manchester Road, Kearsley, Bolton

GBP 230000 For Sale

Property Details

Property Type

Plot

Description

Property Details: • Type: Plot • Tenure: N/A • Floor Area: N/A

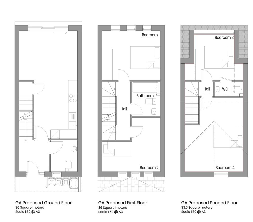
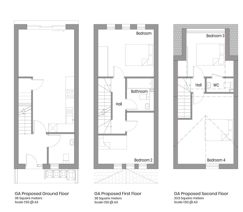
Key Features: • TO BE SOLD UNDER AUCTION TERMS • ESTIMATED GDV £1,475,000 • READY FOR IMMEDIATE DEVELOPMENT • APPROVED SCHEME FOR 5 MODERN TOWN HOUSES • GREAT TRANSPORT LINKS

Location: • Nearest Station: N/A • Distance to Station: N/A

Agent Information: • Address: 65-81 St Petersgate, Stockport SK1 1DS

Full Description: TO BE SOLD BY ONLINE AUCTION ON 2nd JULY 2025 UNLESS SOLD PRIOR UNDER AUCTION TERMS.PRIME DEVELOPMENT OPPORTUNITY – LAND OFF MANCHESTER ROAD, KEARSLEY, BOLTON BL4 8PZ****ESTIMATED GDV £1.475 Million **** A rare and highly attractive opportunity for developers and investors to acquire a prime parcel of land in a desirable and well-connected location. with full planning permission granted for the construction of five high-quality four bedroom townhouses. Application number - 14498/22Situated on Manchester Road in Kearsley, Bolton, this development site benefits from excellent transport links including Kearsley train station, M61 and key bus routes. The area has an increasing demand for modern family housing, With an estimated Gross Development Value of £1.475 million, this site presents a strong potential return on investment.Please note Edward Mellor has not visited the site and the images for illustrative purposes only. For further details or to arrange a site visit, please contact Edward Mellor Auctions

Location

Address

Land Off Manchester Road, Kearsley, Bolton

City

Kearsley

Features and Finishes

TO BE SOLD UNDER AUCTION TERMS, ESTIMATED GDV £1,475,000, READY FOR IMMEDIATE DEVELOPMENT, APPROVED SCHEME FOR 5 MODERN TOWN HOUSES, GREAT TRANSPORT LINKS

Legal Notice

Our comprehensive database is populated by our meticulous research and analysis of public data. MirrorRealEstate strives for accuracy and we make every effort to verify the information. However, MirrorRealEstate is not liable for the use or misuse of the site's information. The information displayed on MirrorRealEstate.com is for reference only.

Real Estate Broker
Edward Mellor Ltd, Auction
Brokerage
Edward Mellor Ltd, Auction
Top Tags
Likes

0

Views

38

This website uses cookies to ensure you get the best experience. Learn more