Land on the North side of Alder Way, Swanley
Property Details
61,855 sq ft
Description
Property Details: • Type: 61,855 sq ft • Tenure: N/A • Floor Area: N/A
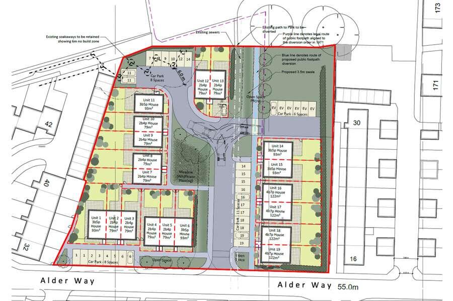
Key Features: • Of interest to investors and developers • Dwellings are to be arranged as 10 x 2 beds, 5 x 3 beds and 4 x 4 beds • 6 week completion • Freehold site of land with planning permission for the erection of 19 dwellings • Further development potential (subject to requisite consents) • Site is approx. 1.42 acres (0.57 hectares)
Location: • Nearest Station: Swanley Station • Distance to Station: 0.7 miles
Agent Information: • Address: 33 Margaret Street, London, W1G 0JD
Full Description: Of interest to investors and developers.A freehold site of land with planning permission granted for the erection of 19 dwellings.Once built, dwellings are to be arranged as 10 x 2 beds, 5 x 3 beds and 4 x 4 beds.Site is approx. 1.42 acres (0.57 hectares).
The site is situated on the North side of Alder Way, which is accessed from Shurlock Avenue and Elm Drive. The local amenities are nearby on London Road with a wider range of shops, restaurants and bars in the centre of Swanley. Road links via A20.TransportSwanley - Thameslink and Southeastern.
Location
Address
Land on the North side of Alder Way, Swanley
City
Swanley
Features and Finishes
Of interest to investors and developers, Dwellings are to be arranged as 10 x 2 beds, 5 x 3 beds and 4 x 4 beds, 6 week completion, Freehold site of land with planning permission for the erection of 19 dwellings, Further development potential (subject to requisite consents), Site is approx. 1.42 acres (0.57 hectares)
Legal Notice
Our comprehensive database is populated by our meticulous research and analysis of public data. MirrorRealEstate strives for accuracy and we make every effort to verify the information. However, MirrorRealEstate is not liable for the use or misuse of the site's information. The information displayed on MirrorRealEstate.com is for reference only.