Land on the West side of Goodacres, Church End, Broxted CM6
Property Details
Land
Description
Property Details: • Type: Land • Tenure: N/A • Floor Area: N/A
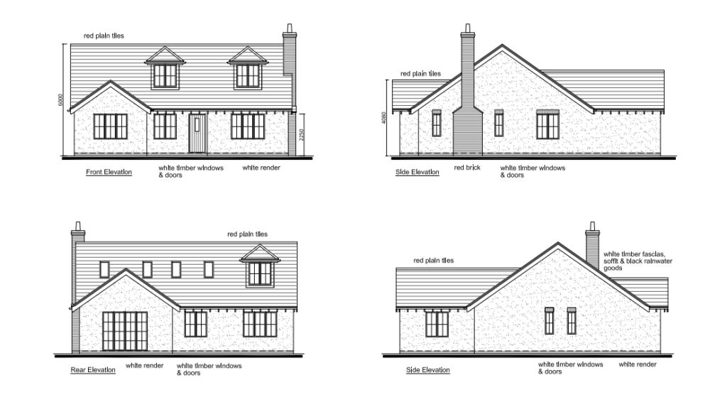
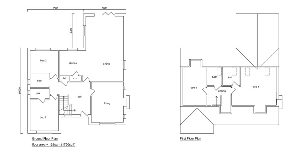
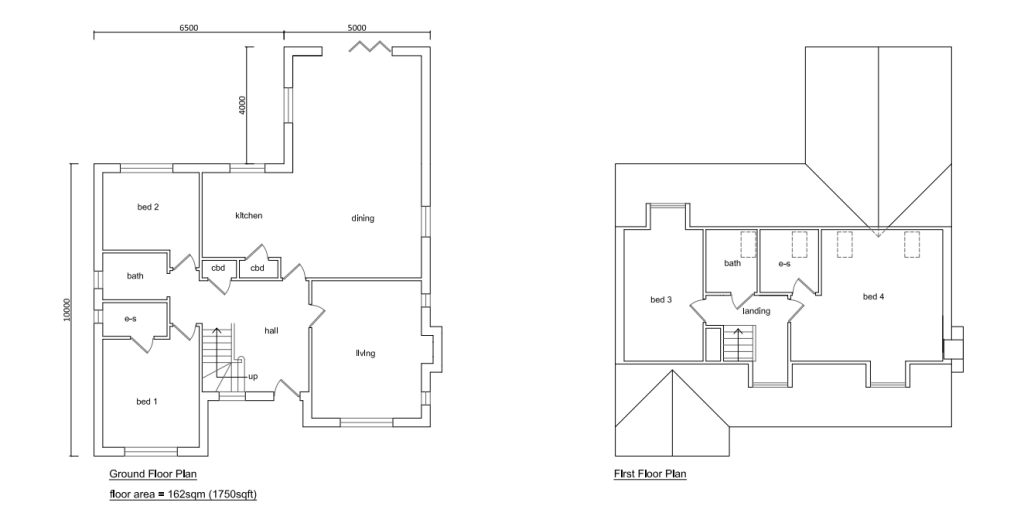
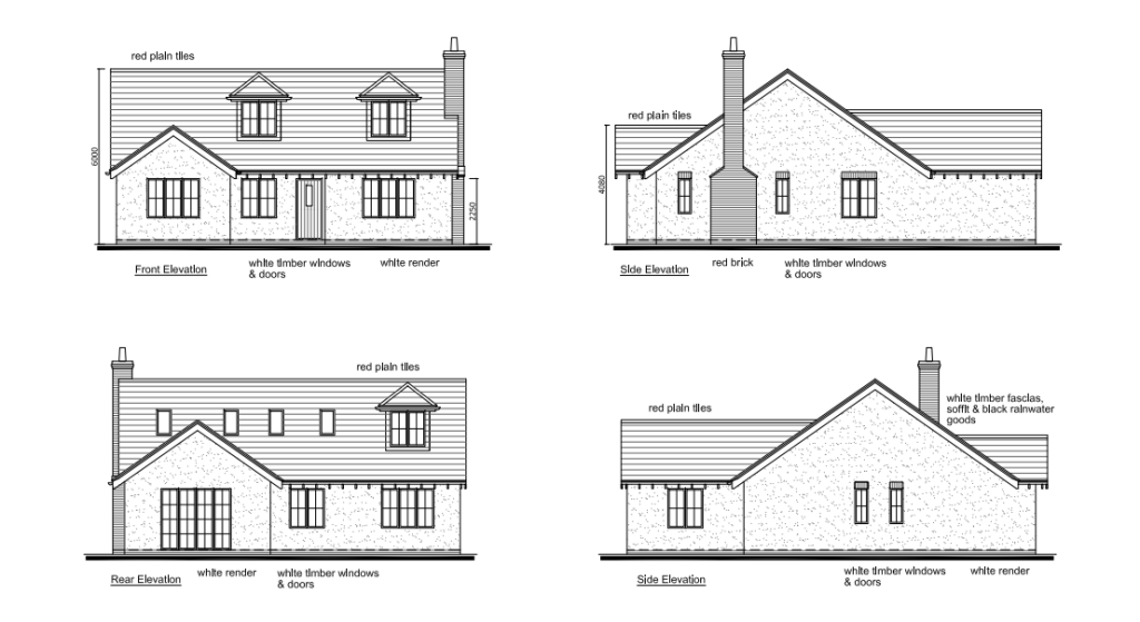
Key Features: • Residential Plot of Land in Broxted • Architect Drawings already in Place • Planning to be Determined September 2024 • Plans include Double Garage • Plans Include White Render with Red Brick Chimney and Red Plain Tiles • Plans Include Timber Windows and Doors • Great Location for Travelling both Domestically and Internationally • Close to Nearby Amenities in Great Dunmow, Stansted and Bishops Stortford • Close to Elsenham & Stansted Rail Stations • 0.4 Acre Site (STSS)
Location: • Nearest Station: Stansted Airport Station • Distance to Station: 2.5 miles
Agent Information: • Address: 1 Northumberland Avenue, Trafalgar Square, London, WC2N 5BW
Full Description: Prime Residential Plot in Broxted - The site is currently subject to a full planning application (Uttlesford District Council ref UTT/24/0323/FUL), and will be sold pursuant to the benefit of planning permissionDiscover the perfect opportunity to build your dream home in the charming village of Broxted. This exceptional plot of land, generously sized and well-positioned, offers the ideal setting for creating a bespoke residence in a peaceful countryside setting.Key Features:Planning Permission: The plot hopefully comes with full planning permission for a 1,750 sq. ft residence, saving you time and effort in realizing your vision.Idyllic Location: Nestled in the picturesque village of Broxted, this plot enjoys a serene, rural environment, yet is conveniently close to nearby amenities in Great Dunmow, Stansted and Bishops Stortford. The area is well-connected by road and rail, offering easy access to London and other major cities.Generous Size: The plot offers ample space for a variety of designs and layouts, allowing you to create a home tailored to your needs with plenty of room for gardens, outdoor entertaining, or additional outbuildings.Village Charm: Broxted is a sought-after village known for its beautiful landscapes, friendly community, and proximity to excellent schools, making it an ideal location for families or those looking for a tranquil retreat.Investment Potential: With the growing demand for countryside properties, this plot represents a sound investment opportunity while building your forever home.Don’t miss out on this unique chance to secure a prime piece of land with planning permission (determined September 2024) in the heart of Broxted. Contact us today for more details and to arrange a viewing. Disclaimer: Every care has been taken with the preparation of these Particulars but complete accuracy cannot be guaranteed. If there is any point, which is of particular importance to you, please obtain professional confirmation.These details are prepared as a general guide only, and should not be relied upon as a basis to enter into a legal contract, or commit expenditure. An interested party should consult their own surveyor, solicitor or other professionals before committing themselves to any expenditure or other legal commitments.All dimensions/measurements are approximate.
Location
Address
Land on the West side of Goodacres, Church End, Broxted CM6
City
Broxted
Features and Finishes
Residential Plot of Land in Broxted, Architect Drawings already in Place, Planning to be Determined September 2024, Plans include Double Garage, Plans Include White Render with Red Brick Chimney and Red Plain Tiles, Plans Include Timber Windows and Doors, Great Location for Travelling both Domestically and Internationally, Close to Nearby Amenities in Great Dunmow, Stansted and Bishops Stortford, Close to Elsenham & Stansted Rail Stations, 0.4 Acre Site (STSS)
Legal Notice
Our comprehensive database is populated by our meticulous research and analysis of public data. MirrorRealEstate strives for accuracy and we make every effort to verify the information. However, MirrorRealEstate is not liable for the use or misuse of the site's information. The information displayed on MirrorRealEstate.com is for reference only.