Land, Thornhill Road, Sutton Coldfield

GBP 750000 For Sale

Property Details

Property Type

Off-Plan

Description

Property Details: • Type: Off-Plan • Tenure: N/A • Floor Area: N/A

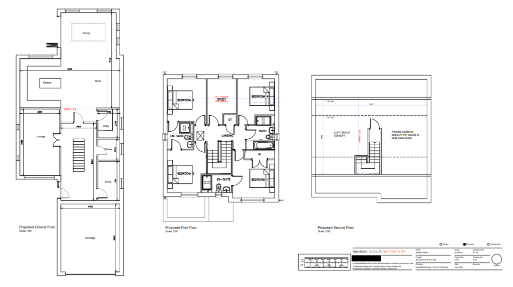
Key Features: • Walsall Council A/N 21/0561 • Planning permission to build two modern homes • Opportunity for a developer to create two dwellings with private access • Planning for 4/5 bedrooms and potential to add into the loft • Extremely sought after location • Directly opposite Sutton Park • PLEASE NOTE- Plot 1 (the existing bungalow) - IS NOT INCLUDED IN THIS SALE.

Location: • Nearest Station: Four Oaks Station • Distance to Station: 2.2 miles

Agent Information: • Address: Chosen Home Ltd. 3 The Courtyard, Coleshill Manor, Coleshill, West Midlands, B46 1DL.

Full Description: Welcome to Thornhill Road...Land with Planning Permission for Two Modern Homes (plot 2 & 3)This exceptional parcel of land offers a rare chance to acquire a prime development site with full planning permission to construct two contemporary, architecturally designed homes, each spanning approx 3000 sq ft. Situated in a sought-after location, Thornhill Road, this site is perfect for developers or self-builders looking to create modern family homes in a tranquil setting.Accessed via a private road, the houses will benefit from a secluded and exclusive feel, while still being within easy reach of local amenities, schools, transport links and within walking distance to Sutton Park. Each home design emphasizes sleek, modern lines, open-plan living spaces, and extensive glazing, ensuring plenty of natural light and a strong connection with the surrounding landscape. With space for private gardens and parking, this site offers the perfect combination of luxury living in a serene setting. This is a rare chance to secure a premium development opportunity, ideal for those seeking to create bespoke homes in a highly desirable location. PLEASE NOTE- Plot 1 (the existing bungalow) - IS NOT INCLUDED IN THIS SALE.Purchaser Fee This property is subject to a buyers fee of 1% plus VAT of the selling price which is payable by the purchaser on completion of the sale and is to be a condition of sale in the contract. It is for the sellers lawyers to collect this fee with the purchase price on completion. The estate agents costs must be sent by telegraphic transfer to the sellers solicitors prior to keys being released. Need to sell? Sell your home for free with Chosen.Details Disclaimer Whilst Chosen Home Limited endeavour to ensure the accuracy of property details produced and displayed, we have not tested any apparatus, equipment, fixtures and fittings or services and so cannot verify that they are connected, in working order or fit for the purpose. Neither have we had sight of the legal documents to verify the Freehold or Leasehold status of any property. A Buyer is advised to obtain verification from their Solicitor and/or Surveyor. The measurements indicated are supplied for guidance only

Location

Address

Land, Thornhill Road, Sutton Coldfield

City

Thornhill Road

Features and Finishes

Walsall Council A/N 21/0561, Planning permission to build two modern homes, Opportunity for a developer to create two dwellings with private access, Planning for 4/5 bedrooms and potential to add into the loft, Extremely sought after location, Directly opposite Sutton Park, PLEASE NOTE- Plot 1 (the existing bungalow) - IS NOT INCLUDED IN THIS SALE.

Legal Notice

Our comprehensive database is populated by our meticulous research and analysis of public data. MirrorRealEstate strives for accuracy and we make every effort to verify the information. However, MirrorRealEstate is not liable for the use or misuse of the site's information. The information displayed on MirrorRealEstate.com is for reference only.

Real Estate Broker
Chosen Home, Birmingham, Covering the Midlands
Brokerage
Chosen Home, Birmingham, Covering the Midlands
Top Tags
Likes

0

Views

140

This website uses cookies to ensure you get the best experience. Learn more