Land to the rear of 41 Bell Road, Bottisham

GBP 175000 For Sale

Property Details

Property Type

Plot

Description

Property Details: • Type: Plot • Tenure: N/A • Floor Area: N/A

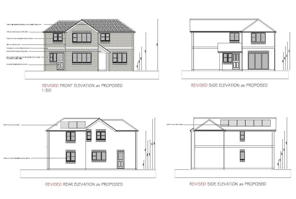
Key Features: • An opportunity to purchase a single building plot with detailed planning consent • Consent for a detached 3/4 bedroom home of around 1,185 sqft • Carefully designed for today's modern living • Open-plan kitchen/dining/family space and separate living space • Consent granted Ref:23/00421/FUL on 23rd February 2024 • Off-street parking for 2 vehicles • Highly regarded village • CIL payment to council due upon commencement of works

Location: • Nearest Station: Waterbeach Station • Distance to Station: 3.7 miles

Agent Information: • Address: Woollards Lane, Great Shelford, CB22 5LZ

Full Description: An individual building plot with full planning permission granted for a 3/4 bedroom detached 2 storey dwelling of around 1,185 sqft situated in this established residential area of Bottisham.Location - Bottisham is regarded as one of Cambridgeshire's most popular villages, retaining its original centre whilst developing a thriving community. There are a good range of local shops, a primary school and noted Village College which offers a wide range of adult educational courses and recreational amenities. Bottisham is situated only 8 miles east of Cambridge and 5 miles from Newmarket. The A14 is close by and Milton Science Park can be reached in ten minutes.Planning - Full planning consent (Ref:23/00421/FUL) was been granted by East Cambridgeshire District Council on the 23rd February 2024, for the erection of a detached 3/4 bedroom two storey dwelling with off-street parking for two vehicles. The property of of traditional design and is to incorporate an airsource heat pump together with solar panels for lower carbon footprint. Once built the property will extend to around 1,185 sqft (110 sqm) and comprise of: Entrance hall, kitchen/dining/family room, living room, utility and to the first floor: bedroom 1, en-suite bathroom, bedroom 2, bedroom 3, family bathroom, bedroom 4/study. Outside there will be off-street parking for two vehicles and garden laid to lawn with patio and pathways. Access to the property is via Howlett Way.Agents Notes - 1) The purchaser is responsible for completing the development in accordance with the East Cambridgeshire District Council planning approval ref: 23/00421/FUL 2) The purchaser will be responsible for discharging all planning conditions associated to the planning consent.3) The purchaser will be responsible at their cost of getting services to the property.4) It is understood that East Cambridgshire District Council would charge a Community Infrastructure Levy (CIL) upon commencement of development at a charge of £155 per sq mtr of the property to be built.Tenure - Freehold.Services - We believe mains water, electric and drainage are available in the road.Local Authority - East Cambridgeshire District CouncilViewing - Strictly by appointment through the vendors sols agents, Redmayne Arnold and Harris / - Brochures41 Bell Road.pdfBrochure

Location

Address

Land to the rear of 41 Bell Road, Bottisham

City

Land to the rear of 41 Bell Road

Features and Finishes

An opportunity to purchase a single building plot with detailed planning consent, Consent for a detached 3/4 bedroom home of around 1,185 sqft, Carefully designed for today's modern living, Open-plan kitchen/dining/family space and separate living space, Consent granted Ref:23/00421/FUL on 23rd February 2024, Off-street parking for 2 vehicles, Highly regarded village, CIL payment to council due upon commencement of works

Legal Notice

Our comprehensive database is populated by our meticulous research and analysis of public data. MirrorRealEstate strives for accuracy and we make every effort to verify the information. However, MirrorRealEstate is not liable for the use or misuse of the site's information. The information displayed on MirrorRealEstate.com is for reference only.

Real Estate Broker
Redmayne Arnold & Harris New Homes, Great Shelford
Brokerage
Redmayne Arnold & Harris New Homes, Great Shelford
Top Tags
Likes

0

Views

57

This website uses cookies to ensure you get the best experience. Learn more