Land to the south of 76 Brades Road, Oldbury, West Midlands, B69 2EP
Property Details
None
Description
Property Details: • Type: N/A • Tenure: N/A • Floor Area: N/A
Key Features: • Freehold development site with outline residential consent. • Canalside site extending to 0.302 acre or thereabouts. • Recent outline planning consent granted for residential development. • Guide Price: Offers based on £295,000 for the Freehold interest
Location: • Nearest Station: N/A • Distance to Station: N/A
Agent Information: • Address: 1st Floor 75-77 Colmore Row Birmingham B3 2AP
Full Description: For Sale by private treaty.
Offers of £295,000 are invited for the freehold interest with vacant possession.
Freehold Development Site With Outline Planning Consent.
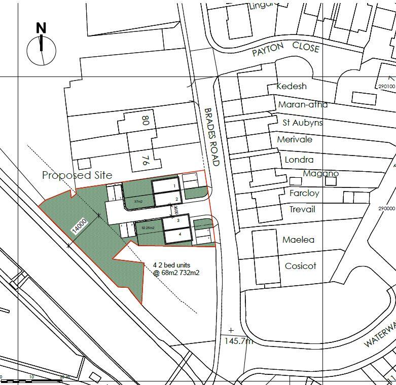
A predominantly rectangular-shaped development site backing onto Birmingham Canal affords a generous frontage. The site now benefits from planning permission for the development of 4 x 2 bedroom two storey houses with associated car parking. Full details of the consented scheme are available via the selling agents.
Location The site lies in a prominent location on Brades Road, approximately half a mile northwest of Oldbury town centre and all its amenities.
Backing directly onto the Birmingham canal, the site is bounded to the north by a pair of semi-detached dwellings and to the south by a parcel of vacant land.
Benefitting from excellent transport links, including proximity to junction 2 of the M5 motorway, the site is also a short 3-minute drive from Sandwell 7 Dudley railway station.
Tenure Freehold
Planning Under application number DC/24/69248, outline planning consent has been granted for residential development. Indicative schemes have been drawn for 4x 2 bedroom houses and also 3 dwellings. Further details are available from the selling agents. For any planning enquiries, buyers should contact Sandwell Metropolitan Borough Council at or call .
VAT We are advised that VAT is not applicable.
Services We have been informed that all mains services are connected to the site. However, prospective purchasers should still make their own independent enquiries as to the suitability of the services for their particular requirements.
Legal Costs Each party are to be responsible for their own legal costs that may be incurred in this transaction.
Anti Money Laundering In accordance with anti-money laundering regulations, two forms of identity and confirmation of the source of funding will be required from the successful purchaser.
Location
Address
Land to the south of 76 Brades Road, Oldbury, West Midlands, B69 2EP
City
West Midlands
Features and Finishes
Freehold development site with outline residential consent., Canalside site extending to 0.302 acre or thereabouts., Recent outline planning consent granted for residential development., Guide Price: Offers based on £295,000 for the Freehold interest
Legal Notice
Our comprehensive database is populated by our meticulous research and analysis of public data. MirrorRealEstate strives for accuracy and we make every effort to verify the information. However, MirrorRealEstate is not liable for the use or misuse of the site's information. The information displayed on MirrorRealEstate.com is for reference only.