Lawrence Road, Wrington, BS40

GBP 1150000 For Sale

Property Details

Property Type

Plot

Description

Property Details: • Type: Plot • Tenure: N/A • Floor Area: N/A

Key Features: • 0.58 ACRES IN CENTRAL VILLAGE LOCATION • FULL PLANNING PERMISSION HAS BEEN GRANTED FOR FIVE DWELLINGS • GDV OF THE SITE £4,000,000 - £4,200,000 • CIL DETAILS ON APPLICATION • POPULAR VILLAGE WITH GOOD SCHOOLS AND AMENITIES • 12 MILES TO BRISTOL CITY CENTRE • EASY ACCESS TO MAINLINE RAILWAY SERVICES AT BRISTOL TEMPLE MEADS (LONDON PADDINGTON 114 MINS) • HIGH SPEC INCLUDING LARCH CLADDING, MARLEY ETERNIT ANGLIA PANTILES AND AIR SOURCE HEAT PUMP

Location: • Nearest Station: Yatton Station • Distance to Station: 3.6 miles

Agent Information: • Address: 1 The Cross Broad Street, Congresbury, Bristol, Somerset, BS49 5DG

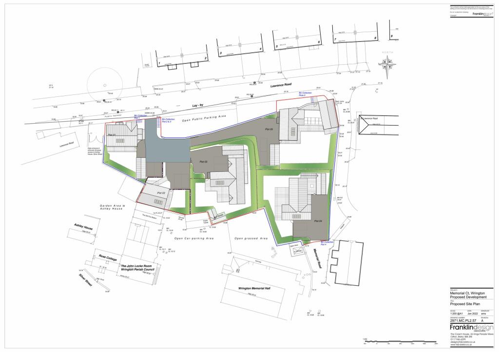
Full Description: A rare opportunity to purchase a development site centrally located in the heart of Wrington, tucked neatly between Lawrence road and Silverstreet road with access via Lawrence road and Memorial Road.Within the site there is currently a mix of light industrial and characterful stone buildings. The light industrial buildings will be demolished but the original stone buildings with historic value will remain and be converted in to two link detached homes,Wrington village is highly regarded in the local area, providing a good range of shops and amenities including a couple of pubs, post office, café, dentist and pharmacy along with an "Outstanding" primary school, with senior schooling nearby at the well-regarded Churchill Academy and Sixth Form. Situated on the north side of the Mendips, some 11 miles south west of Bristol, there is beautiful surrounding countryside for activities including walking, riding and golf. Access to the M5 is within approximately 8 miles from both Clevedon (J20) and St Georges (J21) and Bristol International Airport is within 4.5 miles. Regular mainline railway services are available within 4.3 miles at Yatton station (journey time to London Paddington from 114 minutes).Planning application reference: ID: 22/P/0152/FULApplication Type: Full Planning PermissionDecision: ApproveDecision Date: 16/09/2022For CIL charge details please enquireSERVICES – it is advised that the responsibility lies with the buyer to investigate with the relevant service providers however, it is understood that all the mains' services are located on the site.LOCAL AUTHORITY – North Somerset District Council – Tel Edit | DeletePLOT 1Overview:• New build traditional construction• 4 double bedrooms• 2 en-suites and 1 family bathroom• Detached Garage with parking adjacent• Private garden• Flexible open plan first floor living space• Approximately 1,300 sq ft GIAEdit | DeletePLOT 2Overview:• Refurbished existing building.• Link detached• 3 double bedrooms• En-suite to principal bedroom and 1 family bathroom• Open plan ground floor• Private gardenEdit | DeletePLOT 3Overview:• New build traditional construction• 5 double bedrooms• 1 en-suite to the principle bedroom and 1 family bathroom• Versatile ground floor• Detached garage• Private garden• Approximately 2,100 sq ft GIAEdit | DeletePLOT 4Overview:• New build traditional construction• 5 double bedrooms• 2 en-suite bedrooms and 1 family bathroom• Versatile ground floor• Detached garage• Private garden• Separate private entrance• Approximately 2,046 sq ft GIAEdit | DeletePLOT 5Overview:• Redevelopment of 2 existing character buildings to create one• 2 en-suite bedrooms and 1 family bathroom• Versatile ground floor• Detached garage• Private garden• Approximately 2,423 sq ft GIAEdit | DeleteEPC Rating: DPLOT 1Overview:• New build traditional construction • 4 double bedrooms• 2 en-suites and 1 family bathroom• Detached Garage with parking adjacent• Private garden• Flexible open plan first floor living space• Approximately 1,300 sq ft GIAPLOT 4Overview: • New build traditional construction • 5 double bedrooms • 2 en-suite bedrooms and 1 family bathroom • Versatile ground floor• Detached garage• Private garden• Separate private entrance• Approximately 2,046 sq ft GIAPLOT 5Overview: • Redevelopment of 2 existing character buildings to create one• 2 en-suite bedrooms and 1 family bathroom • Versatile ground floor• Detached garage• Private garden• Approximately 2,423 sq ft GIAPLOT 3Overview:• New build traditional construction • 5 double bedrooms • 1 en-suite to the principle bedroom and 1 family bathroom • Versatile ground floor• Detached garage• Private garden• Approximately 2,100 sq ft GIAPLOT 2Overview:• Refurbished existing building.• Link detached• 3 double bedrooms• En-suite to principal bedroom and 1 family bathroom• Open plan ground floor • Private garden

Location

Address

Lawrence Road, Wrington, BS40

City

Wrington

Features and Finishes

0.58 ACRES IN CENTRAL VILLAGE LOCATION, FULL PLANNING PERMISSION HAS BEEN GRANTED FOR FIVE DWELLINGS, GDV OF THE SITE £4,000,000 - £4,200,000, CIL DETAILS ON APPLICATION, POPULAR VILLAGE WITH GOOD SCHOOLS AND AMENITIES, 12 MILES TO BRISTOL CITY CENTRE, EASY ACCESS TO MAINLINE RAILWAY SERVICES AT BRISTOL TEMPLE MEADS (LONDON PADDINGTON 114 MINS), HIGH SPEC INCLUDING LARCH CLADDING, MARLEY ETERNIT ANGLIA PANTILES AND AIR SOURCE HEAT PUMP

Legal Notice

Our comprehensive database is populated by our meticulous research and analysis of public data. MirrorRealEstate strives for accuracy and we make every effort to verify the information. However, MirrorRealEstate is not liable for the use or misuse of the site's information. The information displayed on MirrorRealEstate.com is for reference only.

Real Estate Broker
Robin King Estate Agents, Congresbury
Brokerage
Robin King Estate Agents, Congresbury
Top Tags
GDV OF THE SITE £4 000 - £4
Likes

0

Views

124

This website uses cookies to ensure you get the best experience. Learn more