Leesons Hill, Orpington

GBP 995000 For Sale

Property Details

Bedrooms

5

Bathrooms

2

Property Type

Detached

Description

Property Details: • Type: Detached • Tenure: N/A • Floor Area: N/A

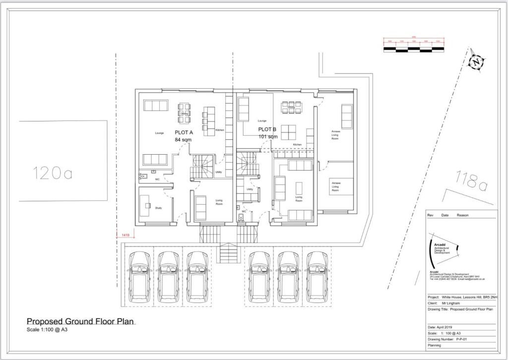
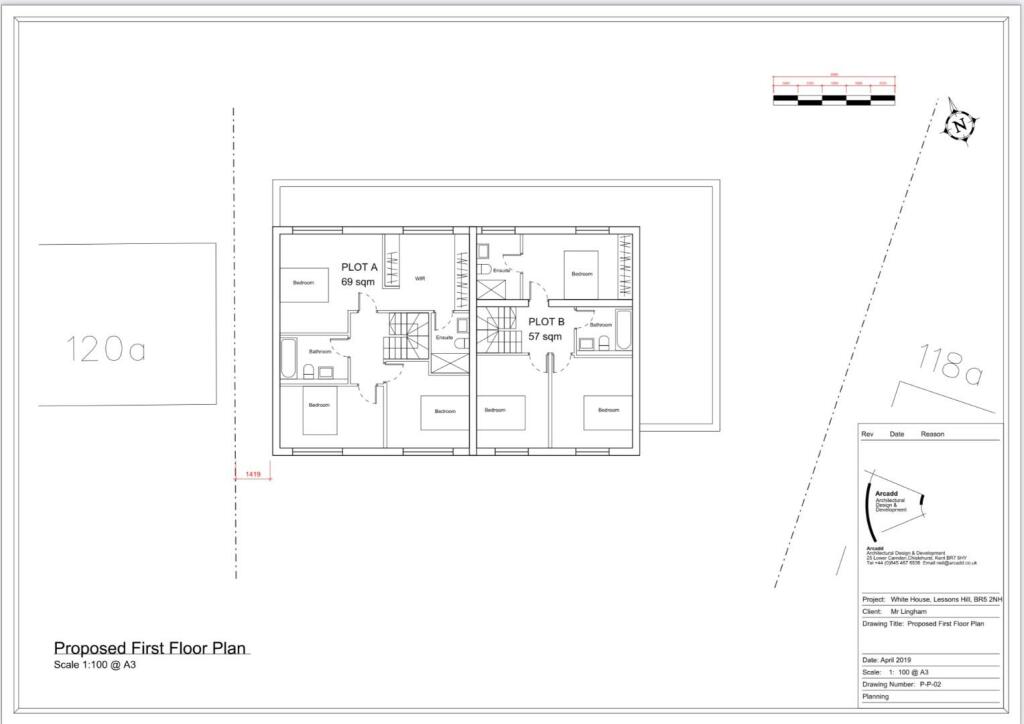
Key Features: • Five bedroom detached house • Planning permission granted for development of three dwellings • Conversion of the current property into two semi detached houses • Planning for a seperate, three bedroom dwelling to the side of the property • Access to stations and schools • Ideal family home to improve with a bonus investment opportunity

Location: • Nearest Station: N/A • Distance to Station: N/A

Agent Information: • Address: 2 Deodar House, 4 Pines Road, Bromley, BR1 2AA

Full Description: PLANNING PERMISSION GRANTEDThis five bedroom, measuring over 2300 sqft detached house is offered to the market with planning permission for conversion into three separate dwellings. The current house can be split into two semi detached houses, while there is also a parcel of land to the side which can hold a three bedroom detached dwelling of 114 sqm. This could be ideal for those wanting to house family members in a separate dwelling, dabble in property development or even looking to sell land on for profit.The well-presented property spans three levels and features spacious rooms with high ceilings that invite plenty of natural light. On the ground floor, you'll find a large, bright lounge that flows through to three versatile reception rooms, which could be used as additional bedrooms. The kitchen is fully equipped and overlooks the garden, while a tiled shower room completes this level.On the first floor, there are three generously sized bedrooms, including a master bedroom measuring over 20 feet, along with a large bathroom and a separate W/C. The top floor offers an additional bedroom and a separate dressing room.Outside, there is ample parking available on the front driveway. The property also boasts a 90+ foot rear garden and extra garden space on the right side of the house.Please call for more information.BrochuresLeesons Hill, OrpingtonBrochure

Location

Address

Leesons Hill, Orpington

City

Leesons Hill

Features and Finishes

Five bedroom detached house, Planning permission granted for development of three dwellings, Conversion of the current property into two semi detached houses, Planning for a seperate, three bedroom dwelling to the side of the property, Access to stations and schools, Ideal family home to improve with a bonus investment opportunity

Legal Notice

Our comprehensive database is populated by our meticulous research and analysis of public data. MirrorRealEstate strives for accuracy and we make every effort to verify the information. However, MirrorRealEstate is not liable for the use or misuse of the site's information. The information displayed on MirrorRealEstate.com is for reference only.

Real Estate Broker
Pullen Estate Agents, Chislehurst
Brokerage
Pullen Estate Agents, Chislehurst
Top Tags
Likes

0

Views

14

This website uses cookies to ensure you get the best experience. Learn more