Leys Lane, Frome
Property Details
Land
Description
Property Details: • Type: Land • Tenure: N/A • Floor Area: N/A
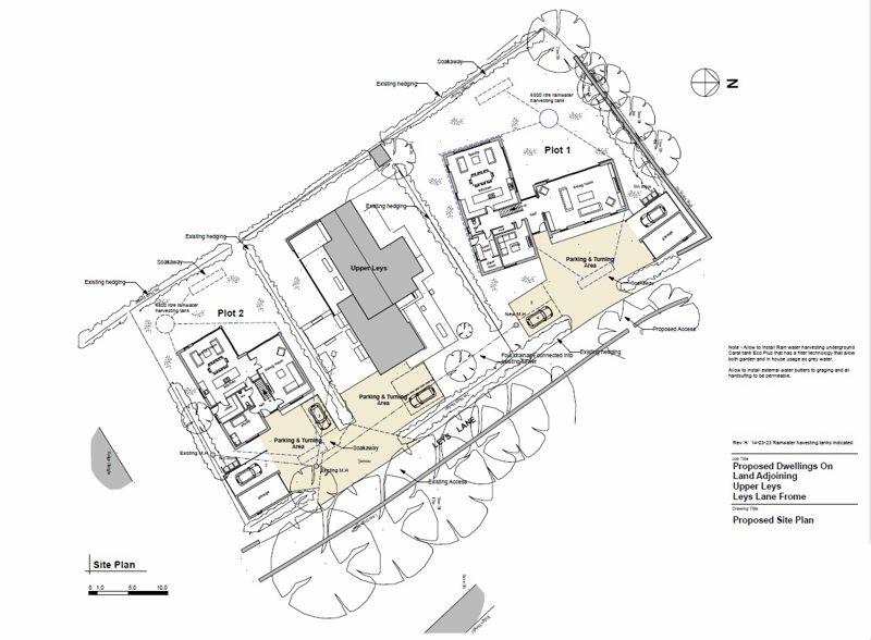
Key Features: • Building Plot • Full Planning Permission For A 3821 sqft Detached Dwelling • Northern Fringe Of Frome • On Site Water & Drainage • Secluded Setting
Location: • Nearest Station: Frome Station • Distance to Station: 1.1 miles
Agent Information: • Address: 24 Bath Street, Frome, Somerset, BA11 1DJ
Full Description: *** BUILDING PLOT *** A once in a lifetime opportunity to buy one of two plots with planning permission on the Northern fringe of Frome.BrochuresProperty BrochureFull Details
Location
Address
Leys Lane, Frome
City
Leys Lane
Features and Finishes
Building Plot, Full Planning Permission For A 3821 sqft Detached Dwelling, Northern Fringe Of Frome, On Site Water & Drainage, Secluded Setting
Legal Notice
Our comprehensive database is populated by our meticulous research and analysis of public data. MirrorRealEstate strives for accuracy and we make every effort to verify the information. However, MirrorRealEstate is not liable for the use or misuse of the site's information. The information displayed on MirrorRealEstate.com is for reference only.