Little Marston Road, Marston Magna, Yeovil, Somerset, BA22

GBP 535000 For Sale

Property Details

Property Type

Land

Description

Property Details: • Type: Land • Tenure: N/A • Floor Area: N/A

Key Features: • A unique development plot • Edge of village location • 2.8 acres ( approx. ) in all • Class Q planning permission • Countryside views • Good communication links

Location: • Nearest Station: N/A • Distance to Station: N/A

Agent Information: • Address: Minster House The Commons, Shaftesbury, SP7 8JU

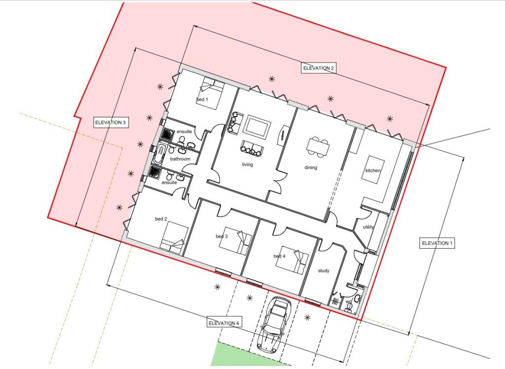
Full Description: A wonderful opportunity to purchase a residential building plot of 2.8 acres, adjoining open countryside.West End Farm is situated on the very west edge of the village and enjoys beautiful Somerset countryside views. Class Q planning permission has been granted for the conversion of a barn into an individual, four bedroom, single story dwelling.ACCESS The site is set back from Little Marston Road and is accessed over a long private drive.PLANNINGFull planning details can be found on the Somerset planning portal under reference number 23/00728/PAMB Prior approval is approved for the change of use of an existing agricultural barn into a dwelling house as per the Town and Country Planning (General Permitted Development) Order 2015 (as amended) under Schedule 2, Part 3, Class QNOTEA new full application has been submitted for a change to the design of the property and this is reflected in the CGI images in this brochure.SITUATIONMarston Magna lies on the South Somerset/Dorset border and is well placed for easy access to major road networks making it a highly sought after location. The village enjoys a range of amenities including village hall with events throughout the year, play park, church and public house and numerous public footpaths for dog walking.The nearby village of Queen Camel offers a primary school, GP surgery, village shop with Post Office and a public house. The historic town of Sherborne, with its abbey, world renowned schools, and variety of shops, is within 5 miles as is the town of Yeovil that offers a wider range of shopping, recreational, and educational facilities, including a college and district hospital. Mainline railway stations are located in Sherborne, Yeovil, and Castle Cary and provide quick services to London.SERVICESMains water and electricity are located close by and are to be connected by the Buyer as is drainage. A quote for electricity available upon request. Ultrafast broadband is available in the area and all mobile phone networks have good coverage.Rights of way, Easements and WayleavesThe land is sold subject to and with the benefit of all existing rights of way whether public or private, including wayleaves, easements, covenants, restrictions and obligations whether referred to specifically in these sale particulars or not. The purchaser shall be deemed to have full knowledge of the boundaries and the ownership thereof. The mines and mineral below a depth of 100 feet from the surface together with ancillary powers of working are excepted. There is a footpath running alongside the east boundary and up the drive.DIRECTIONSPost code: BA22 8BNWhat3words /// gone.taxpayers.reporting

Location

Address

Little Marston Road, Marston Magna, Yeovil, Somerset, BA22

City

Somerset

Features and Finishes

A unique development plot, Edge of village location, 2.8 acres ( approx. ) in all, Class Q planning permission, Countryside views, Good communication links

Legal Notice

Our comprehensive database is populated by our meticulous research and analysis of public data. MirrorRealEstate strives for accuracy and we make every effort to verify the information. However, MirrorRealEstate is not liable for the use or misuse of the site's information. The information displayed on MirrorRealEstate.com is for reference only.

Real Estate Broker
Woolley & Wallis, Shaftesbury
Brokerage
Woolley & Wallis, Shaftesbury
Top Tags
Likes

0

Views

51

This website uses cookies to ensure you get the best experience. Learn more