Littlebeck Warren, Hayescastle Road, Distington, Workington, Cumbria, CA14 5YB

GBP 575000 For Sale

Property Details

Property Type

Ask agent

Description

Property Details: • Type: Ask agent • Tenure: N/A • Floor Area: N/A

Key Features: • Detached character property • Beautifully appointed throughout • Eight individually styled en suite letting rooms • Bar and sunroom • Lawned garden/off-road parking • Net sales between £50,000-£70,000 per annum

Location: • Nearest Station: Parton Station • Distance to Station: 1.9 miles

Agent Information: • Address: North West

Full Description: Littlebeck Warren is located in the Common End part of Distington between the West Cumbrian towns of Workington and Whitehaven. The village is situated in the Western Lake District and offers easy access to the National Park and Solway Coast AONB. The property is located alongside the B5306 which links to the A595 to Carlisle to the north and the Furness Peninsula to the south. The A66 to the east provides links to Cockermouth, Keswick and Penrith. Distington has a good transport system with four train stations within easy reach, all operating on The Cumbrian Coast Line.

This charming guest house is set over two storeys under a pitched slate roof and dates back to the late 1800s. The property was originally three cottages and offers much character and charm throughout, with exposed ceiling timbers and exposed brick walls. It has been subject to much investment and provides luxury and stylish accommodation throughout.

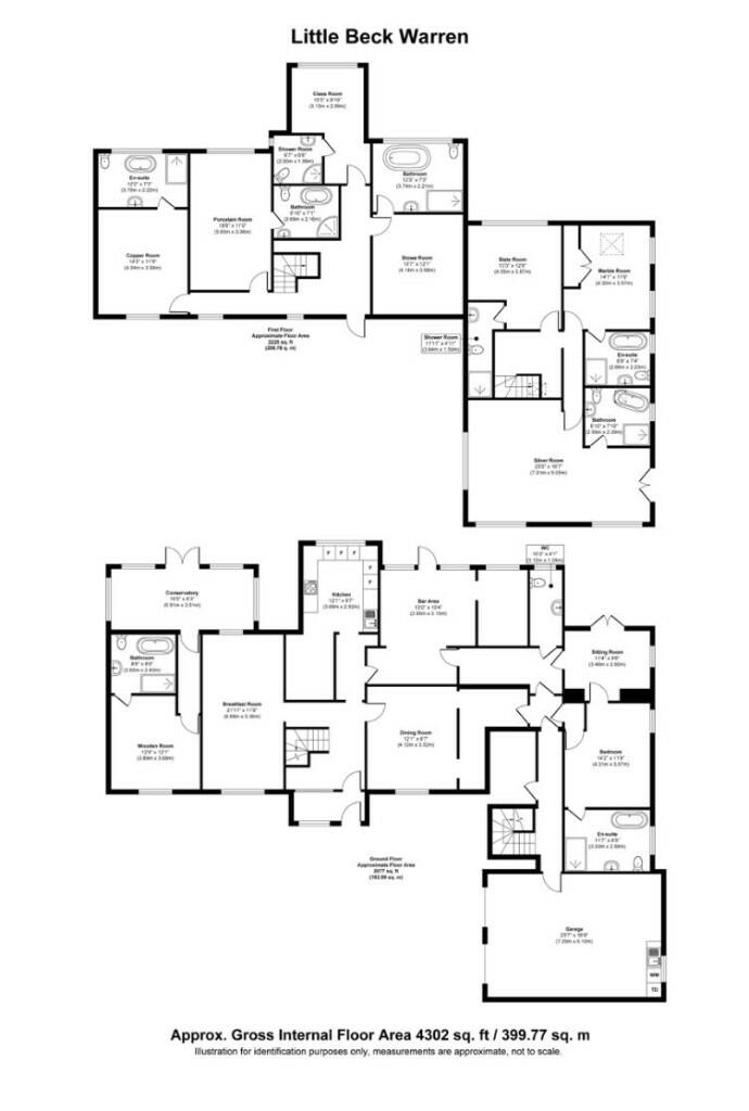
TRADE AREAS PORCH with slate flooring leading to RECEPTION HALLWAY with check-in desk, central oak staircase, wood panelled walls and exposed ceiling timbers. BREAKFAST ROOM with seating for 10, exposed brick walls and carpet flooring, giving way to a CONSERVATORY AREA with seating for 10 and access to the rear garden. DINING ROOM offering 8 covers with bespoke wood furniture. BAR/LOUNGE on split levels with French doors leading to the garden. Freestanding wooden bar with quarry tiled floor to the bar area. Fully-equipped TRADE KITCHEN with tiled floor, fitted wall and base units and PREP and WASH-UP AREAS.

Generous sized DOUBLE GARAGE which is currently used for storage and as a UTILITY ROOM . WC. STOREROOM.

GROUND FLOOR: THE WOODEN ROOM: a large room with TWIN/SUPERKING bed and generous sized EN SUITE with freestanding bath and walk in shower.

FIRST FLOOR: The SILVER ROOM: JUNIOR SUITE which is triple aspect and includes a Juliette balcony overlooking the small woodland area. Beautifully appointed throughout with sofa, TV area and oval bed.

THE GLASS ROOM: KINGSIZE room on split levels with glass themed EN SUITE BATHROOM with shower cubicle.

THE MARBLE ROOM: featuring KINGSIZE bed, stylishly presented throughout with a luxurious feel. Freestanding bath and shower to the EN SUITE.

THE PORCELAIN ROOM: DOUBLE ROOM which can be reconfigured to provide a TWIN ROOM. Sofa and EN SUITE featuring freestanding bath and walk-in shower.

THE SLATE ROOM: a contemporary room with natural grey tones, KINGSIZE bed and slate fireplace. The EN SUITE features a hand-cut basin with wall mounted tap and walk-in shower.

THE STONE ROOM: a TWIN/SUPERKING ROOM offering views of the garden and stream. The EN SUITE features an exposed sandstone wall, freestanding bath and shower area.

THE COPPER ROOM: a SUPERKING or TWIN BED room with an EN SUITE featuring a handmade copper bath and wash basin with separate, extra large, walk-in shower.

OWNERS' ACCOMMODATION To the ground floor and featuring; LOUNGE with French doors leading out to the garden, DOUBLE BEDROOM and EN SUITE BATHROOM with walk-in shower and freestanding bath. This accommodation could also be utilised as a short-term holiday let.

EXTERNAL Three beautifully presented enclosed GARDENS with split level PATIO AREA with pergola and trellis. Wood constructed sheltered seating area and small woodland area offset. To the front of the property is parking for 6-8 vehicles and access to the double garage.

Location

Address

Littlebeck Warren, Hayescastle Road, Distington, Workington, Cumbria, CA14 5YB

City

Cumberland

Features and Finishes

Detached character property, Beautifully appointed throughout, Eight individually styled en suite letting rooms, Bar and sunroom, Lawned garden/off-road parking, Net sales between £50,000-£70,000 per annum

Legal Notice

Our comprehensive database is populated by our meticulous research and analysis of public data. MirrorRealEstate strives for accuracy and we make every effort to verify the information. However, MirrorRealEstate is not liable for the use or misuse of the site's information. The information displayed on MirrorRealEstate.com is for reference only.

Real Estate Broker
Sidney Phillips Limited, North West
Brokerage
Sidney Phillips Limited, North West
Top Tags
Bar and sunroom
Likes

0

Views

61

This website uses cookies to ensure you get the best experience. Learn more