Liverpool Road, Burnley, Lancashire, BB12
Property Details
Land
Description
Property Details: • Type: Land • Tenure: N/A • Floor Area: 62726 sqft
Key Features:
Location: • Nearest Station: Rose Grove Station • Distance to Station: 0.16134867692151017 miles
Agent Information: • Address: 18 Manchester Road, Burnley, BB11 1HH
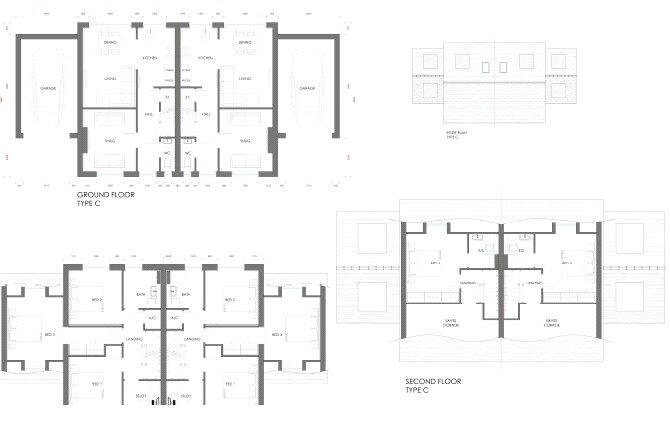
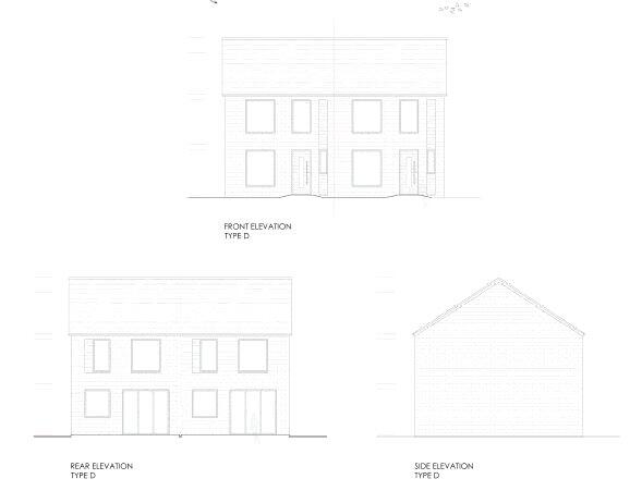
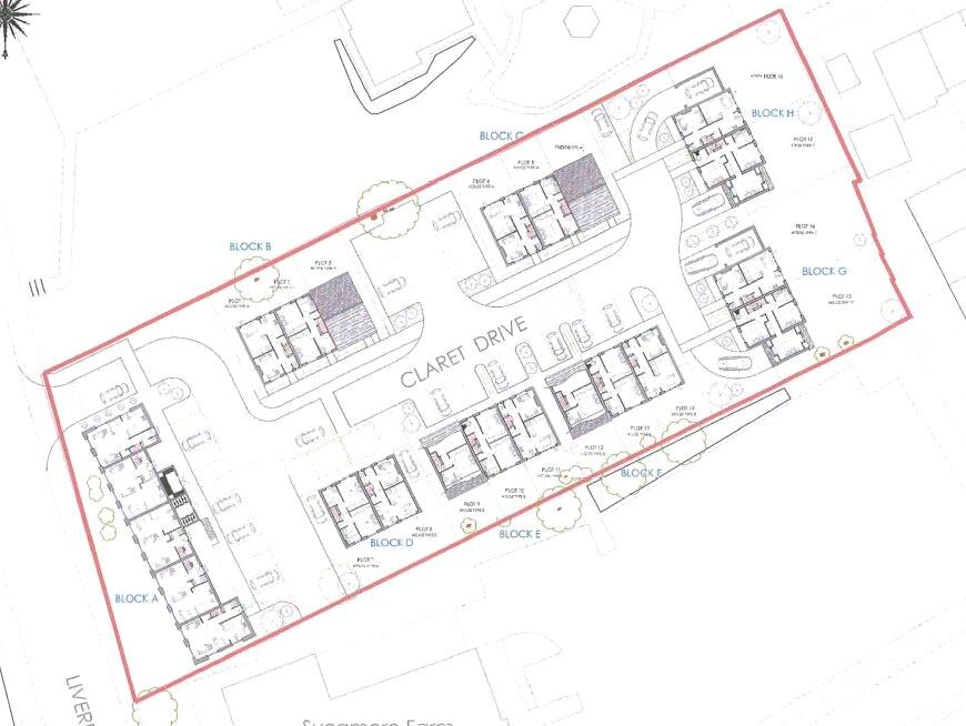
Full Description: DEVELOPMENT OPPORTUNITY WITH PLANS FOR 28 UNITS <br /><br />Entwistle Green are delighted to the present this rare development opportunity to the market. Based in the highly convenient and sought after area of Lowerhouse & Rosegrove, Burnley, this site is within very easy reach to the M65 motorway links, supermarkets and schools. <br /><br />Outline plans have been submitted for the development of 28 residential units, comprising of 18 houses (6x semi-detached & 12x terraced) and 10x duplex apartments. <br /><br />Planning status is pending approval. Full plans can be found via Burnley Council's public access portal via reference OUT/2025/0307. <br /><br />For more information or to make arrangements to view, please contact the team at Entwistle Green Burnley today.<br /><br />
Location
Address
Liverpool Road, Burnley, Lancashire, BB12
City
Lancashire
Legal Notice
Our comprehensive database is populated by our meticulous research and analysis of public data. MirrorRealEstate strives for accuracy and we make every effort to verify the information. However, MirrorRealEstate is not liable for the use or misuse of the site's information. The information displayed on MirrorRealEstate.com is for reference only.