Llys Tylcha Fawr, Tonyrefail, Porth, Rhondda Cynon Taff. CF39 8PZ
Property Details
Plot
Description
Property Details: • Type: Plot • Tenure: N/A • Floor Area: N/A
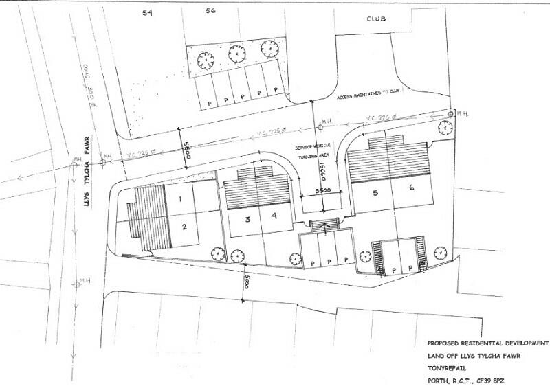
Key Features: • Development site being Sold as One • Planning Permission for 6 properties • Four 3 bedroom houses • Two 2 bedroom houses • Located in the heart of Tonyrefail • Easy access to shopping area • RCT-Planning Ref: 21/1440/15 573
Location: • Nearest Station: Porth Station • Distance to Station: 2.2 miles
Agent Information: • Address: Ty Gwyn 38 Talbot Road, Talbot Green CF72 8AF
Full Description: Development Site off Llys Tylcha Fawr, Tonyrefail (Off High Street) - Land For Sale with planning permission for the development of 6 Semi-Detached Properties with parking spaces (RCT Planning Ref: 21/1440/15 573)BrochuresBrochureEnergy Performance CertificatesEPC Graph
Location
Address
Llys Tylcha Fawr, Tonyrefail, Porth, Rhondda Cynon Taff. CF39 8PZ
City
Rhondda Cynon Taf
Features and Finishes
Development site being Sold as One, Planning Permission for 6 properties, Four 3 bedroom houses, Two 2 bedroom houses, Located in the heart of Tonyrefail, Easy access to shopping area, RCT-Planning Ref: 21/1440/15 573
Legal Notice
Our comprehensive database is populated by our meticulous research and analysis of public data. MirrorRealEstate strives for accuracy and we make every effort to verify the information. However, MirrorRealEstate is not liable for the use or misuse of the site's information. The information displayed on MirrorRealEstate.com is for reference only.