Lockerbie, Dumfries and Galloway

GBP 595000 For Sale

Property Details

Bedrooms

6

Bathrooms

3

Property Type

Detached

Description

Property Details: • Type: Detached • Tenure: N/A • Floor Area: N/A

Key Features:

Location: • Nearest Station: N/A • Distance to Station: N/A

Agent Information: • Address: 11 Wemyss Place, Edinburgh, EH6 7HT

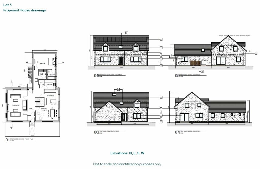
Full Description: A delightful and spacious 6 Bedroom Bungalow with equestrian facilities and approved planning permissions in the picturesque rural setting of Johnsfield near Lockerbie with convenient access to the M74 motorway.Summary of Lotting:Available for sale as a whole or in Lots.AS A WHOLE: LOTS 1, 2 & 3 – West Beckton – About 1.52 Acres (0.62 Hectares).6 Bedroom Bungalow with Equestrian Facilities and Approved Planning PermissionsLOT 1 – West Beckton House – About 0.52 Acres.Ground Floor: Entrance Hall, Kitchen/Dining/Sitting Room, Dining/Living Room, Sun Room, Principal Bedroom with En-Suite Bathroom, 4 further Double Bedrooms, Bedroom 6/Study, Family Bathroom, Shower Room and Utility Room.Large Double Garage, Private Driveway Parking and Garden.LOT 2 – West Beckton Stables with mains water and electricity – About 0.46 Acres.Currently used as Stables with a Large Workshop and Store with Paddock. Planning permission for a 3 bedroom house.LOT 3 – West Beckton Plot – About 0.54 Acres.Currently used as a Paddock. Planning permission for a 4 bedroom house.EPC - Band DCouncil Tax - Band GTenure - FreeholdEPC Rating: DCouncil Tax Band: GBrochuresParticulars

Location

Address

Lockerbie, Dumfries and Galloway

City

Lockerbie

Legal Notice

Our comprehensive database is populated by our meticulous research and analysis of public data. MirrorRealEstate strives for accuracy and we make every effort to verify the information. However, MirrorRealEstate is not liable for the use or misuse of the site's information. The information displayed on MirrorRealEstate.com is for reference only.

Real Estate Broker
Rettie, Town & Country
Brokerage
Rettie, Town & Country
Top Tags
Large Double Garage
Likes

0

Views

102

This website uses cookies to ensure you get the best experience. Learn more