Lockerbie, Dumfries and Galloway

GBP 100000 For Sale

Property Details

Property Type

Land

Description

Property Details: • Type: Land • Tenure: N/A • Floor Area: N/A

Key Features:

Location: • Nearest Station: Lockerbie Station • Distance to Station: 1.0 miles

Agent Information: • Address: 11 Wemyss Place, Edinburgh, EH6 7HT

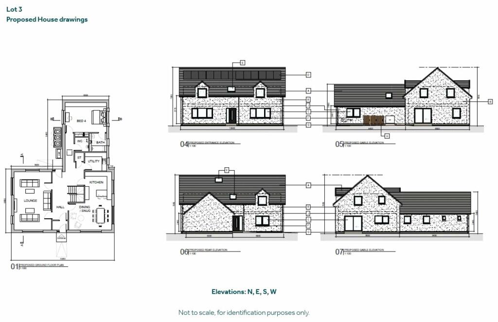
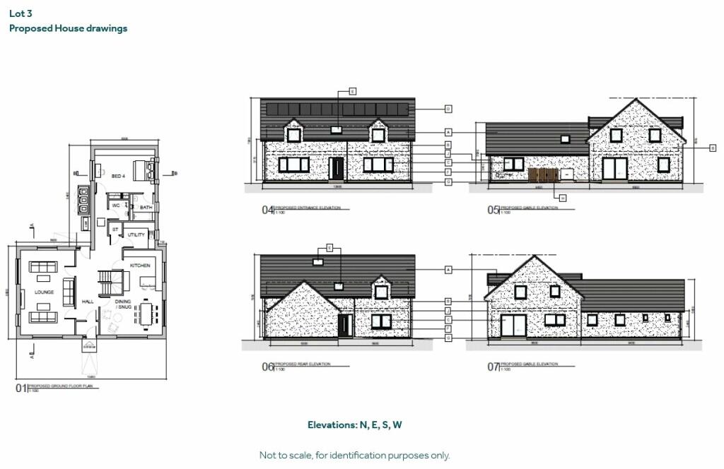
Full Description: Plot with planning permission for a 4 bedroom house in the picturesque rural setting of Johnsfield near Lockerbie with nearby access to the M74 motorway.Lot 3 – West Beckton Plot – About 0.54 Acres.Currently used as a Paddock. Planning permission for a 4 bedroom house.Tenure - FreeholdEPC Rating: DCouncil Tax Band: NABrochuresParticulars

Location

Address

Lockerbie, Dumfries and Galloway

City

Lockerbie

Legal Notice

Our comprehensive database is populated by our meticulous research and analysis of public data. MirrorRealEstate strives for accuracy and we make every effort to verify the information. However, MirrorRealEstate is not liable for the use or misuse of the site's information. The information displayed on MirrorRealEstate.com is for reference only.

Real Estate Broker
Rettie, Town & Country
Brokerage
Rettie, Town & Country
Top Tags
4 bedroom house West Beckton Plot
Likes

0

Views

86

This website uses cookies to ensure you get the best experience. Learn more